€ 1.200 mensili
  • Bilocale
  • 60 mq
  • 1 bagno

Appartamento in Affitto a Roma

EUR CENTRO Viale Umberto Tupini.
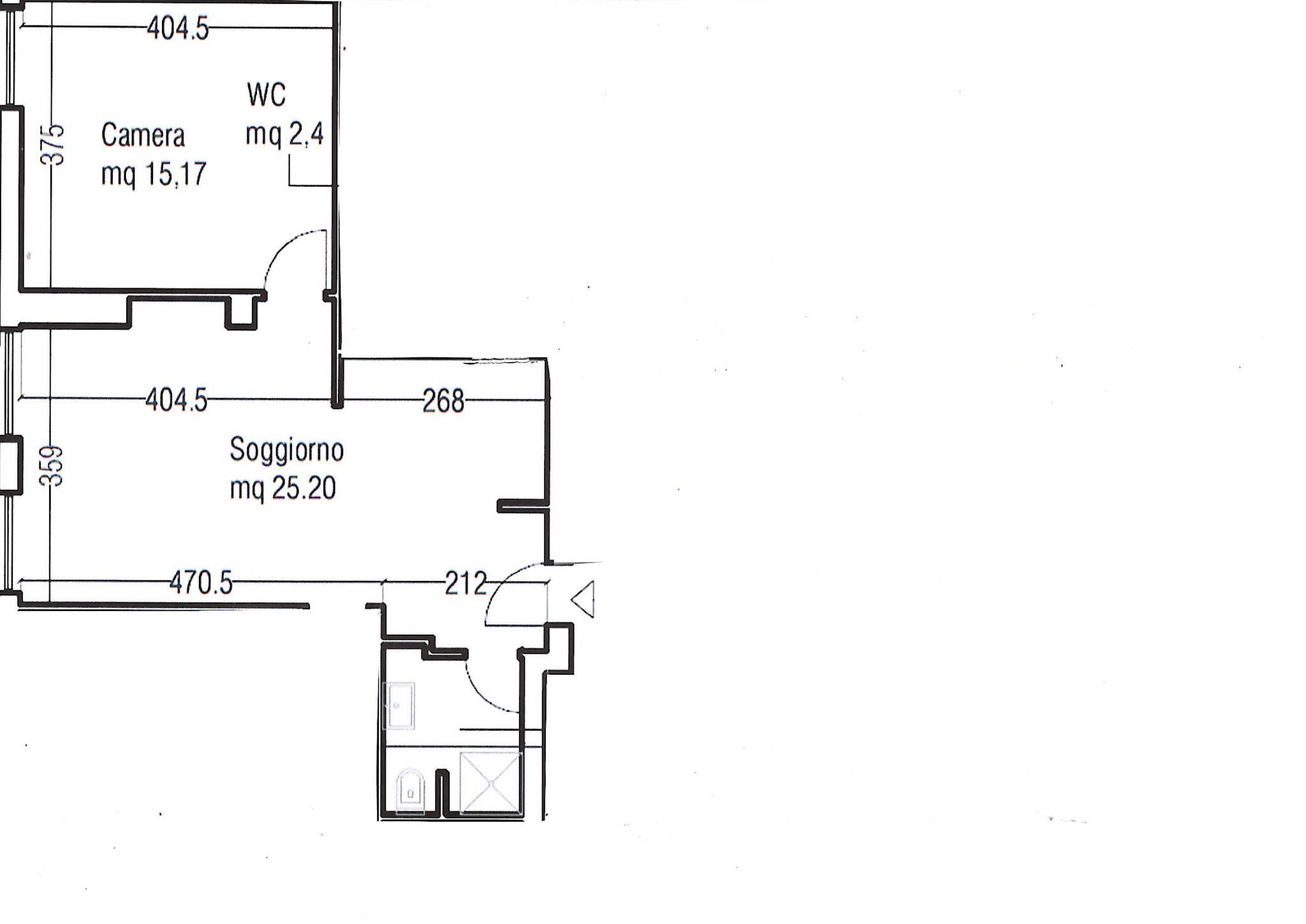
Posizione strategica: a pochi passi dalla fermata metro EUR Palasport, e alle principali sedi istituzionali, uffici internazionali e aziende. Proniamo in signorile condominio con portiere, la disponibilità di un moderno appartamento, sito al piano terra, con spazio esterno pavimentato. Caratteristiche dell'immobile: soggiorno con cucina a vista, camera da letto, bagno con box doccia. Dotazioni: internet Wi-Fi, Smart TV, aria condizionata in soggiorno, pavimenti in parquet, infissi in PVC doppio vetro, inferriate di sicurezza, zanzariere, porta blindata. L’appartamento, arredato con cura come da foto, è dotato di ogni comfort ed è completamente accessoriato: stoviglie, pentole, bicchieri, biancheria da letto e da bagno, aspirapolvere, asse e ferro da stiro. Una soluzione pronta da vivere, ideale per chi cerca praticità e comfort fin da subito. Contratto transitorio durata 6 mesi-Canone mensile € 1.200 + spese € 400 mensili includono: spese condominiali, riscaldamento, forfait dei consumi acqua, luce, gas, internet WI-FI, tari.
L'immobile è rivolto a persona appartenente a organizzazioni come FAO, WFP, IFAD. Dipendente in trasferta temporanea di lavoro, da azienda Italiana/multinazionale.

LEGGI TUTTO

CONDIVIDI SUI SOCIAL

DATI PRINCIPALI

Riferimento
631131
Contratto
Affitto
Tipologia
Appartamento
Superficie
60 mq
Locali
2
Camere da letto
1
Cucina
A vista
Bagni
1
Piano
Piano terra
Totale piani
6

CARATTERISTICHE

Ascensore

COSTI

Canone
Affitto € 1.200,00 al mese
Tipo locazione
Transitorio
Spese condominiali
€ 400,00 / mese, non incluse nel canone

EFFICIENZA ENERGETICA

Stato
Ristrutturato
Anno costruzione
1960
Riscaldamento
Centralizzato
Climatizzazione
Si
Classe energetica
G
IPE
175,00 kWh/m²a

A+

A

B

C

D

E

F

175,00 kWh/m²a | Classe energetica G

G

MAPPA

ANNUNCI SIMILI

AFFITTO 15
€ 3.000 mensili
Appartamento in Affitto a Roma, Zona Eur
  • Trilocale
  • 130 mq
  • 2 bagni
AFFITTO 13
€ 1.200 mensili
Appartamento in Affitto a Roma, Zona Eur
  • Bilocale
  • 40 mq
  • 1 bagno
AFFITTO 17
€ 1.500 mensili
Appartamento in Affitto a Roma, Zona Eur
  • Trilocale
  • 100 mq
  • 1 bagno
AFFITTO 15
€ 1.180 mensili
Appartamento in Affitto a Roma, Zona Eur
  • Bilocale
  • 65 mq
  • 1 bagno
AFFITTO 20
€ 1.900 mensili
Appartamento in Affitto a Roma, Zona Eur
  • Quadrilocale
  • 140 mq
  • 2 bagni
AFFITTO 20
€ 3.200 mensili
Appartamento in Affitto a Roma, Zona Eur
  • Più di 5 locali
  • 164 mq
  • 3 bagni
AFFITTO 16
€ 1.800 mensili

EUR

Appartamento in Affitto a Roma, Zona Eur
  • Quadrilocale
  • 113 mq
  • 2 bagni