• Bilocale
  • 55 mq
  • 1 bagno

Appartamento in Vendita a Roma

Proponiamo in vendita un appartamento ubicato al primo piano con balcone e due posti auto.
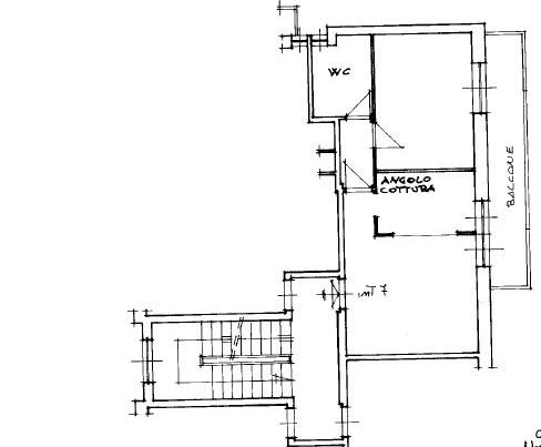
L'immobile si presenta in buono stato ed è composto dal soggiorno con portafinestra che consente l'uscita sul balcone, angolo cottura separato con finestra, disimpegno, camera da letto matrimoniale con accesso sul balcone e bagno finestrato con box doccia.
Completa la proprietà il balcone e due posti auto interni di pertinenza.
LIBERO DA SUBITO!!

L'agenzia Tecnocasa Vermicino presidia un mercato dinamico che collega Via Tuscolana ai centri di ricerca di Frascati e tutta la zona limitrofa di Tor Vergata Nuova e Casal Morena - Ponte Linari, rendendola una zona ottimale sia per famiglie che cercano la tranquillità vicino ai servizi, che per gli investitori che puntano alla locazione per studenti e ricercatori.

La nostra profonda conoscenza, legata a vendite effettuate in  vie chiave come Via di Vermicino lato Via Tuscolana, Via Anagnina, Via del Fosso di Sant’Andrea, Via Publio Elio, Via di Campo Romano , Via Flavia Demetria, Piazza Castro Libero, Via di Casal Morena e Via di San Matteo, ci permette di offrire valutazioni precise basate sul reale venduto.

 

Con oltre 10 anni di esperienza, supportiamo sia chi desidera vendere per 'upgrading' abitativo, sfruttando la nostra banca dati che conta centinaia di richieste attive per soluzioni indipendenti o semi, o bilocali , trilocali con giardino, tipologie più ricercate in questa fascia verde tra Roma e i Castelli; sia chi vuole acquistare un terreno grazie alla conoscenza maturata sulle dinamiche urbanistiche, in particolare per il piano Zona “O35 Ponte Linari – Campo Romano” deliberato ed in fase di attuazione.

 

Vivere a Vermicino significa scegliere l'equilibrio perfetto tra servizi urbani e tranquillità residenziale. Il mercato immobiliare locale mostra una resilienza superiore alla media romana grazie alla vicinanza con il Polo Universitario di Tor Vergata e i centri di ricerca INFN ed ESA-ESRIN.

Abbiamo seguito numerose vendite e trattative nelle vie principali di Tor Vergata Nuova come V.le Jean Paul Sartre, V.le Galvano della Volpe, Via Ugo Spirito maturando una conoscenza approfondita del mercato locale e divenendo esperti della legge 167 con relativa pratica di affrancazione offrendo consulenza qualificata su tutte le problematiche legate al diritto di superficie.

Il quartiere offre una vasta gamma di servizi, rendendolo un luogo ideale per vivere e lavorare. Numerosi centri commerciali come Tor Vergata, La Romanina e supermercati (Carrefour, Eurospin e Iper Pewex) garantiscono un facile accesso a beni di consumo, mentre le attività commerciali locali aggiungono un tocco di autenticità al tessuto sociale. I ristoranti e le pizzerie presenti riflettono la ricchezza della tradizione culinaria romana, offrendo opzioni per tutti i gusti. Le aree verdi e i parchi, come il Parco di Ponte Linari, offrono spazi ricreativi per attività all'aperto, promuovendo uno stile di vita sano e attivo. Le piste ciclabili, centri sportivi come “Tennis Country” e le aree fitness contribuiscono ulteriormente a creare un ambiente che incoraggia la partecipazione della comunità ad attività sportive e di svago. La presenza di efficienti collegamenti di trasporto pubblico, incluse stazioni della metropolitana e fermate degli autobus, facilita gli spostamenti all'interno del quartiere, verso il centro di Roma, e verso i Castelli grazie alle linee Schiaffini, rendendo questa zona una scelta strategica per chiunque voglia godere dei servizi della città senza rinunciare alla tranquillità della periferia.

LEGGI TUTTO

CONDIVIDI SUI SOCIAL

DATI PRINCIPALI

Riferimento
630307
Contratto
Vendita
Tipologia
Appartamento
Superficie
55 mq
Locali
2
Camere da letto
1
Cucina
Angolo cottura
Bagni
1
Piano
1 °
Totale piani
2
Box/Posto auto
Singolo

CARATTERISTICHE

Ascensore

COSTI

Prezzo
€ 149.000,00
Spese condominiali
€ 40,00 / mese

EFFICIENZA ENERGETICA

Stato
Abitabile
Anno costruzione
1980
Riscaldamento
Autonomo
Classe energetica
G
IPE
175,00 kWh/m²a

A+

A

B

C

D

E

F

175,00 kWh/m²a | Classe energetica G

G

MAPPA

ANNUNCI SIMILI

VENDITA 20
€ 109.000
Appartamento in Vendita a Roma (Roma)
  • Trilocale
  • 50 mq
  • 1 bagno
VENDITA 20
€ 145.000
Appartamento in Vendita a Roma (Roma)
  • Trilocale
  • 88 mq
  • 1 bagno
VENDITA 20
€ 399.000
Appartamento in Vendita a Roma, Frazione Tor Vergata
  • Più di 5 locali
  • 210 mq
  • 3 bagni
VENDITA 20
€ 139.000
Appartamento in Vendita a Roma, Frazione Tor Vergata
  • Bilocale
  • 77 mq
  • 1 bagno
VENDITA 20
€ 139.000
Appartamento in Vendita a Roma, Frazione Tor Vergata
  • Bilocale
  • 77 mq
  • 1 bagno
VENDITA 20
€ 280.000
Appartamento in Vendita a Roma, Frazione Tor Vergata
  • Trilocale
  • 73 mq
  • 2 bagni