€ 265.000
  • Bilocale
  • 60 mq
  • 1 bagno

Appartamento in Vendita a Roma

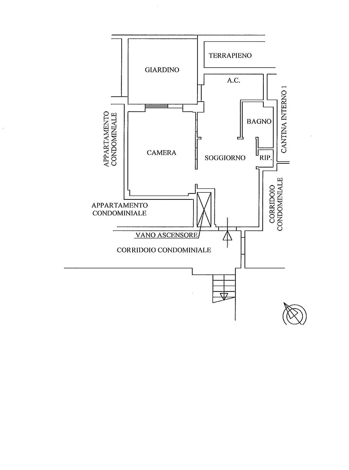
Nel cuore pulsante del quartiere Monteverde, in una zona tranquilla ma centralissima, proponiamo in vendita un grazioso bilocale completamente ristrutturato, ideale sia come abitazione principale che come uso investimento. L’immobile si trova in Via Ghislieri, con comodo accesso da via privata, all’interno di una palazzina in tinta in buono stato. È situato al piano S1, ma gode comunque di ottima luminosità grazie all’affaccio su un cortile privato di circa 20 mq, perfetto per momenti di relax all’aperto o per organizzare cene estive. L'appartamento è composto da Ingresso, soggiorno con angolo cottura, ampia camera da letto, bagno e cortile privato. L'appartamento è stato recentemente ristrutturato e si presenta pronto da abitare sin da subito. Ottima opportunità anche per uso investimento, l'immobile è già inserito con successo nel circuito della locazione turistica, con un’attività avviata da anni e recensioni eccellenti. Posizione strategica, a due passi da tutti i servizi, mezzi pubblici, negozi e bar.

LEGGI TUTTO

CONDIVIDI SUI SOCIAL

DATI PRINCIPALI

Riferimento
630177
Contratto
Vendita
Tipologia
Appartamento
Superficie
60 mq
Locali
2
Cucina
Angolo cottura
Bagni
1
Piano
Seminterrato

CARATTERISTICHE

Ascensore

COSTI

Prezzo
€ 265.000,00

EFFICIENZA ENERGETICA

Stato
Ristrutturato
Classe energetica
E
IPE
195,89 kWh/m²a

A+

A

B

C

D

195,89 kWh/m²a | Classe energetica E

E

F

G

MAPPA

ANNUNCI SIMILI