€ 1.200 mensili
  • Bilocale
  • 65 mq
  • 1 bagno

Appartamento in Affitto a Roma

RARO BILOCALE CENTRALISSIMO E PERFETTAMENTE RISTRUTTURATO.

"APPARTAMENTO LOCATO E NON PIU' DISPONIBILE".

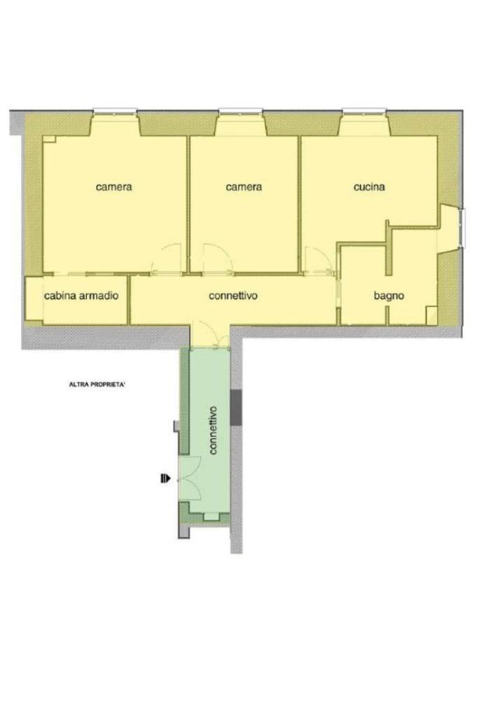
Inserito strategicamente in un nobile ed legante fazzoletto di territorio residenziale, a cavallo tra i quartieri di S.Giovanni e P.Maggiore e all'interno di un signorile edificio dalle storiche connotazioni, si propone al piano secondo, un rifinito, luminoso e accogliente appartamento dalle elevate soffittature, composto di un ingresso, un bel soggiorno, una camera da letto matrimoniale, una cucina abitabile, un bagno piuttosto ampio, comodo e fornito di tutti i comfort, una grande cabina armadio, oltre a diversi soppalchi e numerosi spazi ove riporre e stipare oggetti. Ottimale e ben congegnata, la distribuzione degli spazi fruibili della porzione immobiliare in oggetto, permette alla medesima di essere usufruita da persone single o da giovani coppie. L'appartamento in questione che di recente sarebbe stato interessato da alcuni interventi di ordinaria manutenzione generale, si presenta in eccellente stato con infissi a taglio termico, grate di sicurezza a beneficio delle ampie finestrature presenti nell'abitazione e porta blindata di ingresso. Gli arredi forniti al servizio della locazione, sono di ottima qualità e di tipo moderno mentre la cucina è completa e corredata dagli elettrodomestici necessari. La posizione geografica e ubicativa di questa soluzione abitativa è da considerarsi del tutto ottimale, in quanto il tessuto commerciale di riferimento è rappresentato da tutti i principali distributori di beni di largo consumo, uffici postali e banche e considerando che a poca distanza, raggiungibili mediante una comoda passeggiata, sono presenti diffusi servizi di trasporto pubblico, sia su gomma che su ferro e sotterraneo è possibile spostarsi velocemente in ogni direzione senza la necessità di ricorrere al mezzo privato. Location ideale per chiunque necessiti di un'ambientazione elegante e riservata ma allo stesso tempo perfettamente connessa ai prevalenti collegamenti e punti di interesse dell'Urbe. Libero e visitabile sin da subito.-PER QUANTI COLORO AVESSERO NECESSITA' DI COMUNICARE O SEGNALARE IL LORO INTERESSAMENTO ANCHE SOLO AL FINE DI RICEVERE INFORMAZIONI, RISPETTO AI PRODOTTI IMMOBILIARI OFFERTI, POTRANNO FARLO ANCHE INVIANDO UNA MAIL O CONTATTANDO IL RECAPITO PORTATILE "350-0255828".

LEGGI TUTTO

CONDIVIDI SUI SOCIAL

DATI PRINCIPALI

Riferimento
628927
Contratto
Affitto
Tipologia
Appartamento
Superficie
65 mq
Locali
2
Camere da letto
1
Cucina
Abitabile
Bagni
1
Piano
2 °
Totale piani
4

CARATTERISTICHE

Ascensore

COSTI

Canone
Affitto € 1.200,00 al mese
Tipo locazione
3+2 concordato
Spese condominiali
€ 50,00 / mese, non incluse nel canone

EFFICIENZA ENERGETICA

Stato
Ristrutturato
Anno costruzione
1938
Riscaldamento
Centralizzato
Climatizzazione
Si
Classe energetica
C
IPE
351,00 kWh/m²a

A+

A

B

351,00 kWh/m²a | Classe energetica C

C

D

E

F

G

MAPPA

ANNUNCI SIMILI

AFFITTO 20
€ 2.100 mensili
Appartamento in Affitto a Roma, Zona San Giovanni
  • Quadrilocale
  • 134 mq
  • 2 bagni
AFFITTO 16
€ 1.750 mensili
Appartamento in Affitto a Roma, Zona Esquilino
  • Bilocale
  • 65 mq
  • 1 bagno
AFFITTO 4
€ 700 mensili
Appartamento in Affitto a Roma, Zona San Giovanni
  • Trilocale
  • 75 mq
  • 2 bagni