€ 395.000
  • Bilocale
  • 90 mq
  • 1 bagno

Appartamento in Vendita a Roma

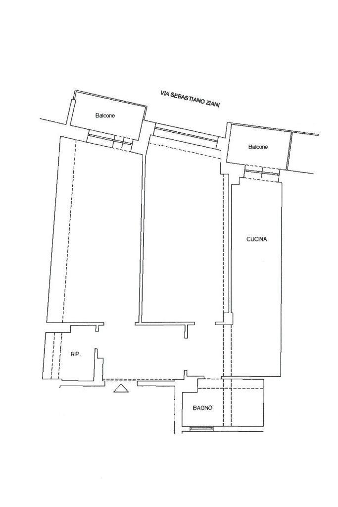
AD. METRO CIPRO - A pochi passi dalla Metro Cipro, al primo piano (secondo in catasto) di una palazzina degli anni '50, proponiamo in vendita un ampio bilocale di 90 mq.
L’immobile, sito in Via Sebastiano Ziani, attualmente è composto da un ampio ingresso, soggiorno, camera da letto matrimoniale, cucina abitabile, bagno, ripostiglio e due balconi.
L'ampia metratura offre il vantaggio di avere ampi spazi e grande flessibilità in un taglio piccolo, permettendo di creare zone living e notte ben definite, magari con due bagni, studio o area relax.
La maggiore vivibilità rispetto a un bilocale standard, la presenza di numerosi servizi e mezzi pubblici, rendono questa soluzione molto interessante non solo come investimento ma anche come abitazione principale.

LEGGI TUTTO

CONDIVIDI SUI SOCIAL

DATI PRINCIPALI

Riferimento
628391
Contratto
Vendita
Tipologia
Appartamento
Superficie
90 mq
Locali
2
Camere da letto
1
Cucina
Abitabile
Bagni
1
Piano
1 °
Totale piani
7

CARATTERISTICHE

Ascensore

COSTI

Prezzo
€ 395.000,00

EFFICIENZA ENERGETICA

Stato
Abitabile
Anno costruzione
1960
Riscaldamento
Centralizzato
Climatizzazione
Si
Classe energetica
F
IPE
118,36 kWh/m²a

A+

A

B

C

D

E

118,36 kWh/m²a | Classe energetica F

F

G

MAPPA

ANNUNCI SIMILI

VENDITA 20
€ 570.000
Appartamento in Vendita a Roma (Roma)
  • Quadrilocale
  • 113 mq
  • 3 bagni
VENDITA 14
€ 460.000
Appartamento in Vendita a Roma (Roma)
  • Bilocale
  • 95 mq
  • 1 bagno
VENDITA 20
€ 540.000
Appartamento in Vendita a Roma (Roma)
  • Trilocale
  • 120 mq
  • 2 bagni
VENDITA 20
€ 590.000
Appartamento in Vendita a Roma (Roma)
  • Più di 5 locali
  • 140 mq
  • 2 bagni
VENDITA 11
€ 448.000
Appartamento in Vendita a Roma (Roma)
  • Quadrilocale
  • 105 mq
  • 2 bagni