BILOCALE RISTRUTTURATO VENDESI A CASAL LUMBROSO VENDITA

Via Bartolomeo Chesi, 0 - Roma, Zona Casal Lumbroso
€ 109.000
  • Bilocale
  • 40 mq
  • 1 bagno

Appartamento in Vendita a Roma

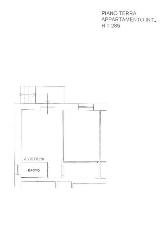
Zona Casal Lumbroso, la Domus Group Immobiliare propone in vendita un appartameto bilocale di 40 mq situato al piano terra rialzato di un villino con ingresso indipendente. Questo appartamento completamente ristrutturato offre un soggiorno luminoso con angolo cottura, una camera matrimoniale accogliente e un bagno funzionale.

Caratterizzato da infissi in alluminio doppio vetro e persiane in ferro zincato, l'immobile garantisce comfort e sicurezza. Il riscaldamento autonomo con pompa di calore assicura temperature gradevoli durante tutto l'anno. Le spese condominiali sono contenute, ammontando a soli 20 euro mensili.

Situata nel tranquillo quartiere di Casale Lumbroso, questa proprietà consente facili collegamenti verso le principali arterie della capitale. In pochi minuti potrete raggiungere il centro grazie alle diverse opzioni di trasporto pubblico disponibili nelle vicinanze.

La zona circostante è ben fornita: supermercati, negozi locali e strutture sanitarie sono facilmente accessibili per soddisfare tutte le vostre esigenze quotidiane.

Inoltre, vi è la possibilità di acquistare una porzione del giardino privato e un posto auto scoperto.

Non lasciatevi sfuggire questa opportunità unica! Per prenotare una visita o ricevere ulteriori informazioni non esitate a contattare la Domus Group Immobiliare ai numeri 06/61561238 e 3270840957; siamo disponibili anche tramite WhatsApp.

Per scoprire altre soluzioni immobiliari visitate i nostri siti:
www.domusgrouproma.com
e www.frimm.com/sito/44146/

LEGGI TUTTO

CONDIVIDI SUI SOCIAL

DATI PRINCIPALI

Riferimento
643828
Contratto
Vendita
Tipologia
Appartamento
Superficie
40 mq
Locali
2
Camere da letto
1
Cucina
Angolo cottura
Bagni
1
Piano
Piano rialzato
Totale piani
1
Box/Posto auto
Singolo

CARATTERISTICHE

Ascensore

COSTI

Prezzo
€ 109.000,00
Spese condominiali
€ 20,00 / mese

EFFICIENZA ENERGETICA

Stato
Ristrutturato
Anno costruzione
1980
Riscaldamento
Autonomo
Classe energetica
G
IPE
175,00 kWh/m²a

A+

A

B

C

D

E

F

175,00 kWh/m²a | Classe energetica G

G

MAPPA

ANNUNCI SIMILI

VENDITA 20
€ 219.000
Appartamento in Vendita a Roma, Zona Massimina
  • Trilocale
  • 71 mq
  • 2 bagni
VENDITA 20
€ 217.000
Appartamento in Vendita a Roma, Zona Massimina
  • Trilocale
  • 85 mq
  • 2 bagni