Bilocale ristrutturato Monteverde vecchio VENDITA

Via Damaso Cerquetti - Roma (Roma)
€ 290.000
  • Bilocale
  • 64 mq
  • 1 bagno

Appartamento in Vendita a Roma

**Monteverde nuovo - Via Damaso Cerquetti**

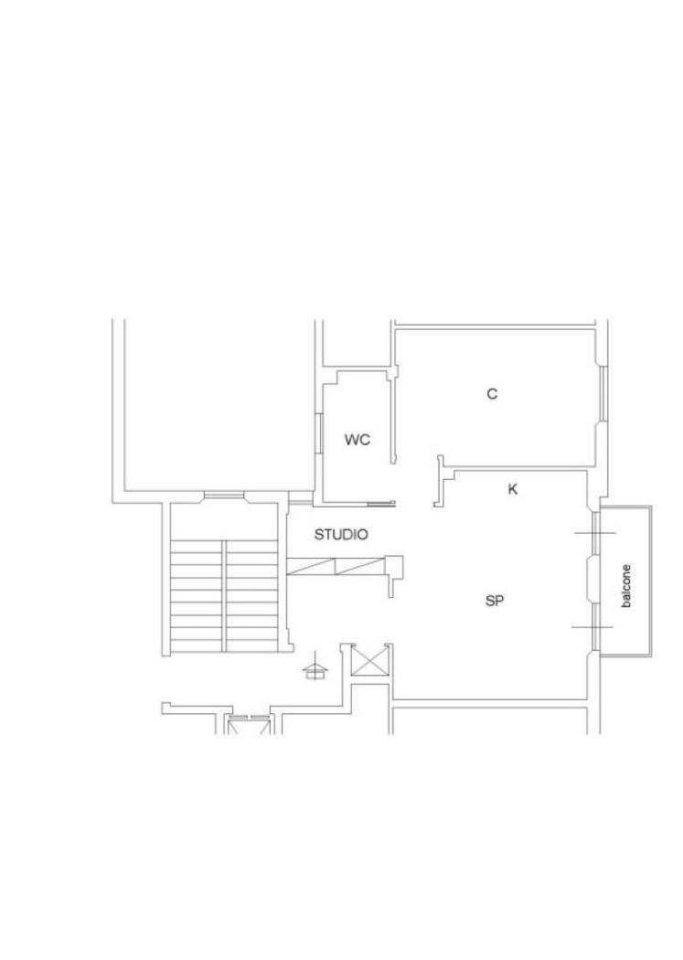
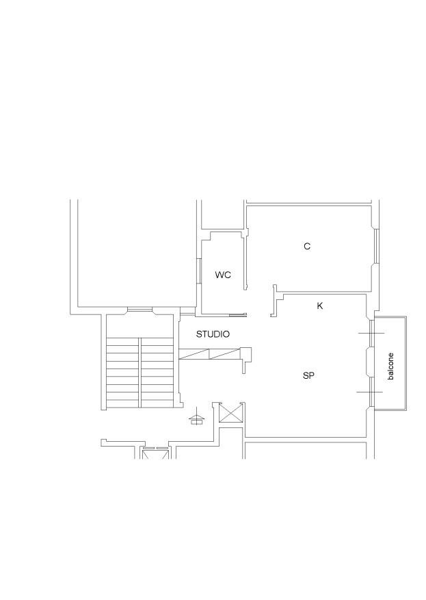
Scopri questo splendido appartamento di 64 mq situato al quarto piano di un elegante edificio, dotato di ascensore. La proprietà si presenta in ottimo stato e offre un comodo balcone perfetto per goderti momenti di relax all'aria aperta. L'ingresso conduce a un luminoso salotto con doppia finestra e cucina a vista completamente accessoriata, creando un ambiente accogliente e moderno.

L'angolo studio open space è ideale per chi lavora da casa, mentre l'ampia camera da letto padronale garantisce il massimo del comfort. Completano l'immobile un antibagno e un bagno con finestra e box doccia, rendendo ogni spazio funzionale e ben progettato. La predisposizione per l'impianto di aria condizionata e il riscaldamento centralizzato assicurano un clima perfetto in ogni stagione.

Situato in una zona tranquilla ma ben collegata, l'appartamento è vicino a negozi, servizi e ottime scuole. La prossimità al polo ospedaliero del San Camillo e alle stazioni ferroviarie di Trastevere e Quattro Venti rende questo immobile una scelta strategica per chi desidera muoversi facilmente in città. Ideale anche come investimento, questa proprietà rappresenta un'opportunità imperdibile per chi cerca un'abitazione confortevole e ben posizionata. Non perdere l'occasione di visitarlo!

LEGGI TUTTO

CONDIVIDI SUI SOCIAL

DATI PRINCIPALI

Riferimento
626049
Contratto
Vendita
Tipologia
Appartamento
Superficie
64 mq
Locali
2
Camere da letto
1
Cucina
A vista
Bagni
1
Piano
4 °
Totale piani
6

CARATTERISTICHE

Ascensore

COSTI

Prezzo
€ 290.000,00
Spese condominiali
€ 60,00 / mese

EFFICIENZA ENERGETICA

Stato
Abitabile
Anno costruzione
1970
Riscaldamento
Centralizzato
Classe energetica
F
IPE
175,00 kWh/m²a

A+

A

B

C

D

E

175,00 kWh/m²a | Classe energetica F

F

G

MAPPA

ANNUNCI SIMILI

VENDITA 19
€ 295.000
Appartamento in Vendita a Roma (Roma)
  • Trilocale
  • 70 mq
  • 1 bagno
VENDITA 14
€ 258.000
Appartamento in Vendita a Roma (Roma)
  • Trilocale
  • 76 mq
  • 1 bagno
VENDITA 20
€ 320.000
Appartamento in Vendita a Roma (Roma)
  • Bilocale
  • 72 mq
  • 1 bagno
VENDITA 20
€ 279.000
Appartamento in Vendita a Roma (Roma)
  • Bilocale
  • 72 mq
  • 1 bagno
VENDITA 20
€ 429.000
Appartamento in Vendita a Roma (Roma)
  • Quadrilocale
  • 109 mq
  • 2 bagni
VENDITA 18
€ 369.000
Appartamento in Vendita a Roma (Roma)
  • Quadrilocale
  • 99 mq
  • 2 bagni