Bilocale nuova costruzione VENDITA

Via Gorlago - Roma, Zona Ottavia
€ 179.000
  • Bilocale
  • 50 mq
  • 1 bagno

Appartamento in Vendita a Roma

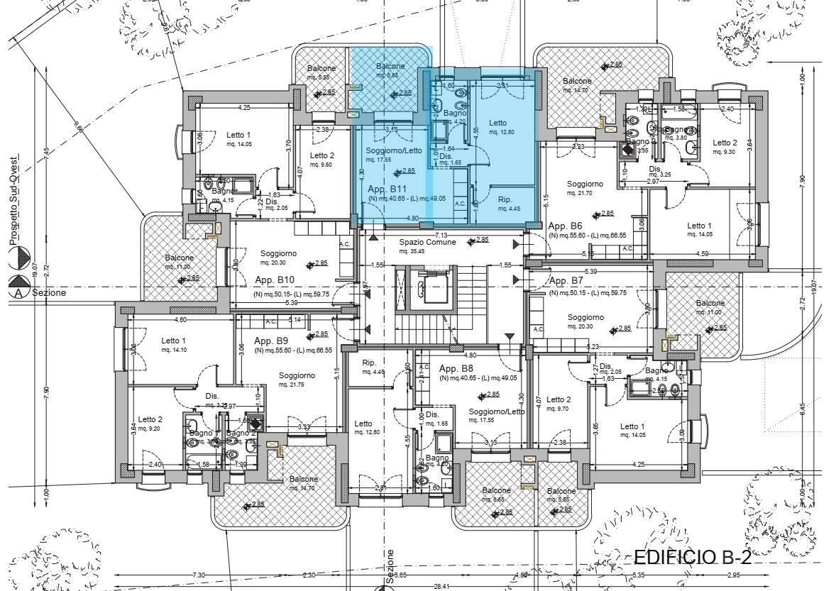
Primo piano € 179.000 CONFRONTA IL PREZZO Ultime disponibilità CONSEGNA 2026, straordinario Complesso Residenziale, composto da due palazzine che ripeteranno il successo ottenuto per il primo comparto adiacente all’area in oggetto, dove stiamo realizzando 40 appartamenti (20 per palazzina) su soli 3 piani. Il capitolato prevede una struttura di ultima generazione ed alcuni accorgimenti tecnologici molto performanti . Ottima la dotazione In particolare, pavimento radiante, climatizzatori montati, serrande elettriche ecc.. Tutto questo concorrerà all’ottenimento di una struttura solida, elegante ed in classe energetica A. la tipologia proposta prevede Soggiorno con Cucina a Vista, Camera da Letto, cabina armadio, bagno, loggia di 10 MQ CIRCA sono disponibili BOX da 15 a 30 mq CANTINE e POSTI AUTO a prezzi incredibili. E’ stato possibile mantenere questo straordinario listino mai a discapito di qualità e tecnologia applicata, ma solo per la natura della compagine che realizzerà l’intervento, che fa capo ad una cooperativa che da anni opera nell'edilizia romana con elevato successo , ogni inziativa è sold out a conferma della bontà dell'opera svolta ( www.lacasaecologicailpino.it) *Le planimetrie sono indicative e possono essere soggette a successive modifiche, non costituiscono elemento contrattuale

LEGGI TUTTO

CONDIVIDI SUI SOCIAL

DATI PRINCIPALI

Riferimento
626187
Contratto
Vendita
Tipologia
Appartamento
Superficie
50 mq
Locali
2
Camere da letto
1
Cucina
A vista
Bagni
1
Piano
1 °
Totale piani
3

CARATTERISTICHE

Ascensore

COSTI

Prezzo
€ 179.000,00
Spese condominiali
€ 1,00 / mese

EFFICIENZA ENERGETICA

Stato
Nuovo/In costruzione
Anno costruzione
2025
Riscaldamento
Autonomo
Climatizzazione
Si
Classe energetica
A+
IPE
175,00 kWh/m²a
175,00 kWh/m²a | Classe energetica A+

A+

A

B

C

D

E

F

G

MAPPA

ANNUNCI SIMILI

VENDITA 12
€ 185.000
Appartamento in Vendita a Roma, Zona Ottavia
  • Bilocale
  • 56 mq
  • 1 bagno
VENDITA 20
€ 235.000
Appartamento in Vendita a Roma, Zona Ottavia
  • Quadrilocale
  • 100 mq
  • 1 bagno
VENDITA 20
€ 340.000
Appartamento in Vendita a Roma, Zona Ottavia
  • Quadrilocale
  • 144 mq
  • 2 bagni