Bilocale di ampia metratura con giardini privati e box VENDITA

Via Emanuele Tesauro 35 - Roma, Zona Bufalotta
€ 239.000
  • Bilocale
  • 78 mq
  • 1 bagno

Appartamento in Vendita a Roma

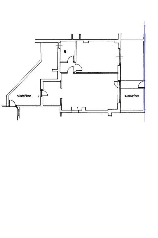
Roma - Bufalotta - Cinquina - Tor San Giovanni - via Emanuele Tesauro - All'interno di un complesso residenziale con giardini condominiali, in contesto circondato da ampi spazi verdi, parchi e piste ciclabili, proponiamo la vendita di un ampio e rifinito bilocale di circa 80 mq, posto al piano terra di una palazzina in cortina di solo tre elevazioni, dotata di ascensore.
L'immobile è così composto: soggiorno, cucina, disimpegno, camera matrimoniale, bagno con vasca e finestra e due giardini fronte-retro entrambi pavimentati e con entrata indipendente, ideali per trascorrere momenti di relax e di convivialità in famiglia e tra amici.
Completa la proprietà un box auto di 20 mq.
La casa gode di una doppia esposizione ed è dotata di: porta blindata, climatizzatori, infissi in doppio vetro e PVC, grate, zanzariere e tende da sole. Riscaldamento autonomo.
La proprietà è a pochi passi da tutti i servizi di pubblica utilità, quali supermercati, posta, farmacia, scuole, centri commerciali (Porta di Roma e Talenti Village), ed inoltre si trova a breve distanza dall'uscita Bufalotta del G.R.A.
Tutte le informazioni contenute nel presente annuncio non costituiscono vincolo contrattuale.
La vendita è curata dalla VALORE IMMOBILIARE L’agenzia VALORE IMMOBILIARE si trova nel quartiere Bufalotta-Talenti, nelle sedi di:
- via della Bufalotta n.356 (angolo via Renato Fucini)
- via Franco Sacchetti n.35 (nuova apertura). Siamo aperti dal lunedì al venerdì 09:30 alle 13:00 e dalle 15:30 alle 19:30. Il Sabato dalle 9:30 alle 12:30. Per avere maggiori informazioni su questo annuncio e per fissare un appuntamento puoi contattarci al numero: 0631071342. Hai trovato la casa che fa per te ma non puoi chiamarci in questo momento? Inviaci un messaggio WhatsApp o un SMS al numero 3272051472, indicando la via dell’appartamento, il prezzo o il riferimento dell’annuncio e ti risponderemo al più presto. In alternativa puoi inviarci una mail a info@valoreimmobiliare.it. Gestiremo più facilmente la tua richiesta. Se ti occorre vendere la tua casa per acquistarne un'altra, contattaci per una consulenza gratuita e senza impegno. Lavoriamo su tutta Roma, garantendoti tutta la cura e la competenza di cui hai bisogno per vendere al meglio il tuo immobile. Visita il sito www.valoreimmobiliare.it per scoprire chi siamo e quali servizi possiamo offrirti. Se vuoi rimanere sempre aggiornato su tutte le nostre nuove proposte in anteprima puoi iscriverti gratuitamente alla nostra newsletter sul sito internet o seguirci sui nostri canali social Facebook (Valore Immobiliare) e Instagram (valore_immobiliare).

LEGGI TUTTO

CONDIVIDI SUI SOCIAL

DATI PRINCIPALI

Riferimento
638265
Contratto
Vendita
Tipologia
Appartamento
Superficie
78 mq
Locali
2
Camere da letto
1
Cucina
Cucinotto
Bagni
1
Piano
Piano terra
Totale piani
3
Box/Posto auto
Singolo

CARATTERISTICHE

Ascensore

COSTI

Prezzo
€ 239.000,00
Spese condominiali
€ 65,00 / mese

EFFICIENZA ENERGETICA

Stato
Abitabile
Anno costruzione
1980
Riscaldamento
Autonomo
Climatizzazione
Si
Classe energetica
G
IPE
175,00 kWh/m²a

A+

A

B

C

D

E

F

175,00 kWh/m²a | Classe energetica G

G

MAPPA

ANNUNCI SIMILI

VENDITA 20
€ 199.000
Appartamento in Vendita a Roma, Zona Bufalotta
  • Bilocale
  • 53 mq
  • 1 bagno
VENDITA 20
€ 238.000
Appartamento in Vendita a Roma, Zona Bufalotta
  • Quadrilocale
  • 107 mq
  • 2 bagni
VENDITA 20
€ 159.000
Appartamento in Vendita a Roma, Zona Bufalotta
  • Bilocale
  • 60 mq
  • 1 bagno