BILOCALE AL CENTRO STORICO DI MONTECELIO VENDITA

Via degli Scogli - Guidonia Montecelio (Roma)
€ 39.000
  • Bilocale
  • 50 mq
  • 1 bagno

Appartamento in Vendita a Guidonia Montecelio

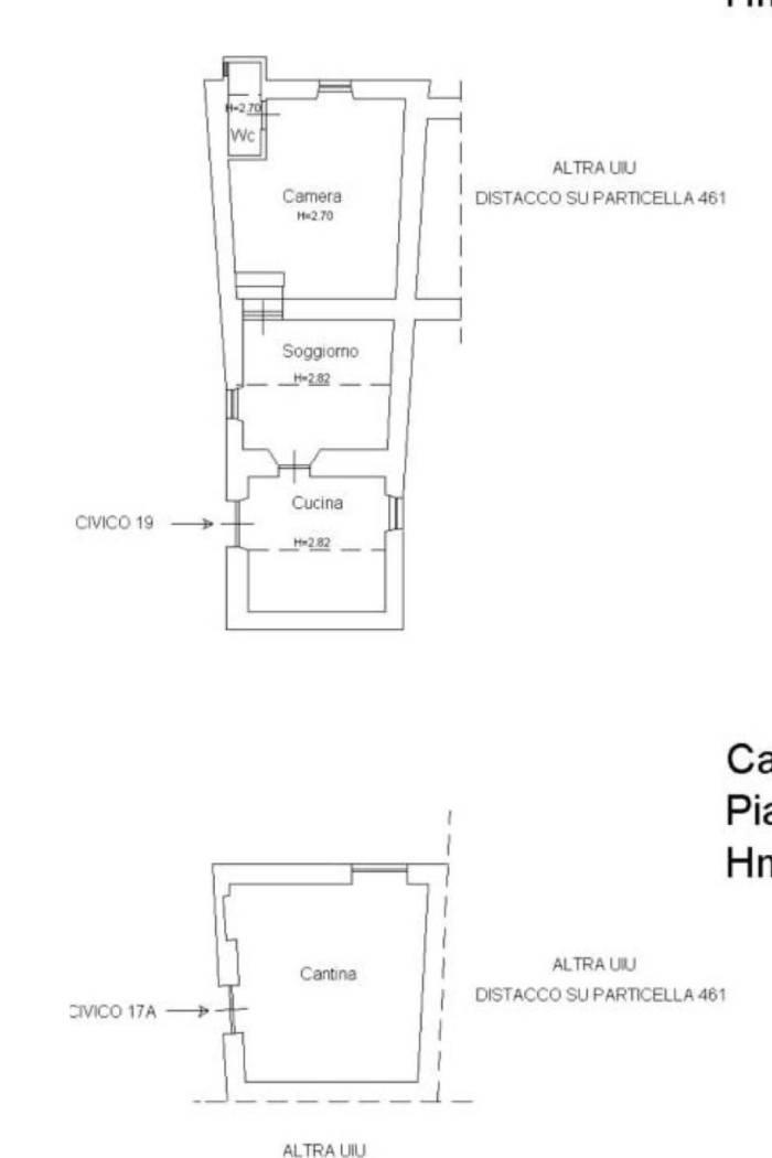
In una delle posizioni più alte e panoramiche del centro storico di Montecelio, proponiamo in vendita un appartamento bilocale dallo stile tradizionale, situato in una zona accessibile unicamente a piedi, dove il tempo sembra essersi fermato.
Qui la vista si apre su un paesaggio collinare straordinario, e ogni finestra racconta una storia.

L’appartamento si trova al primo piano e conserva le finiture originali dell’epoca.
La cucina abitabile, affacciata su una finestra con vista, è l’ambiente centrale della casa, affiancata da un salottino accogliente e una camera da letto con bagno.
A rendere l’immobile davvero speciale è il terrazzo panoramico, un angolo riservato da cui godere di tramonti spettacolari e del silenzio del borgo.
Di pertinenza troviamo la presenza di un rustico al piano sottostante.

Contattaci subito per maggiori informazioni o per organizzare un appuntamento.

MondoCasaRE Guidonia
Telefono: 0774.346881 / 0774.346888
Whatsapp: +39.3928537953
Mail: mondocasareguidonia@gmail.com
www.mondocasare.com
Fb: Mondocasare Guidonia
Ig: mondocasare

LEGGI TUTTO

CONDIVIDI SUI SOCIAL

DATI PRINCIPALI

Riferimento
640042
Contratto
Vendita
Tipologia
Appartamento
Superficie
50 mq
Locali
2
Camere da letto
1
Cucina
Abitabile
Bagni
1
Piano
1 °
Totale piani
1

CARATTERISTICHE

Ascensore

COSTI

Prezzo
€ 39.000,00

EFFICIENZA ENERGETICA

Stato
Abitabile
Anno costruzione
1967
Classe energetica
F
IPE
175,00 kWh/m²a

A+

A

B

C

D

E

175,00 kWh/m²a | Classe energetica F

F

G

MAPPA

ANNUNCI SIMILI

VENDITA 20
€ 315.000
Appartamento in Vendita a Guidonia Montecelio (Roma)
  • Quadrilocale
  • 110 mq
  • 2 bagni