Bilivelli Viale Trastevere VENDITA

Via Federico Rosazza - Roma, Zona Trastevere
€ 548.000
  • Trilocale
  • 109 mq
  • 1 bagno

Appartamento in Vendita a Roma

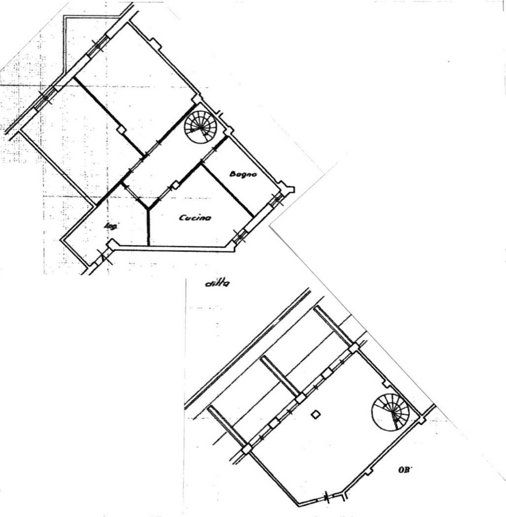
Lo Studio Sefi propone in vendita un interessante appartamento bilivelli situato in zona Trastevere, a pochi passi dalla parte storica.
L'immobile è di Mq 109, disposto su due livelli, situato all'ottavo e nono piano in un palazzo servito da ascensore e servizio di portineria.
Completamente ristrutturato in varie fasi negli ultimi anni. Per la sua posizione gode di un ottima luminosità.
Nella disposizione degli spazi interni, il piano ottavo è composto da ingresso di ampia metratura, corridoio, due grandi camere, cucina abitabile, servizio e balcone.
Il piano nono è composto da ingresso indipendente, ampio salone e balcone. Il collegamento tra i due piani, che nell'intero costituisce la proprietà è garantito da una comoda scala interna.
L'immobile rappresenta un ottimo investimento anche ai fini di un ingresso indipendente dedicato ad ogni piano, rendendolo potenzialmente predisposto ad una suddivisione in due unità abitative autonome.
La zona gode di ogni genere di servizi nelle immediate vicinanze, ottimamente servita da mezzi di superfice con altissima frequenza verso ogni direzione della capitale oltre alla stazione di Trastevere a pochi minuti a piedi.
Per maggiori informazioni o per prenotare una visita siamo a vostra disposizione previo appuntamento allo 06 58333124 - 3939090497

LEGGI TUTTO

CONDIVIDI SUI SOCIAL

DATI PRINCIPALI

Riferimento
641181
Contratto
Vendita
Tipologia
Appartamento
Superficie
109 mq
Locali
3
Camere da letto
2
Cucina
Abitabile
Bagni
1
Piano
Più di 7 piani
Totale piani
8

CARATTERISTICHE

Ascensore

COSTI

Prezzo
€ 548.000,00
Spese condominiali
€ 100,00 / mese

EFFICIENZA ENERGETICA

Stato
Ristrutturato
Anno costruzione
1960
Riscaldamento
Centralizzato
Climatizzazione
Si
Classe energetica
D
IPE
351,00 kWh/m²a

A+

A

B

C

351,00 kWh/m²a | Classe energetica D

D

E

F

G

MAPPA

ANNUNCI SIMILI

VENDITA 20
€ 360.000
Appartamento in Vendita a Roma, Zona Trastevere
  • Più di 5 locali
  • 100 mq
  • 1 bagno
VENDITA 20
€ 389.000
Appartamento in Vendita a Roma, Zona Trastevere
  • Trilocale
  • 91 mq
  • 1 bagno
VENDITA 7
€ 640.000
Appartamento in Vendita a Roma, Zona Trastevere
  • Più di 5 locali
  • 200 mq
  • 2 bagni
VENDITA 20
€ 519.000
Appartamento in Vendita a Roma (Roma)
  • Trilocale
  • 60 mq
  • 1 bagno
VENDITA 20
€ 495.000
Appartamento in Vendita a Roma, Zona Trastevere
  • Trilocale
  • 77 mq
  • 2 bagni