ATTICO E SUPERATTICO IN VENDITA - TORRE ANGELA VENDITA

Via Delle Driadi 39 - Roma, Zona Torre Angela
€ 205.000
  • Trilocale
  • 125 mq
  • 2 bagni

Appartamento in Vendita a Roma

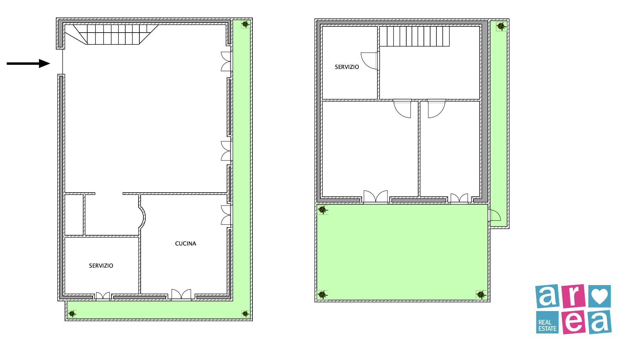
In zona Torre Angela, precisamente in Via delle Driadi, siamo lieti di presentare questo comodo appartamento disposto su due livelli - attico e superattico.
L'immobile, caratterizzato da ambienti ampi e ben distribuiti, è in buone condizioni interne ed è realizzato con materiali di pregio e finiture raffinate.
Al piano inferiore, ci accoglie un luminoso salone doppio con camino, ideale per vivere momenti conviviali, una cucina abitabile spaziosa e funzionale, un servizio finestrato con vasca e un pratico armadio a muro.
Salendo al piano superiore, troviamo la zona notte, composta da: una camera padronale, una cameretta, un servizio con doccia ed un ampio terrazzo perfetto per godersi momenti di relax all'aria aperta in totale privacy.
L'appartamento gode inoltre della presenza di balconi su entrambi i livelli.
La sua duplice esposizione garantisce un'ottima luminosità naturale durante l'intero arco della giornata.
La zona è ottimamente servita dai mezzi pubblici con la linea Metro C e numerose linee di autobus che collegano comodamente anche alla Metro A, oltre a scuole, negozi e servizi di ogni genere nelle immediate vicinanze.
Una soluzione ideale per giovani coppie, famiglie o come uso investimento.

La vendita è seguita dal Realty Store Area-re. Siamo specializzati in PERMUTE, VENDITE, LOCAZIONI e tutte le operazioni immobiliari in tutta Roma e nei dintorni grazie alla rete di Franchising Area-re con Realty Store nelle principali vie di tutti i quartieri di Roma. Di quanti Metri Cuori sarà la tua nuova casa? Scoprilo nel nostro Store o su area-re.it/realty-store/realty-store-appio/

LEGGI TUTTO

CONDIVIDI SUI SOCIAL

DATI PRINCIPALI

Riferimento
636614
Contratto
Vendita
Tipologia
Appartamento
Superficie
125 mq
Locali
3
Camere da letto
2
Cucina
Abitabile
Bagni
2
Piano
3 °
Totale piani
4

CARATTERISTICHE

Ascensore

COSTI

Prezzo
€ 205.000,00

EFFICIENZA ENERGETICA

Stato
Ristrutturato
Anno costruzione
1970
Riscaldamento
Autonomo
Climatizzazione
Si
Classe energetica
G
IPE
351,00 kWh/m²a

A+

A

B

C

D

E

F

351,00 kWh/m²a | Classe energetica G

G

MAPPA

ANNUNCI SIMILI

VENDITA 18
€ 249.000
Appartamento in Vendita a Roma, Zona Torre Angela
  • Quadrilocale
  • 140 mq
  • 2 bagni
VENDITA 9
€ 149.000
Appartamento in Vendita a Roma, Zona Torre Angela
  • Trilocale
  • 80 mq
  • 1 bagno