Ariccia - 4 locali 345.000 T415 VENDITA

Viale dei Noccioli - Ariccia (Roma)
€ 345.000
  • Quadrilocale
  • 130 mq
  • 2 bagni

Appartamento in Vendita a Ariccia

Appartamenti in Villa su Due Livelli Nuova Costruzione Montegentile, Ariccia

Nel prestigioso comprensorio residenziale di Montegentile, immerso nel verde e nella tranquillità dei Castelli Romani, proponiamo tre eleganti appartamenti in villa di nuova costruzione su due livelli, ciascuno con ingresso indipendente, ampie aree esterne private e rifiniture di alto livello.

-Disponibilità:

Due unità laterali con tripla esposizione e ampi giardini frontali e posteriori

Una unità centrale con doppia esposizione e giardino su entrambi i lati

Giardini privati di varie metrature, da 300 a 1.400 mq

Ogni unità dispone di tre posti auto privati

-Caratteristiche principali:

Superficie interna: circa 130 mq

Giardini da 300 a 1.400 mq

Giardino al piano superiore, accessibile dalla camera da letto principale

-Distribuzione interna:

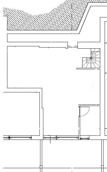
Piano terra: accesso dal giardino privato con area parcheggio, portico, ampio soggiorno con cucina a vista e bagno completo con finestra.

Primo piano: due camere matrimoniali, una camera un ripostiglio ed un secondo bagno. Da una delle camere si accede a un giardino privato al piano superiore di circa 30 mq.

-Finiture e dotazioni:

Riscaldamento radiante a pavimento

Caldaia a condensazione

Predisposizione e cablaggio per pannelli fotovoltaici

Grate di sicurezza artigianali al piano terra e persiane di sicurezza nella zona notte

Infissi in PVC con doppio vetro camera

-Posizione:
Le proprietà si trovano nel rinomato comprensorio di Montegentile, una delle zone più esclusive e ricercate di Ariccia, a pochi minuti da Albano e Genzano, in posizione riservata ma ben collegata con la via Appia e Roma.

Prezzi a partire da € 345.000

CONTATTACI PER FISSARE UN APPUNTAMENTO!
Funzionario referente: Fabrizio Coppi 328.46.10.779
www.immobilcenter.it

Castelli Romani -- Albano Laziale -- RM
Corso G. Matteotti 125, 00041
TL 06 81150220

Roma -- Furio Camillo
Via Aulo Plauzio 6, 00181

LEGGI TUTTO

CONDIVIDI SUI SOCIAL

DATI PRINCIPALI

Riferimento
639054
Contratto
Vendita
Tipologia
Appartamento
Superficie
130 mq
Locali
4
Camere da letto
3
Cucina
Abitabile
Bagni
2
Piano
Piano terra
Totale piani
3
Box/Posto auto
Singolo

CARATTERISTICHE

Ascensore

COSTI

Prezzo
€ 345.000,00

EFFICIENZA ENERGETICA

Stato
Nuovo/In costruzione
Anno costruzione
2025
Riscaldamento
Autonomo
Classe energetica
B
IPE
98,88 kWh/m²a

A+

A

98,88 kWh/m²a | Classe energetica B

B

C

D

E

F

G

MAPPA

ANNUNCI SIMILI

VENDITA 20
€ 195.000
Appartamento in Vendita a Ariccia (Roma)
  • Più di 5 locali
  • 126 mq
  • 2 bagni
VENDITA 20
€ 245.000
Appartamento in Vendita a Ariccia (Roma)
  • Più di 5 locali
  • 130 mq
  • 3 bagni
VENDITA 20
€ 189.000
Appartamento in Vendita a Ariccia (Roma)
  • Quadrilocale
  • 126 mq
  • 2 bagni
VENDITA 13
€ 295.000
Appartamento in Vendita a Ariccia (Roma)
  • Quadrilocale
  • 130 mq
  • 2 bagni
VENDITA 20
€ 395.000
Appartamento in Vendita a Ariccia (Roma)
  • Quadrilocale
  • 155 mq
  • 3 bagni
VENDITA 20
€ 199.000
Appartamento in Vendita a Ariccia (Roma)
  • Più di 5 locali
  • 159 mq
  • 2 bagni
VENDITA 20
€ 225.000
Appartamento in Vendita a Ariccia (Roma)
  • Quadrilocale
  • 360 mq
  • 1 bagno
VENDITA 20
€ 190.000
Appartamento in Vendita a Rocca di Papa (Roma)
  • Quadrilocale
  • 95 mq
  • 2 bagni
VENDITA 20
€ 180.000
Appartamento in Vendita a Rocca di Papa (Roma)
  • Più di 5 locali
  • 50 mq
  • 2 bagni