Appartamento zona Bologna Ottimo Investimento VENDITA

Piazza Bologna - Roma, Zona Bologna
€ 550.000
  • Quadrilocale
  • 115 mq
  • 3 bagni

Appartamento in Vendita a Roma

Rivolta Vende - Sei alla ricerca di un investimento redditizio nel cuore della zona universitaria?
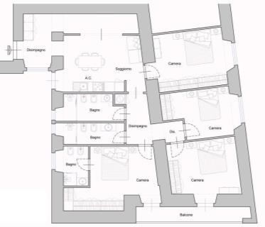
Proponiamo in vendita un appartamento di 5,5 vani catastali (114 mq catastali) situato al piano terra, strategicamente posizionato nelle immediate vicinanze di Piazza Bologna.
Questo immobile offre una flessibilità unica: puoi scegliere di utilizzarlo come 3 unità immobiliari separate, ideali per studenti, con 2 bilocali e un monolocale, tutti dotati di servizi . In alternativa, puoi trasformarlo in un accogliente spazio residenziale con soggiorno, cucina, due camere, studio e tre bagni.
Completa la proprietà una cantina .
Ma non è tutto: questa proprietà rappresenta anche una valida opportunità per chi cerca un immobile da adibire a studio professionale, grazie alla sua posizione centrale e facilmente accessibile.
Non lasciarti sfuggire questa interessante occasione per massimizzare il tuo investimento! Contattaci per maggiori informazioni e per organizzare una visita.
Piazza Bologna / ottimo investimento / adiacente metropolitana / adiacente stazione tiburtina/ università La Sapienza e Luiss nelle adiacenze / posizione centrale ed ottimamente servita da tutto.
---
Informazioni, testi, immagini, misure e planimetrie sono meramente indicativi e non costituiscono elementi contrattuali.
---
Per maggiori informazioni contattare Rivolta Immobiliare Viale Carso 11- 15/A - 06.3701263 - segreteria@immobiliarerivolta.com - WWW.IMMOBILIARERIVOLTA.COM
---
Sei un Agente Immobiliare o vuoi diventarlo ? Invia il tuo CV a: risorse@immobiliarerivolta.com ed entra a far parte della nostra Famiglia!

LEGGI TUTTO

CONDIVIDI SUI SOCIAL

DATI PRINCIPALI

Riferimento
623959
Contratto
Vendita
Tipologia
Appartamento
Superficie
115 mq
Locali
4
Camere da letto
3
Cucina
A vista
Bagni
3
Piano
Piano terra
Totale piani
5

CARATTERISTICHE

Ascensore

COSTI

Prezzo
€ 550.000,00
Spese condominiali
€ 90,00 / mese

EFFICIENZA ENERGETICA

Stato
Abitabile
Anno costruzione
1950
Riscaldamento
Centralizzato
Climatizzazione
Si

MAPPA

ANNUNCI SIMILI

VENDITA 20
Trattativa Riservata
Appartamento in Vendita a Roma, Zona Bologna
  • Più di 5 locali
  • 260 mq
  • 2 bagni
VENDITA 20
€ 795.000
Appartamento in Vendita a Roma, Zona Bologna
  • Più di 5 locali
  • 135 mq
  • 2 bagni
VENDITA 20
€ 519.000
Appartamento in Vendita a Roma, Zona Bologna
  • Quadrilocale
  • 99 mq
  • 2 bagni
VENDITA 20
€ 819.000
Appartamento in Vendita a Roma, Zona Bologna
  • Più di 5 locali
  • 200 mq
  • 2 bagni
VENDITA 20
€ 890.000
Appartamento in Vendita a Roma, Zona Bologna
  • Quadrilocale
  • 138 mq
  • 2 bagni
VENDITA 15
Trattativa Riservata
Appartamento in Vendita a Roma, Zona Bologna
  • Più di 5 locali
  • 172 mq
  • 2 bagni