Appartamento Villa Bonelli Via Enrico Mizzi VENDITA

Via Enrico Mizzi - Roma (Roma)
€ 595.000
  • Quadrilocale
  • 175 mq
  • 2 bagni

Appartamento in Vendita a Roma

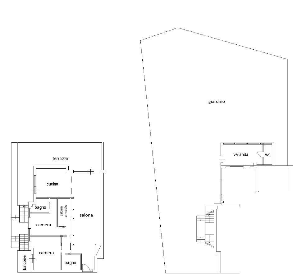
Appartamento con Giardino e Dependance Via Enrico Mizzi, Villa Bonelli

Roma Zona Villa Bonelli

In una delle vie più residenziali e tranquille del quartiere Villa Bonelli, proponiamo in vendita un elegante appartamento posto al piano terra di una palazzina in cortina degli anni '70, in contesto riservato e curato.

L'immobile è finemente ristrutturato con materiali di pregio e pronto per essere abitato, gode di eccellente luminosità grazie alla doppia esposizione est/sud e presenta due accessi indipendenti: uno dall'androne condominiale e uno direttamente dalla strada principale.

Composizione interna:

Ingresso
Salone doppio
Due camere da letto
Cucina abitabile
Due bagni
Disimpegno
Terrazzo a livello
Giardino perimetrale privato sopraelevato rispetto alla strada, con dependance indipendente

Dependance: Ideale come studio privato, alloggio per ospiti o soluzione indipendente per familiari.

Completa la proprietà un box auto doppio collegato internamente al condominio.

Dotazioni e finiture:

Climatizzazione canalizzata Daikin con controllo stanza per stanza
Riscaldamento a pavimento
Predisposizione per pannelli solari
Cabina armadio in cristallo e seta
Pavimenti in parquet rovere
Infissi PVC/legno bianco con doppi vetri e zanzariere
Impianti elettrico e idraulico a norma
Porte scorrevoli a scrigno in legno preverniciato bianco
Blindatura porte d'ingresso
Impianto d'allarme e videosorveglianza, grate di sicurezza
Serrande elettriche e tende parasole sul terrazzo
Boiserie e armadiature su misura

Un immobile unico nel suo genere, perfetto per chi cerca comfort, eleganza, spazi esterni vivibili e funzionalità in una delle zone più servite e residenziali di Roma.

Contattaci per fissare un appuntamento e scoprire ogni dettaglio di questa straordinaria proprietà.

LEGGI TUTTO

CONDIVIDI SUI SOCIAL

DATI PRINCIPALI

Riferimento
638979
Contratto
Vendita
Tipologia
Appartamento
Superficie
175 mq
Locali
4
Camere da letto
2
Cucina
Abitabile
Bagni
2
Piano
1 °
Totale piani
4
Box/Posto auto
Doppio

CARATTERISTICHE

Ascensore

COSTI

Prezzo
€ 595.000,00
Spese condominiali
€ 120,00 / mese

EFFICIENZA ENERGETICA

Stato
Ristrutturato
Anno costruzione
1970
Riscaldamento
Autonomo
Climatizzazione
Si
Classe energetica
G
IPE
180,00 kWh/m²a

A+

A

B

C

D

E

F

180,00 kWh/m²a | Classe energetica G

G

MAPPA

ANNUNCI SIMILI

VENDITA 19
€ 470.000
Appartamento in Vendita a Roma (Roma)
  • Quadrilocale
  • 130 mq
  • 2 bagni
VENDITA 20
€ 470.000
Appartamento in Vendita a Roma (Roma)
  • Quadrilocale
  • 130 mq
  • 2 bagni
VENDITA 12
€ 695.000
Appartamento in Vendita a Roma (Roma)
  • Più di 5 locali
  • 205 mq
  • 2 bagni
VENDITA 20
€ 590.000
Appartamento in Vendita a Roma (Roma)
  • Quadrilocale
  • 153 mq
  • 2 bagni
VENDITA 20
€ 680.000
Appartamento in Vendita a Roma (Roma)
  • Più di 5 locali
  • 215 mq
  • 3 bagni
VENDITA 20
€ 625.000
Appartamento in Vendita a Roma (Roma)
  • Quadrilocale
  • 134 mq
  • 2 bagni
VENDITA 20
€ 690.000
Appartamento in Vendita a Roma (Roma)
  • Quadrilocale
  • 180 mq
  • 2 bagni
VENDITA 20
€ 419.000
Appartamento in Vendita a Roma (Roma)
  • Quadrilocale
  • 117 mq
  • 2 bagni
VENDITA 15
€ 420.000
Appartamento in Vendita a Roma (Roma)
  • Quadrilocale
  • 163 mq
  • 2 bagni
VENDITA 20
€ 495.000
Appartamento in Vendita a Roma (Roma)
  • Più di 5 locali
  • 129 mq
  • 2 bagni