Appartamento Via Tuscolana Metro Numidio Quadrato VENDITA

Via Tuscolana 966 - Roma (Roma)
€ 225.000
  • Bilocale
  • 66 mq
  • 1 bagno

Appartamento in Vendita a Roma

ZONA QUADRARO – BILOCALE IN VENDITA
Visita l’immobile comodamente da casa grazie al Virtual Tour.

In contesto tranquillo e riservato, proponiamo in vendita un bilocale accogliente posto al primo piano con ascensore di un condominio
L’appartamento è situato in Via Tuscolana, nel cuore del quartiere Quadraro, a pochi metri dalla fermata Metro A Numidio Quadrato e vicino a tutti i principali servizi: mezzi pubblici, scuole, supermercati, negozi e attività commerciali.
L’affaccio interno garantisce silenzio e privacy, mentre la distanza dagli edifici circostanti assicura ottima luminosità e aerazione naturale durante l’intera giornata.
L’immobile si presenta in ottimo stato di manutenzione, pronto per essere abitato. Grazie alla posizione strategica e ai collegamenti eccellenti, rappresenta anche una soluzione ideale ad uso investimento.
Ulteriore punto di forza è la presenza di un’antenna condominiale sul tetto, che genera introiti annuali contribuendo a mantenere spese condominiali contenute.
Sono già stati deliberati i lavori di rifacimento della facciata, interamente a carico della parte venditrice.
Il riscaldamento è centralizzato con contabilizzatori.
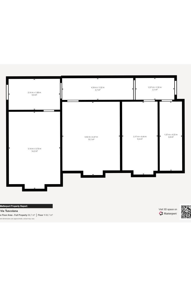
Composizione interna:
Ingresso
Ampio soggiorno luminoso
Cucina abitabile
Camera matrimoniale
Ripostiglio
Bagno finestrato
La disposizione regolare degli spazi consente eventuali modifiche interne per personalizzare l’abitazione secondo le proprie esigenze.
Una soluzione ideale per chi cerca una casa luminosa, silenziosa e perfettamente collegata, in una delle zone più richieste di Roma.

Classe energetica: G
Prezzo richiesto: € 225.000,00
Contattaci oggi stesso per fissare una visita o ricevere maggiori informazioni
Telefono: 06 93562280
Email: roma.appioclaudio@sceglicasa.eu

LEGGI TUTTO

CONDIVIDI SUI SOCIAL

DATI PRINCIPALI

Riferimento
629828
Contratto
Vendita
Tipologia
Appartamento
Superficie
66 mq
Locali
2
Camere da letto
1
Cucina
Abitabile
Bagni
1
Piano
1 °
Totale piani
6

CARATTERISTICHE

Ascensore

COSTI

Prezzo
€ 225.000,00
Spese condominiali
€ 50,00 / mese

EFFICIENZA ENERGETICA

Stato
Abitabile
Anno costruzione
1966
Riscaldamento
Centralizzato
Climatizzazione
Si
Classe energetica
G
IPE
312,70 kWh/m²a

A+

A

B

C

D

E

F

312,70 kWh/m²a | Classe energetica G

G

MAPPA

ANNUNCI SIMILI

VENDITA 12
Trattativa Riservata
Appartamento in Vendita a Roma (Roma)
  • Trilocale
  • 76 mq
  • 1 bagno
VENDITA 20
€ 155.000
Appartamento in Vendita a Roma (Roma)
  • Bilocale
  • 35 mq
  • 1 bagno
VENDITA 20
€ 184.900
Appartamento in Vendita a Roma (Roma)
  • Quadrilocale
  • 90 mq
  • 1 bagno
VENDITA 20
€ 269.000
Appartamento in Vendita a Roma (Roma)
  • Trilocale
  • 90 mq
  • 1 bagno