Appartamento trilocale ristrutturato Valle Muricana Labaro VENDITA

Via Pianello del Lario - Roma, Zona Valle Muricana
€ 255.000
  • Trilocale
  • 95 mq
  • 2 bagni

Appartamento in Vendita a Roma

NUOVE COSTRUZIONI VALLE MURICANA

FRIMM è lieta di proporre in vendita, in Via Pianello del Lario - Valle Muricana il progetto nel COMPLESSO RESIDENZIALE "PIANELLO DEL LARIO" CON LA NUOVA PALAZZINA B

Scoprite una palazzina composta da 24 appartamenti bilivelli, tutti caratterizzati da finiture di altissimo livello e cura in ogni particolare costruttivo.

Tipologie e Tagli: Varie soluzioni per ogni necessità, con tagli interni a partire da 95 mq (trilocali), tutti completati da generosi spazi esterni privati.

Consegna Prevista: Luglio 2026.

Non solo un appartamento, ma un investimento in qualità e benessere. Prenotate ora il vostro futuro esclusivo.

Tipologie di appartamenti:
- bilivelli PTcon giardino o due posti auto QUADRILOCALI
- bilivelli P1 con terrazzi TRILOCALI

Impianto di riscaldamento a pavimento con pompa di calore
Impianto fotovoltaico individuale da 4,5 kWp con inverter ibrido.
Impianto di produzione dell'acqua calda sanitaria con pompa di calore dedicata
Infissi con vetrocamera basso emissivo, grate o persiane di sicurezza zincate e verniciate a fuoco.
Pavimentazione in gres porcellanato prima scelta cm 60x60
Predisposizione per stazione di ricarica auto elettriche nei parcheggi privati riservati

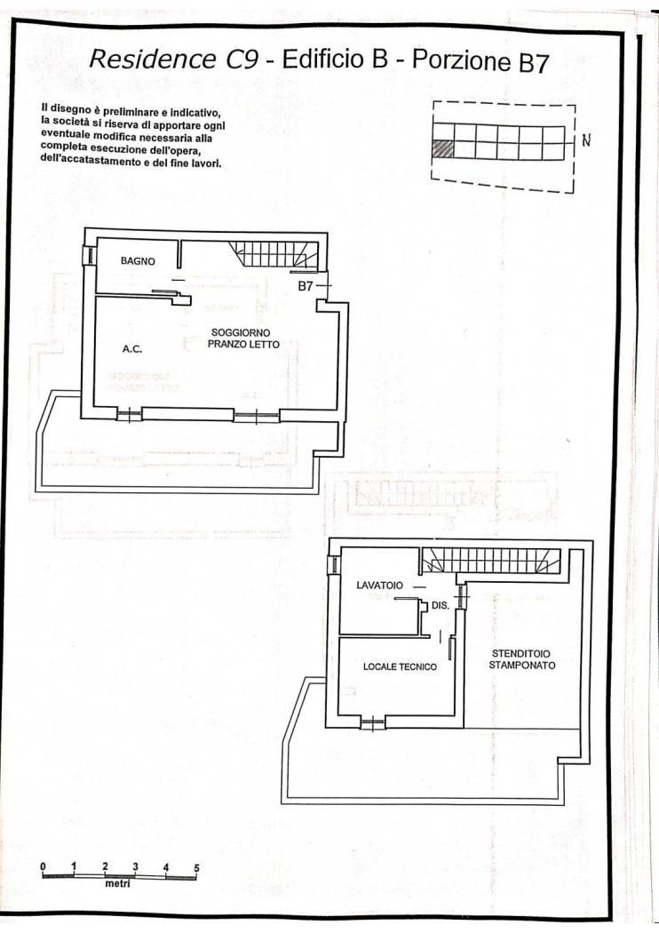
Disponiamo di varie metrature e tipologie nello stesso stabile; le immagini si riferiscono a una soluzione tipo e hanno valore puramente dimostrativo e non costituiscono elemento contrattuale.

Chiamaci per fissare un appuntamento nel nostro ufficio e scegliere l'immobile che fa per te al numero 3382144444 o 0645551066

LEGGI TUTTO

CONDIVIDI SUI SOCIAL

DATI PRINCIPALI

Riferimento
637698
Contratto
Vendita
Tipologia
Appartamento
Superficie
95 mq
Locali
3
Camere da letto
2
Cucina
A vista
Bagni
2
Piano
1 °
Totale piani
3
Box/Posto auto
Singolo

CARATTERISTICHE

Ascensore

COSTI

Prezzo
€ 255.000,00

EFFICIENZA ENERGETICA

Stato
Nuovo/In costruzione
Anno costruzione
2025
Riscaldamento
Autonomo
Climatizzazione
Predisposizione
Classe energetica
A4
IPE
351,00 kWh/m²a
351,00 kWh/m²a | Classe energetica A4

A4

A3

A2

A1

B

C

D

E

F

G

MAPPA

ANNUNCI SIMILI

VENDITA 20
€ 199.000
Appartamento in Vendita a Roma, Zona Valle Muricana
  • Trilocale
  • 90 mq
  • 1 bagno
VENDITA 20
€ 259.000
Appartamento in Vendita a Roma, Zona Valle Muricana
  • Quadrilocale
  • 115 mq
  • 2 bagni