APPARTAMENTO - SACROFANO VENDITA

Località Guadotufo - Sacrofano (Roma)
€ 148.000
  • Trilocale
  • 76 mq
  • 1 bagno

Appartamento in Vendita a Sacrofano

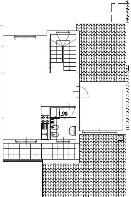
Proponiamo in vendita, un appartamento in un complesso di nuova costruzione, sito nella zona di Guado Tufo, ( una zona residenziale adiacente Montecaminetto, a 3 km dal centro di Sacrofano e 2 km dalla Ss3 Flaminia). L'immobile si trova al piano primo con accesso indipendente dal piano terra, dove abbiamo anche un posto auto privato. L'immobile è un trilocale così disposto: ingresso dal piano terra con scala, disimpegno, soggiorno con angolo cottura e balcone, ampio bagno, camera da letto e cameretta. Essendo in una fase di finitura, esiste la possibilità di rinunciare alla cameretta per ampliare la zona giorno. L'immobile di nuova costruzione viene consegnato chiavi in mano, con la possibilità di diverse scelte per i materiali di finitura. Portone blindato, infissi in doppio vetro/legno. LUMINOSA. POSSIBILITA' ACQUISTO CON SOLUZIONE RENT TO BUY (AFFITTO CON RISCATTO). La nostra agenzia nasce dall'esperienza dell'omonimo studio tecnico operativo da oltre 35 anni nella zona. Esiste cosi la possibilità di offrire oltre il servizio di mediazione una consulenza tecnico - burocratica capace di assistere il cliente dalla compravendita fino ad un eventuale ristrutturazione.

LEGGI TUTTO

CONDIVIDI SUI SOCIAL

DATI PRINCIPALI

Riferimento
639344
Contratto
Vendita
Tipologia
Appartamento
Superficie
76 mq
Locali
3
Camere da letto
2
Cucina
Cucinotto
Bagni
1
Piano
1 °
Totale piani
3
Box/Posto auto
Singolo

CARATTERISTICHE

Ascensore

COSTI

Prezzo
€ 148.000,00

EFFICIENZA ENERGETICA

Stato
Nuovo/In costruzione
Anno costruzione
2013
Riscaldamento
Autonomo
Climatizzazione
Predisposizione
Classe energetica
B
IPE
175,00 kWh/m²a

A+

A

175,00 kWh/m²a | Classe energetica B

B

C

D

E

F

G

MAPPA

ANNUNCI SIMILI

VENDITA 20
€ 69.000
Appartamento in Vendita a Sacrofano (Roma)
  • Trilocale
  • 60 mq
  • 1 bagno
VENDITA 20
€ 168.000
Appartamento in Vendita a Sacrofano (Roma)
  • Trilocale
  • 110 mq
  • 2 bagni
VENDITA 20
€ 110.000
Appartamento in Vendita a Riano (Roma)
  • Trilocale
  • 113 mq
  • 1 bagno
VENDITA 20
€ 149.000
Appartamento in Vendita a Riano (Roma)
  • Quadrilocale
  • 130 mq
  • 1 bagno
VENDITA 20
€ 195.000
Appartamento in Vendita a Riano (Roma)
  • Trilocale
  • 129 mq
  • 2 bagni
VENDITA 19
€ 159.000
Appartamento in Vendita a Formello (Roma)
  • Quadrilocale
  • 100 mq
  • 2 bagni
VENDITA 11
€ 157.360
Appartamento in Vendita a Riano (Roma)
  • Più di 5 locali
  • 408 mq
  • 3 bagni
VENDITA 14
€ 119.000
Appartamento in Vendita a Riano (Roma)
  • Trilocale
  • 75 mq
  • 1 bagno