Appartamento VENDITA

Via Pio Foà - Roma (Roma)
€ 565.000
  • Più di 5 locali
  • 150 mq
  • 2 bagni

Appartamento in Vendita a Roma

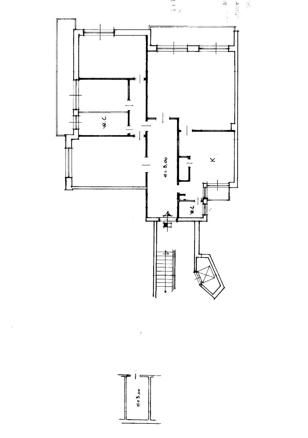
Ampio appartamento adiacente Villa Doria Pamphili – 150 mq con balconi e cantina.
In una delle aree più esclusive e ricercate di Roma, a pochi passi dall’ingresso di Villa Doria Pamphili, proponiamo in vendita un luminoso appartamento di ampia metratura, perfetto per famiglie o per chi cerca spazi generosi in un contesto tranquillo.
L’immobile è situato al primo piano di una palazzina signorile in cortina di cinque piani con servizio di portineria, servita da ascensore e si sviluppa su una superficie interna di circa 150 mq.
La disposizione degli ambienti è ben organizzata e funzionale: ampio ingresso, salone doppio, due camere matrimoniali, cameretta, doppi servizi finestrati, anticucina con colonna attrezzata dotata di ripiani, cucina abitabile con ripostiglio.
Valorizzato dalla doppia esposizione Sud-Est, che garantisce un’ottima luminosità durante tutto l’arco della giornata. L'appartamento dispone inoltre di due balconi, ideali per momenti di relax all’aperto, e di una cantina privata, perfetta come spazio di servizio o deposito.
L’appartamento si affaccia da un lato su Via Pio Foà e dall’altro su Via Raffaele Paolucci.
La posizione è strategica: Una soluzione ideale per chi desidera vivere in un ambiente residenziale a breve distanza da tutti i principali servizi, scuole, mezzi pubblici e attività commerciali senza rinunciare alla prossimità dell’ampia area verde di Villa Doria Pamphili.

**Alcune foto di questo annuncio sono dei render e le dimensioni non corrispondono esattamente a quelle reali, in particolare il salone, l'ingresso, la cucina e il bagno.**

Spacious Apartment Near Villa Doria Pamphili – 150 sqm with Balconies and Cellar
In one of Rome’s most exclusive and sought-after neighborhoods, just steps away from the entrance to Villa Doria Pamphili, we offer for sale a bright and spacious apartment, ideal for families or anyone seeking generous interiors in a quiet, residential setting.
The property is located on the raised first floor of a five-story elegant brick façade building with concierge service and an elevator, and boasts an internal surface area of approximately 150 sqm.
The layout is well-organized and functional, featuring a large entrance hall, double living room, two master bedrooms, one single bedroom, two windowed bathrooms, and a separate eat-in kitchen.
Enhanced by its dual South-East exposure, the apartment enjoys excellent natural light throughout the day. It also includes two comfortable balconies, perfect for relaxing outdoors, and a private cellar, ideal for storage or additional utility space.
The apartment overlooks both Via Pio Foà and Via Raffaele Paolucci, offering open views and good privacy.
The location is strategic: a perfect solution for those wishing to live in a peaceful residential area while being within easy reach of all essential services, schools, public transport, and local shops — without giving up the proximity to the vast green spaces of Villa Doria Pamphili, one of Rome’s most beautiful parks.

LEGGI TUTTO

CONDIVIDI SUI SOCIAL

DATI PRINCIPALI

Riferimento
630171
Contratto
Vendita
Tipologia
Appartamento
Superficie
150 mq
Locali
5
Camere da letto
3
Cucina
Abitabile
Bagni
2
Piano
1 °
Totale piani
5

CARATTERISTICHE

Ascensore

COSTI

Prezzo
€ 565.000,00

EFFICIENZA ENERGETICA

Stato
Da ristrutturare
Anno costruzione
1965
Riscaldamento
Centralizzato
Classe energetica
G
IPE
175,00 kWh/m²a

A+

A

B

C

D

E

F

175,00 kWh/m²a | Classe energetica G

G

MAPPA

ANNUNCI SIMILI

VENDITA 20
€ 525.000
Appartamento in Vendita a Roma (Roma)
  • Più di 5 locali
  • 145 mq
  • 2 bagni
VENDITA 20
€ 559.000
Appartamento in Vendita a Roma (Roma)
  • Più di 5 locali
  • 184 mq
  • 2 bagni
VENDITA 18
€ 665.000
Appartamento in Vendita a Roma (Roma)
  • Più di 5 locali
  • 185 mq
  • 2 bagni
VENDITA 20
€ 599.000
Appartamento in Vendita a Roma (Roma)
  • Più di 5 locali
  • 150 mq
  • 2 bagni
VENDITA 19
€ 350.000
Appartamento in Vendita a Roma (Roma)
  • Più di 5 locali
  • 90 mq
  • 1 bagno
VENDITA 20
€ 480.000
Appartamento in Vendita a Roma (Roma)
  • Più di 5 locali
  • 125 mq
  • 2 bagni
VENDITA 20
€ 585.000
Appartamento in Vendita a Roma (Roma)
  • Più di 5 locali
  • 180 mq
  • 2 bagni
VENDITA 20
€ 650.000
Appartamento in Vendita a Roma (Roma)
  • Più di 5 locali
  • 160 mq
  • 2 bagni
VENDITA 20
€ 479.000
Appartamento in Vendita a Roma (Roma)
  • Più di 5 locali
  • 160 mq
  • 2 bagni