Appartamento ottime condizioni di fronte alla metro C Teano VENDITA

Via Cairano - Roma (Roma)
€ 320.000
  • Trilocale
  • 100 mq
  • 2 bagni

Appartamento in Vendita a Roma

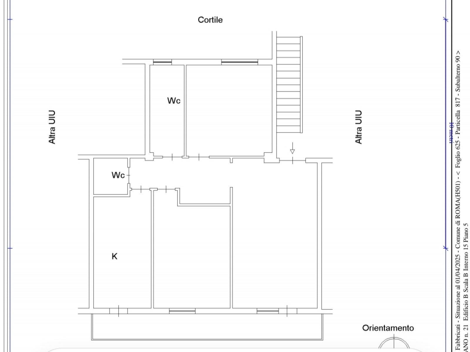
In una posizione estremamente comoda e strategica, proponiamo in vendita un appartamento di 100 mq, posto al 5° piano di un edificio di 8 livelli dotato di ascensore e in ottimo stato manutentivo.

L’immobile si presenta in condizioni eccellenti e offre una distribuzione degli spazi ampia e funzionale. L’ingresso si apre su un luminoso salone, ben proporzionato e facilmente arredabile. La zona notte comprende due camere da letto, entrambe confortevoli e silenziose, servite da un disimpegno che ottimizza la fruibilità degli ambienti.

La cucina abitabile rappresenta un ulteriore punto di forza, ideale per la quotidianità familiare. Completano la proprietà due bagni e un balcone, che dona uno sfogo esterno piacevole e vivibile.

L’appartamento è stato arricchito da diversi interventi migliorativi:

infissi in PVC effetto legno di recente installazione

due condizionatori nuovi

armadi a muro su misura

porta blindata

Posizione impareggiabile
L’immobile è ubicato esattamente di fronte alla fermata Metro C “Teano”, una caratteristica che lo rende ideale per chi desidera spostarsi con facilità verso il centro città e le principali direttrici urbane. La zona è inoltre servita da negozi, servizi, scuole e aree verdi, garantendo un contesto completo e altamente funzionale.

Una soluzione perfetta per famiglie, professionisti o per chi cerca un immobile già pronto da vivere, in una delle aree meglio collegate del quartiere.

LEGGI TUTTO

CONDIVIDI SUI SOCIAL

DATI PRINCIPALI

Riferimento
634339
Contratto
Vendita
Tipologia
Appartamento
Superficie
100 mq
Locali
3
Camere da letto
2
Cucina
Abitabile
Bagni
2
Piano
5 °
Totale piani
8

CARATTERISTICHE

Ascensore

COSTI

Prezzo
€ 320.000,00
Spese condominiali
€ 66,00 / mese

EFFICIENZA ENERGETICA

Stato
Ristrutturato
Anno costruzione
1960
Riscaldamento
Centralizzato
Climatizzazione
Si
Classe energetica
E
IPE
351,00 kWh/m²a

A+

A

B

C

D

351,00 kWh/m²a | Classe energetica E

E

F

G

MAPPA

ANNUNCI SIMILI

VENDITA 20
€ 355.000
Appartamento in Vendita a Roma (Roma)
  • Trilocale
  • 120 mq
  • 1 bagno
VENDITA 20
€ 350.000
Appartamento in Vendita a Roma (Roma)
  • Trilocale
  • 106 mq
  • 2 bagni
VENDITA 16
€ 269.000
Appartamento in Vendita a Roma (Roma)
  • Trilocale
  • 110 mq
  • 1 bagno
VENDITA 20
€ 255.000
Appartamento in Vendita a Roma (Roma)
  • Trilocale
  • 94 mq
  • 1 bagno
VENDITA 20
€ 255.000
Appartamento in Vendita a Roma (Roma)
  • Quadrilocale
  • 110 mq
  • 1 bagno
VENDITA 20
€ 265.000
Appartamento in Vendita a Roma (Roma)
  • Trilocale
  • 93 mq
  • 1 bagno
VENDITA 20
€ 319.000
Appartamento in Vendita a Roma (Roma)
  • Trilocale
  • 106 mq
  • 2 bagni