Appartamento in Vendita Santa Marinella VENDITA

Via Monte Rosa 19 - Santa Marinella (Roma)
€ 139.000
  • Trilocale
  • 78 mq
  • 1 bagno

Appartamento in Vendita a Santa Marinella

Nel cuore della zona meridionale di Santa Marinella, a pochi passi dal Lungomare Guglielmo Marconi e dall’area di Capo Linaro, proponiamo in vendita un appartamento situato in Via Monte Rosa, in posizione strategica:
500 metri dal mare, facilmente raggiungibile a piedi in pochi minuti,
ma allo stesso tempo inserito in un contesto tranquillo e residenziale

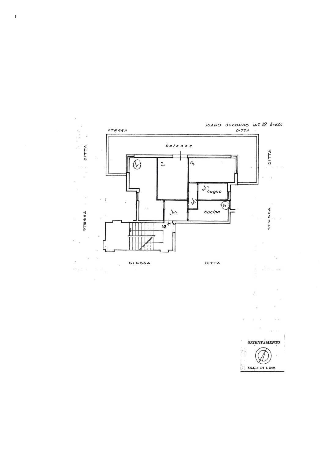
L’immobile
Posto al secondo piano di una palazzina in cortina, attualmente oggetto di completa ristrutturazione esterna (facciate e cornicioni), l’appartamento si sviluppa con una distribuzione classica e funzionale:
•Ingresso
•Cucina separata
•Ampio salone
•Due camere da letto
•Bagno
•Balcone abitabile perimetrale, ideale per pranzi all’aperto e momenti di relax

Stato interno
L’immobile si presenta da ristrutturare, offrendo la possibilità di personalizzare completamente spazi, finiture e impianti secondo le proprie esigenze

Perché è un’ottima opportunità?
✔ Vicinanza immediata al mare
✔ Contesto residenziale e riservato
✔ Stabile in fase di riqualificazione
✔ Ampia metratura e spazi esterni vivibili
Perfetto sia come residenza principale per chi desidera vivere tutto l’anno vicino al mare, sia come seconda casa per trascorrere weekend e vacanze in una delle località più apprezzate del litorale laziale
Spese Condominiali € 169,00 trimestrali.

LEGGI TUTTO

CONDIVIDI SUI SOCIAL

DATI PRINCIPALI

Riferimento
633254
Contratto
Vendita
Tipologia
Appartamento
Superficie
78 mq
Locali
3
Camere da letto
2
Cucina
Abitabile
Bagni
1
Piano
2 °
Totale piani
3

CARATTERISTICHE

Ascensore

COSTI

Prezzo
€ 139.000,00
Spese condominiali
€ 55,00 / mese

EFFICIENZA ENERGETICA

Stato
Da ristrutturare
Anno costruzione
1975
Classe energetica
G
IPE
175,00 kWh/m²a

A+

A

B

C

D

E

F

175,00 kWh/m²a | Classe energetica G

G

MAPPA

ANNUNCI SIMILI

VENDITA 20
€ 250.000
Appartamento in Vendita a Santa Marinella (Roma)
  • Trilocale
  • 76 mq
  • 2 bagni