APPARTAMENTO IN VENDITA - OTTAVIA VENDITA

Via di Casal del Marmo - Roma, Zona Ottavia
€ 319.000
  • Trilocale
  • 120 mq
  • 2 bagni

Appartamento in Vendita a Roma

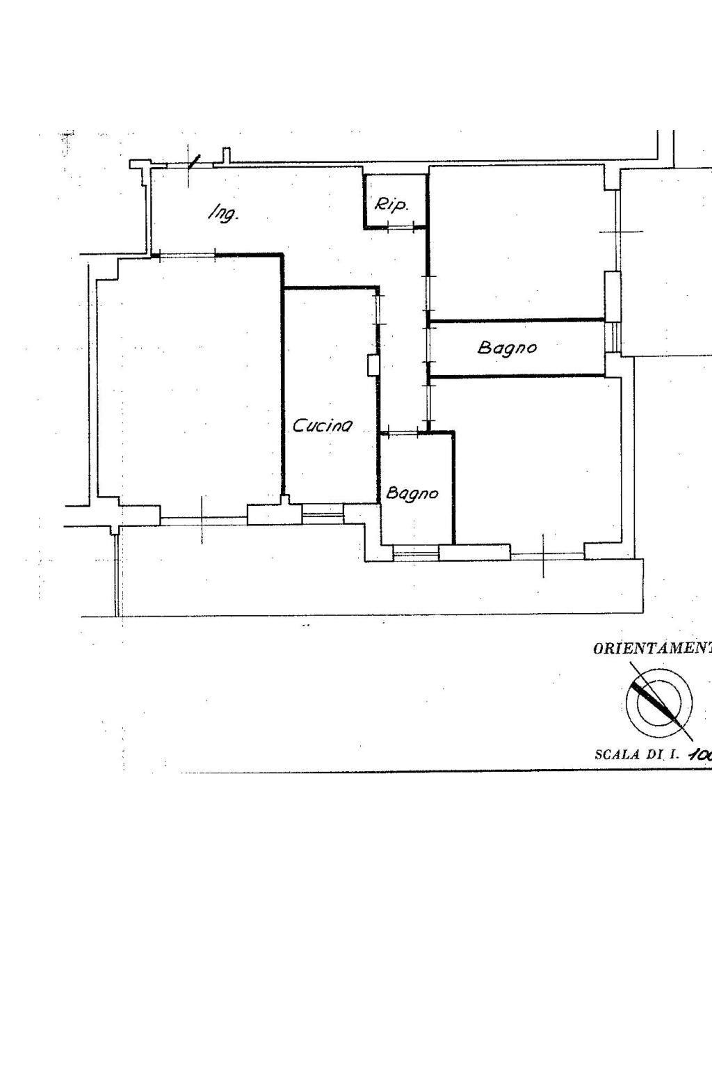
Nelle immediate vicinanze della stazione FM3 Ottavia, all'interno di un comprensorio con ampio giardino condominiale, proponiamo la vendita di un immobile posto al secondo piano con ascensore. L'appartamento è composto da ampio ingresso, salone, due camere matrimoniali, cucina abitabile, doppi servizi,ampio ripostiglio, balcone e terrazzo di 25 mq c. a. Completa la proprietà una soffitta. L'immobile si presenta in buone condizioni con servizi da ristrutturare ed è dotato di impianto di riscaldamento autonomo. Il prezzo richiesto è di € 319.000, 00. rif. (3/302) tel. 06/37501016. La nostra agenzia opera da più di trent'anni nel mercato immobiliare e garantisce un ventaglio di servizi a tutto tondo in modo attento e competente. Da sempre curiamo l'immobile a 360°, nello specifico: - valutiamo gratuitamente l'immobile al reale valore di mercato; - conduciamo regolarmente analisi e ricerche di mercato per essere sempre aggiornati; - lavoriamo su incarichi di vendita chiari e trasparenti, con il prezzo di vendita concordato ed ogni dettaglio ben evidenziato; - ci occupiamo delle campagne pubblicitarie in modo mirato; - offriamo assistenza tecnica, fiscale, legale e notarile; - vendiamo immobili subordinati all'acquisto della nuova casa; - collaboriamo con i migliori professionisti nel settore di mutui e finanziamenti personalizzati. E' la passione per il nostro lavoro che ci fa muovere nelle giuste direzioni finalizzate a trovare sempre la migliore soluzione immobiliare per la nostra clientela. E la serietà e la professionalità acquisita nell’esperienza ventennale fanno da cornice garantendo riparo da ogni rischio ed in completa trasparenza. Per maggiori informazioni e appuntamenti potete contattare Enne Immobiliare al numero 06.37501016 oppure visitate il nostro sito

LEGGI TUTTO

CONDIVIDI SUI SOCIAL

DATI PRINCIPALI

Riferimento
629940
Contratto
Vendita
Tipologia
Appartamento
Superficie
120 mq
Locali
3
Camere da letto
2
Cucina
Abitabile
Bagni
2
Piano
2 °
Totale piani
6

CARATTERISTICHE

Ascensore

COSTI

Prezzo
€ 319.000,00
Spese condominiali
€ 65,00 / mese

EFFICIENZA ENERGETICA

Stato
Da ristrutturare
Anno costruzione
1970
Riscaldamento
Autonomo
Classe energetica
G
IPE
175,00 kWh/m²a

A+

A

B

C

D

E

F

175,00 kWh/m²a | Classe energetica G

G

MAPPA

ANNUNCI SIMILI

VENDITA 20
€ 138.750
Appartamento in Vendita a Roma, Zona Ottavia
  • Più di 5 locali
  • 107 mq
  • 2 bagni
VENDITA 20
€ 189.000
Appartamento in Vendita a Roma, Zona Ottavia
  • Trilocale
  • 80 mq
  • 1 bagno
VENDITA 20
€ 520.000
Appartamento in Vendita a Roma, Zona Ottavia
  • Quadrilocale
  • 128 mq
  • 2 bagni