Appartamento in vendita a Roma VENDITA

Via della Casetta Mattei - Roma (Roma)
€ 310.000
  • Quadrilocale
  • 116 mq
  • 1 bagno

Appartamento in Vendita a Roma

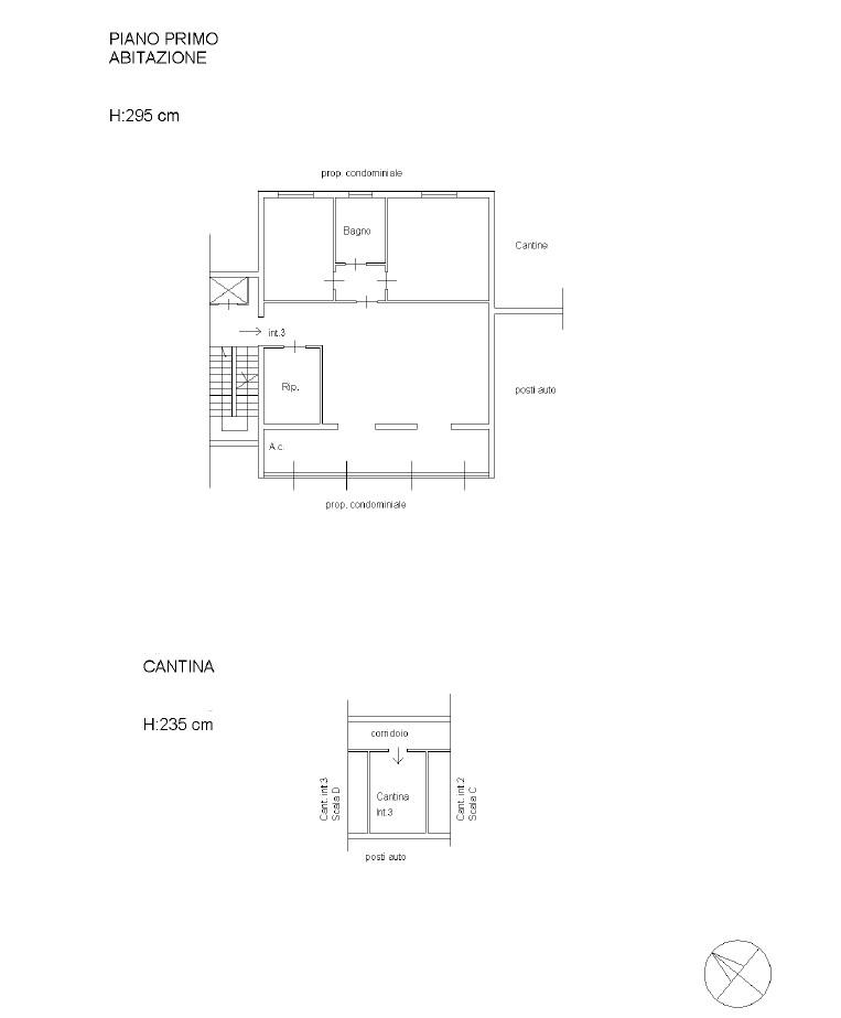
Nuova Crg immobiliare propone in vendita in zona Bravetta precisamente in Via Della Casetta Mattei, ampio appartamento quadrilocale di 116 mq. L'immobile è posto al primo piano di una palazzina dotata di ascensore. La proprietà è composta da salone doppio e cucina abitabile, tre camere e bagno finestrato dotato di doccia. Completano la soluzione cantina e posto auto coperto di circa 20 mq posto al piano terra, con possibilità di parcheggiare comodamente due auto di piccola dimensione in fila. L’accesso alla palazzina avviene tramite cancello elettrico e lo stabile dispone inoltre di ampio giardino condominiale ben curato con area dedicata ai bambini, ideale per famiglie. La soluzione rappresenta un’ottima opportunità per chi è alla ricerca di un appartamento funzionale, inserito in un contesto tranquillo e riservato. Zona comoda nei pressi dei principali servizi tra cui supermercati, posta, banche, scuole a pochi passi dal parco Forte Bravetta. L'appartamento si trova nelle vicinanze dei maggiori mezzi di trasporto con cui è possibile raggiungere in breve tempo anche la metropolitana di Cornelia. Per maggiori informazioni non esitare a contattarci allo 0693011093 - 0694522653 - segreteria@crgimmobiliare.com- ti aspettiamo in via G.Rossini 8/A Albano Laziale (Rm) dal Lun-Ven 9/13-15.30/19.30 Sabato 9/13.

LEGGI TUTTO

CONDIVIDI SUI SOCIAL

DATI PRINCIPALI

Riferimento
641806
Contratto
Vendita
Tipologia
Appartamento
Superficie
116 mq
Locali
4
Camere da letto
3
Cucina
Abitabile
Bagni
1
Piano
1 °
Totale piani
4
Box/Posto auto
Singolo

CARATTERISTICHE

Ascensore

COSTI

Prezzo
€ 310.000,00
Spese condominiali
€ 165,00 / mese

EFFICIENZA ENERGETICA

Stato
Abitabile
Riscaldamento
Autonomo
Climatizzazione
Si
Classe energetica
G
IPE
175,00 kWh/m²a

A+

A

B

C

D

E

F

175,00 kWh/m²a | Classe energetica G

G

MAPPA

ANNUNCI SIMILI

VENDITA 20
€ 349.000
Appartamento in Vendita a Roma (Roma)
  • Quadrilocale
  • 149 mq
  • 2 bagni
VENDITA 20
€ 329.000
Appartamento in Vendita a Roma (Roma)
  • Più di 5 locali
  • 95 mq
  • 2 bagni
VENDITA 15
€ 440.000
Appartamento in Vendita a Roma (Roma)
  • Più di 5 locali
  • 141 mq
  • 2 bagni
VENDITA 15
€ 440.000
Appartamento in Vendita a Roma (Roma)
  • Più di 5 locali
  • 141 mq
  • 2 bagni
VENDITA 20
€ 459.000
Appartamento in Vendita a Roma (Roma)
  • Quadrilocale
  • 133 mq
  • 2 bagni
VENDITA 20
€ 440.000
Appartamento in Vendita a Roma (Roma)
  • Quadrilocale
  • 141 mq
  • 2 bagni