Appartamento in vendita a Roma, Ostia Centro VENDITA

via della stazione del lido 28 - Roma (Roma)
€ 295.000
  • Più di 5 locali
  • 160 mq
  • 4 bagni

Appartamento in Vendita a Roma

Appartamento in vendita a Ostia Lido, situato nella zona centrale a due passi dalla stazione Lido Centro e precisamente in via della stazione del lido.

L'immobile è completamente ristrutturato e attualmente adibito ad uso di B&B ma può essere facilmente adibito anche come abitazione principale.

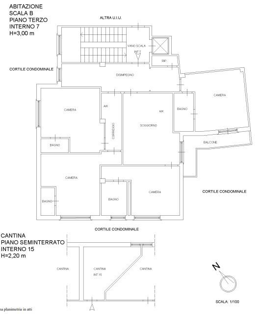
L'appartamento è ubicato al terzo piano di un edificio con ascensore e in ottimo stato, dotato di riscaldamento centralizzato.
L'immobile si estende su una superficie totale di circa 160 metri quadrati, di cui 150 utilizzabili come spazi abitativi.

L'appartamento è composto da un ampio ingresso con disimpegno, un salone con cucina a vista , quattro camere matrimoniali ognuna con il proprio servizio interno e un balcone ad angolo. Completa la proprietà un posto auto condominiale e una comoda cantina.

Lo stato di conservazione dell'appartamento è stato recentemente ristrutturato, garantendo così uno spazio moderno e confortevole.

Gli infissi e le finestre sono dotati di doppi vetri, per garantire una maggiore efficienza energetica e una migliore insonorizzazione. L'appartamento è completamente arredato e dispone di una cucina a vista, creando un ambiente conviviale e moderno.

Inoltre, è presente anche un balcone, ideale per godere di momenti di relax all'aperto.

Situato in una zona residenziale tranquilla e ben servita grazie alla sua vicinanza con la stazione, questo appartamento rappresenta un'ottima opportunità di acquisto per chi cerca un'abitazione spaziosa e confortevole ed anche di investimento ad alto reddito come attività di B&B o affittacamere.

Non esitare a contattarci per ulteriori informazioni e per organizzare una visita.

LEGGI TUTTO

CONDIVIDI SUI SOCIAL

DATI PRINCIPALI

Riferimento
625865
Contratto
Vendita
Tipologia
Appartamento
Superficie
160 mq
Locali
5
Camere da letto
4
Cucina
A vista
Bagni
4
Piano
3 °
Totale piani
5
Box/Posto auto
Singolo

CARATTERISTICHE

Ascensore

COSTI

Prezzo
€ 295.000,00
Spese condominiali
€ 100,00 / mese

EFFICIENZA ENERGETICA

Stato
Ristrutturato
Riscaldamento
Centralizzato
Climatizzazione
Si
Classe energetica
F
IPE
175,00 kWh/m²a

A+

A

B

C

D

E

175,00 kWh/m²a | Classe energetica F

F

G

MAPPA

ANNUNCI SIMILI

VENDITA 20
€ 460.000
Appartamento in Vendita a Roma (Roma)
  • Più di 5 locali
  • 151 mq
  • 2 bagni
VENDITA 20
€ 325.000
Appartamento in Vendita a Roma (Roma)
  • Più di 5 locali
  • 170 mq
  • 3 bagni
VENDITA 13
€ 305.000
Appartamento in Vendita a Roma (Roma)
  • Più di 5 locali
  • 150 mq
  • 2 bagni
VENDITA 20
€ 359.000
Appartamento in Vendita a Roma (Roma)
  • Più di 5 locali
  • 170 mq
  • 2 bagni
VENDITA 20
€ 359.000
Appartamento in Vendita a Roma (Roma)
  • Più di 5 locali
  • 170 mq
  • 2 bagni
VENDITA 20
€ 288.000
Appartamento in Vendita a Roma (Roma)
  • Più di 5 locali
  • 130 mq
  • 3 bagni
VENDITA 20
€ 319.000
Appartamento in Vendita a Roma (Roma)
  • Più di 5 locali
  • 135 mq
  • 2 bagni
VENDITA 20
€ 469.000
Appartamento in Vendita a Roma (Roma)
  • Più di 5 locali
  • 122 mq
  • 2 bagni