Appartamento in vendita a Roma, Centro Storico VENDITA

Via Dei Pianellari - Roma (Roma)
€ 900.000
  • Trilocale
  • 83 mq
  • 1 bagno

Appartamento in Vendita a Roma

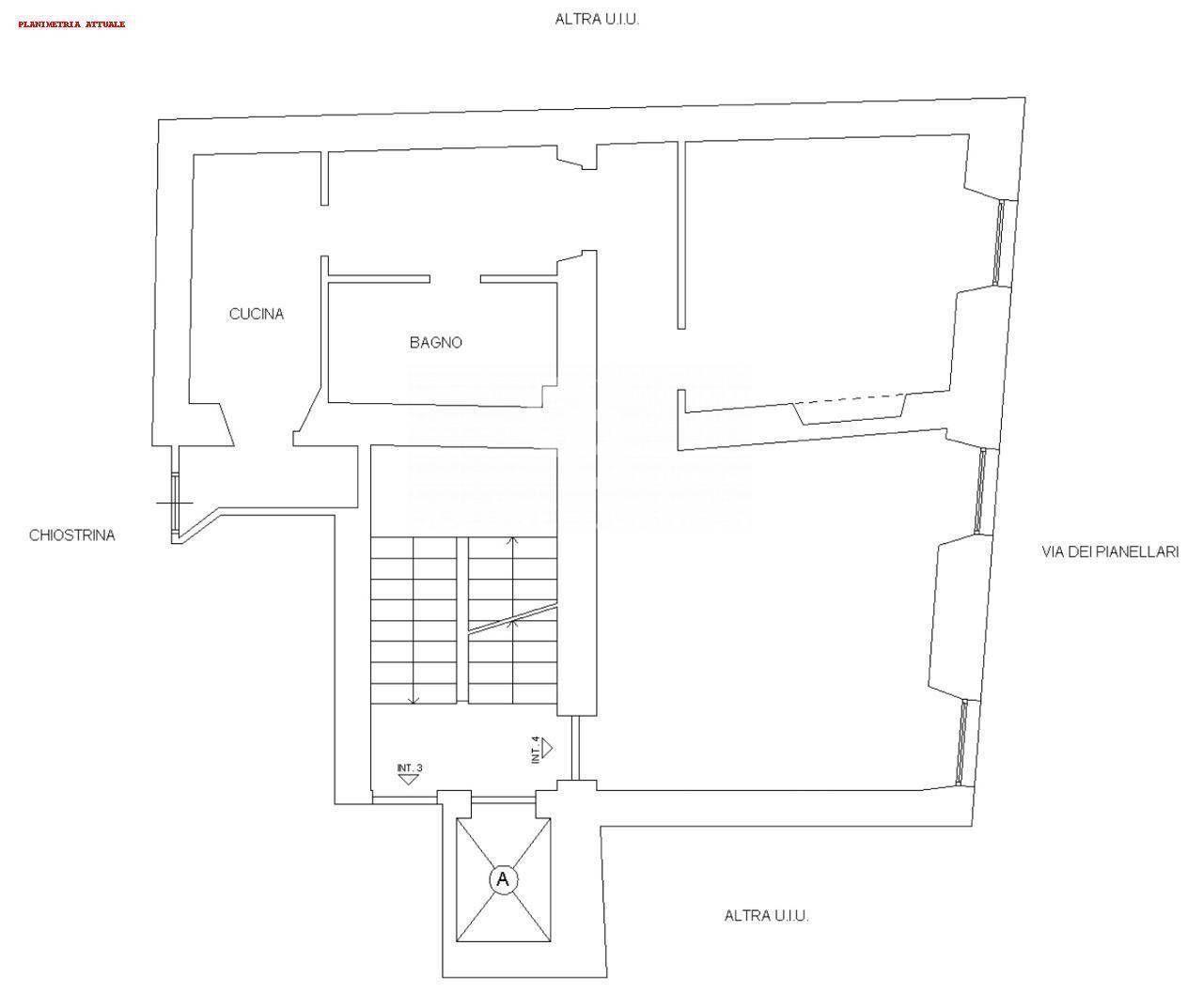
Nel cuore del centro storico di Roma, a due passi da Piazza Navona e precisamente in Via dei Pianellari, la Coldwell Banker ha il piacere di proporre in vendita un affascinante appartamento situato al secondo piano di 83 mq in un palazzo d'epoca. L'immobile, da ristrutturare, offre un grande potenziale grazie alla sua disposizione interna e alla possibilità di ricavare una seconda camera. L'appartamento è composto da un ampio soggiorno, una camera da letto, una cucina e un bagno. Gli alti soffitti e le caratteristiche tipiche degli edifici storici romani rendono questa proprietà unica, perfetta per chi desidera personalizzare la propria casa in una delle zone più prestigiose della Capitale. Ideale come investimento o abitazione principale, questa è un'occasione imperdibile per vivere la magia del centro storico romano!PER INFO E APPUNTAMENTI +39 06.83768248 +39 3403735599. L’agenzia Coldwell Banker Norscia Real Estate è specializzata nella gestione delle nuove iniziative immobiliari, oltre che nella vendita degli immobili residenziali, commerciali e industriali. Presente in oltre 44 paesi in tutto il MONDO con oltre 3.100 AGENZIE e 92.000 AGENTI la mission del gruppo COLDWELL BANKER è la cura del cliente con stile, trasparenza e serietà, grazie all’esperienza ed alla professionalità del proprio team. I nostri servizi: intermediazione, gestione interi stabili, valorizzazioni immobiliari, valutazioni e due diligence, promozione commerciale, frazionamenti e gestione di vendite in cantiere, assistenza alla permuta, assistenza alla stipula dell’atto notarile. Onestà, correttezza, dedizione e professionalità sono da sempre stati i valori che hanno guidato il nostro operato.

LEGGI TUTTO

CONDIVIDI SUI SOCIAL

DATI PRINCIPALI

Riferimento
631029
Contratto
Vendita
Tipologia
Appartamento
Superficie
83 mq
Locali
3
Camere da letto
1
Cucina
Abitabile
Bagni
1
Piano
2 °
Totale piani
5

CARATTERISTICHE

Ascensore

COSTI

Prezzo
€ 900.000,00

EFFICIENZA ENERGETICA

Stato
Da ristrutturare
Riscaldamento
Autonomo
Climatizzazione
Si
Classe energetica
G
IPE
351,00 kWh/m²a

A+

A

B

C

D

E

F

351,00 kWh/m²a | Classe energetica G

G

MAPPA

ANNUNCI SIMILI

VENDITA 15
€ 890.000
Appartamento in Vendita a Roma (Roma)
  • Quadrilocale
  • 115 mq
  • 1 bagno
VENDITA 20
€ 1.190.000
Appartamento in Vendita a Roma (Roma)
  • Quadrilocale
  • 145 mq
  • 2 bagni
VENDITA 20
€ 1.190.000
Appartamento in Vendita a Roma (Roma)
  • Quadrilocale
  • 145 mq
  • 2 bagni
VENDITA 15
€ 1.200.000
Appartamento in Vendita a Roma (Roma)
  • Più di 5 locali
  • 140 mq
  • 2 bagni
VENDITA 20
€ 990.000
Appartamento in Vendita a Roma (Roma)
  • Più di 5 locali
  • 100 mq
  • 2 bagni
VENDITA 20
€ 2.600.000
Appartamento in Vendita a Roma (Roma)
  • Più di 5 locali
  • 240 mq
  • 3 bagni