Appartamento in vendita a Monterotondo, Monterotondo Scalo VENDITA

Via Monti Sabini 60 - Monterotondo (Roma)
€ 105.000
  • Bilocale
  • 56 mq
  • 1 bagno

Appartamento in Vendita a Monterotondo

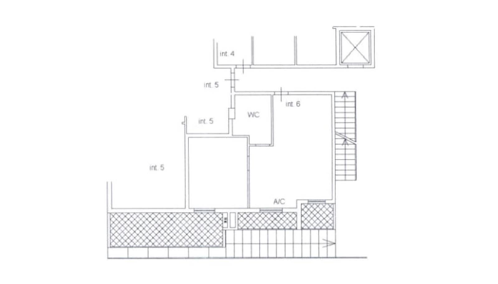
Monterotondo Scalo - Via Monti Sabini, proponiamo in vendita un ampio bilocale con terrazzo, due balconi e cantina.
L'appartamento si trova al piano rialzato di una piccola palazzina in cortina, ben tenuta e dotata di ascensore. L'ingresso si apre su una zona giorno ampia e luminosa, organizzata con un comodo angolo cottura e con accesso diretto agli spazi esterni. La zona notte comprende una camera matrimoniale di generose dimensioni e un bagno. A completare la vivibilità dell'abitazione troviamo due balconi e un terrazzo, ideali per chi desidera uno sfogo esterno da vivere in ogni stagione.
Al piano seminterrato della palazzina è presente una cantina privata.
L'immobile si presenta in ottimo stato manutentivo ed è dotato di comfort utili alla quotidianità, come tende da sole, grate di sicurezza e zanzariere. La palazzina è situata in una zona tranquilla e riservata, alla fine di una strada senza uscita a traffico esclusivamente locale. La posizione è particolarmente comoda anche per gli spostamenti, la stazione ferroviaria dista appena un chilometro, rendendo l'abitazione ideale per chi si muove quotidianamente verso Roma o altre destinazioni.
Una soluzione perfetta per single e coppie alla ricerca di un contesto sereno e ben collegato, ma anche un'ottima opportunità per investitori grazie alla tipologia, alla posizione e allo stato dell'immobile. APE "G"

LEGGI TUTTO

CONDIVIDI SUI SOCIAL

DATI PRINCIPALI

Riferimento
640836
Contratto
Vendita
Tipologia
Appartamento
Superficie
56 mq
Locali
2
Camere da letto
1
Cucina
Angolo cottura
Bagni
1
Piano
Piano rialzato
Totale piani
3

CARATTERISTICHE

Ascensore

COSTI

Prezzo
€ 105.000,00
Spese condominiali
€ 50,00 / mese

EFFICIENZA ENERGETICA

Stato
Abitabile
Anno costruzione
2002
Riscaldamento
Autonomo
Classe energetica
G
IPE
184,45 kWh/m²a

A+

A

B

C

D

E

F

184,45 kWh/m²a | Classe energetica G

G

MAPPA

ANNUNCI SIMILI

VENDITA 20
€ 177.000
Appartamento in Vendita a Monterotondo (Roma)
  • Più di 5 locali
  • 106 mq
  • 2 bagni
VENDITA 20
€ 195.000
Appartamento in Vendita a Monterotondo (Roma)
  • Quadrilocale
  • 130 mq
  • 2 bagni
VENDITA 20
€ 125.000
Appartamento in Vendita a Monterotondo (Roma)
  • Trilocale
  • 65 mq
  • 1 bagno