Appartamento in Vendita a Cinecittà VENDITA

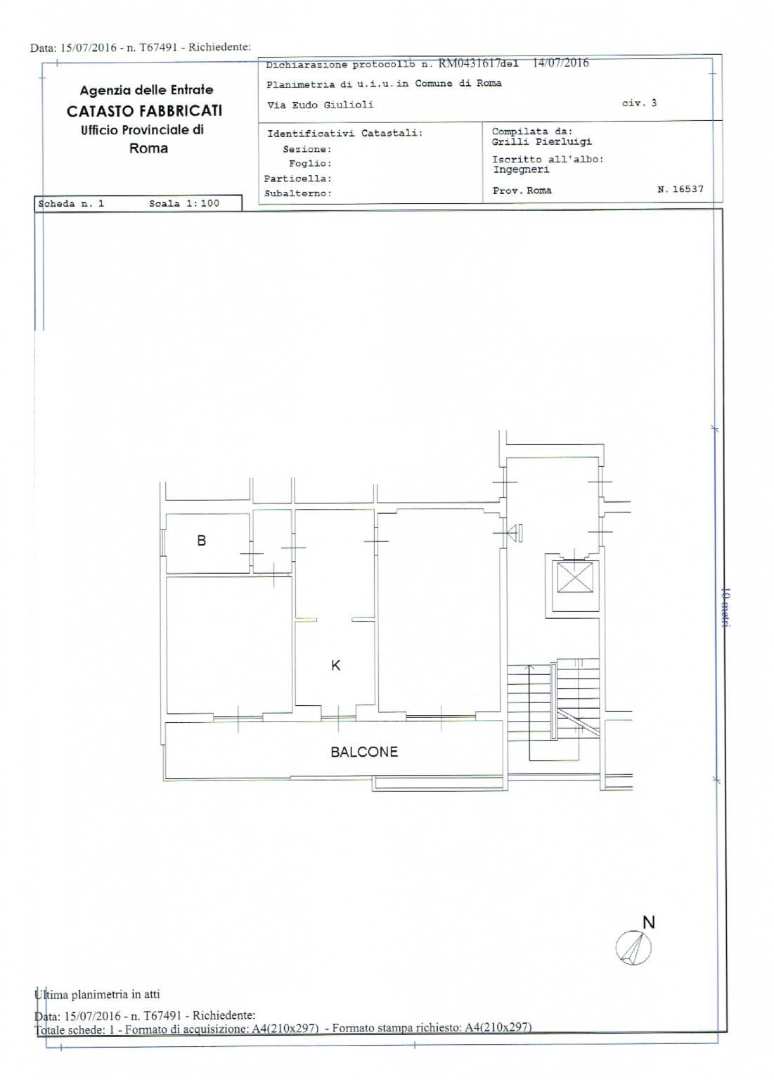
Via Eudo Giulioli 3 - Roma, Zona Cinecittà
€ 165.000
  • Bilocale
  • 64 mq
  • 1 bagno

Appartamento in Vendita a Roma

Scopri questo appartamento situato in zona Cinecittà, a soli 400 metri dalla fermata della metro, che ti permette di raggiungere facilmente il centro di Roma. La vendita riguarda la NUDA PROPRIETÀ, un'opportunità unica per investire in un immobile luminoso e ben posizionato. L'appartamento si trova al quinto piano di un edificio in cortina del 1985, dotato di ascensore e con una splendida esposizione a sud, garantendo luminosità in ogni ambiente.

Con una superficie catastale di 64 mq, l'appartamento è composto da un ampio soggiorno, una cucina abitabile, una camera da letto matrimoniale e un bagno con finestra. Ogni ambiente principale si affaccia su un ampio balcone abitabile, perfetto per godere di momenti di relax all'aperto. Inoltre, la proprietà include un posto auto coperto in garage e una comoda cantina, aggiungendo ulteriore valore all'immobile.

L'appartamento si presenta in buono stato di conservazione con materiali originali, pronto per essere personalizzato secondo i propri gusti. L'età dell'usufruttuario è di 83 anni, ideale per chi cerca un investimento. Il prezzo richiesto è di € 165.000. Non perdere tempo, contatta subito per informazioni e appuntamenti al numero!

LEGGI TUTTO

CONDIVIDI SUI SOCIAL

DATI PRINCIPALI

Riferimento
626371
Contratto
Vendita
Tipologia
Appartamento
Superficie
64 mq
Locali
2
Camere da letto
1
Cucina
Abitabile
Bagni
1
Piano
5 °
Totale piani
7
Box/Posto auto
Singolo

CARATTERISTICHE

Ascensore

COSTI

Prezzo
€ 165.000,00
Spese condominiali
€ 38,00 / mese

EFFICIENZA ENERGETICA

Stato
Abitabile
Anno costruzione
1985
Riscaldamento
Autonomo
Climatizzazione
Si
Classe energetica
G
IPE
351,00 kWh/m²a

A+

A

B

C

D

E

F

351,00 kWh/m²a | Classe energetica G

G

MAPPA

ANNUNCI SIMILI

VENDITA 13
€ 199.000
Appartamento in Vendita a Roma, Zona Cinecittà
  • Bilocale
  • 65 mq
  • 1 bagno
VENDITA 20
€ 335.000
Appartamento in Vendita a Roma, Zona Cinecittà
  • Quadrilocale
  • 105 mq
  • 2 bagni
VENDITA 17
€ 309.000
Appartamento in Vendita a Roma, Zona Cinecittà
  • Trilocale
  • 96 mq
  • 1 bagno
VENDITA 20
€ 550.000
Appartamento in Vendita a Roma, Zona Cinecittà
  • Più di 5 locali
  • 220 mq
  • 3 bagni
VENDITA 20
€ 309.000
Appartamento in Vendita a Roma, Zona Cinecittà
  • Quadrilocale
  • 128 mq
  • 2 bagni
VENDITA 20
€ 185.000
Appartamento in Vendita a Roma, Zona Cinecittà
  • Trilocale
  • 155 mq
  • 2 bagni
VENDITA 20
€ 225.000
Appartamento in Vendita a Roma, Zona Cinecittà
  • Trilocale
  • 90 mq
  • 1 bagno