Appartamento in vendita a Bracciano VENDITA

VIA DELLE PALME 5 - Bracciano (Roma)
€ 175.000
  • Quadrilocale
  • 128 mq
  • 2 bagni

Appartamento in Vendita a Bracciano

RE/MAX AREA PROPONE IN VENDITA

Bracciano Due – Via delle Palme
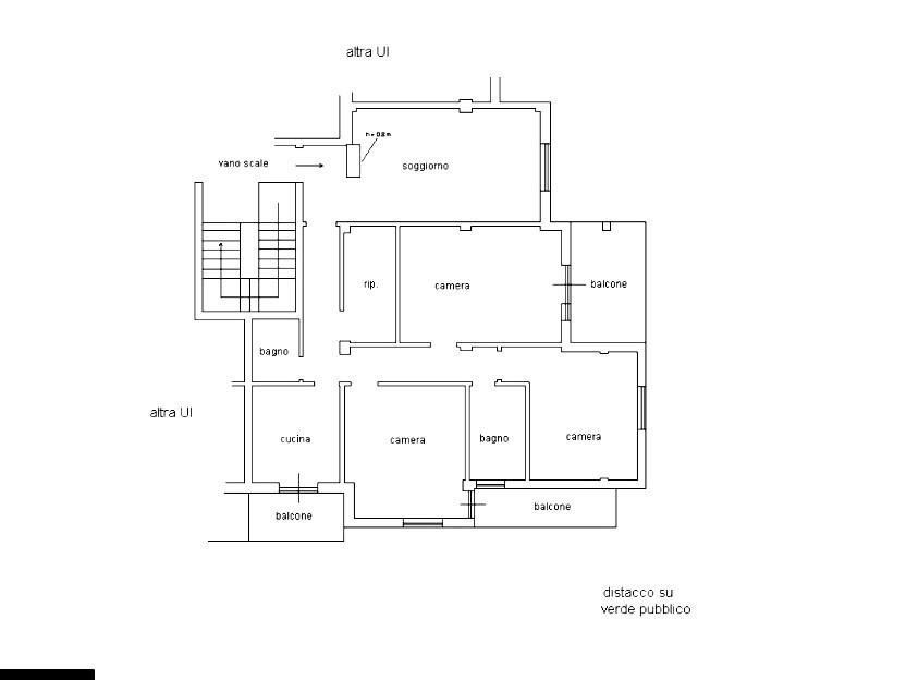
In contesto residenziale tranquillo e ben servito, proponiamo in vendita luminoso appartamento in buono stato, posto al secondo piano con ascensore di una palazzina di 4 piani, esposizione sud/est e sud/ovest.

L'immobile ha una superficie di circa 114 mq interni oltre 15 mq di balconi ed è così composto:

- soggiorno,

- cucina abitabile con balcone,

- due corridoi,

- ripostiglio,

- tre camere da letto, di cui due con balcone,

- due bagni: uno finestrato con vasca e uno cieco con doccia.

Completa la proprietà un ampio box auto di 18 mq.

Soluzione ideale per famiglie alla ricerca di spazi comodi, luminosità e funzionalità, in una zona residenziale ben collegata e dotata di tutti i principali servizi.

Le informazioni e le immagini presenti nell'annuncio hanno esclusivamente scopo illustrativo e non costituiscono elemento contrattuale.

LEGGI TUTTO

CONDIVIDI SUI SOCIAL

DATI PRINCIPALI

Riferimento
629551
Contratto
Vendita
Tipologia
Appartamento
Superficie
128 mq
Locali
4
Camere da letto
3
Cucina
Abitabile
Bagni
2
Piano
2 °
Totale piani
4
Box/Posto auto
Singolo

CARATTERISTICHE

Ascensore

COSTI

Prezzo
€ 175.000,00
Spese condominiali
€ 46,00 / mese

EFFICIENZA ENERGETICA

Stato
Abitabile
Riscaldamento
Autonomo
Classe energetica
E
IPE
93,05 kWh/m²a

A+

A

B

C

D

93,05 kWh/m²a | Classe energetica E

E

F

G

MAPPA

ANNUNCI SIMILI

VENDITA 20
€ 155.000
Appartamento in Vendita a Bracciano (Roma)
  • Più di 5 locali
  • 134 mq
  • 2 bagni
VENDITA 20
€ 170.000
Appartamento in Vendita a Bracciano (Roma)
  • Quadrilocale
  • 100 mq
  • 2 bagni
VENDITA 14
€ 200.000
Appartamento in Vendita a Bracciano (Roma)
  • Più di 5 locali
  • 125 mq
  • 2 bagni
VENDITA 11
€ 156.000
Appartamento in Vendita a Bracciano (Roma)
  • Quadrilocale
  • 70 mq
  • 1 bagno
VENDITA 20
€ 125.000
Appartamento in Vendita a Bracciano (Roma)
  • Più di 5 locali
  • 66 mq
  • 1 bagno
VENDITA 15
€ 259.000
Appartamento in Vendita a Bracciano (Roma)
  • Quadrilocale
  • 95 mq
  • 2 bagni
VENDITA 20
€ 185.000
Appartamento in Vendita a Bracciano (Roma)
  • Più di 5 locali
  • 135 mq
  • 2 bagni
VENDITA 18
€ 99.000
Appartamento in Vendita a Bracciano (Roma)
  • Quadrilocale
  • 105 mq
  • 2 bagni
VENDITA 20
€ 359.000
Appartamento in Vendita a Bracciano (Roma)
  • Più di 5 locali
  • 230 mq
  • 2 bagni