Appartamento dal layout contemporaneo, a Prati VENDITA

Via Crescenzio - Roma, Zona Borgo
€ 480.000
  • Bilocale
  • 69 mq
  • 1 bagno

Appartamento in Vendita a Roma

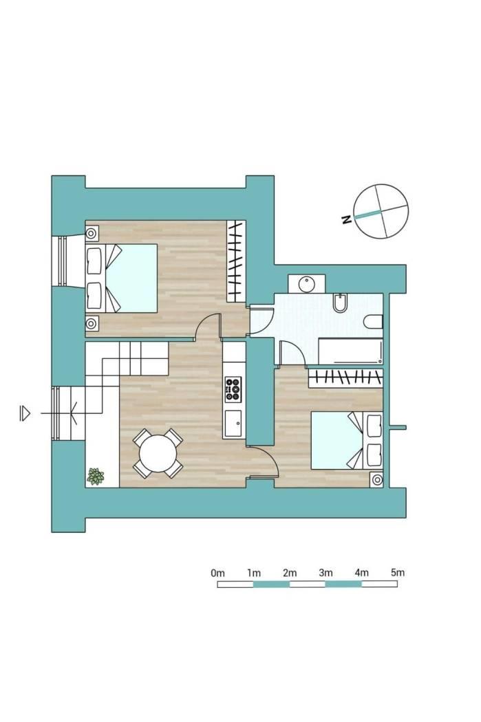
Questo appartamento dal layout moderno, è situato al piano seminterrato di un elegante edificio storico, nel prestigioso quartiere Prati, a breve distanza da Piazza Cavour e dalla maestosa Basilica del Vaticano.

L’appartamento è stato recentemente oggetto di un’accurata ristrutturazione, pensata per valorizzare l’identità architettonica originaria e, al contempo, introdurre un linguaggio estetico contemporaneo e funzionale.




L’ingresso si apre su un raffinato ambiente dove il carattere storico dell’immobile incontra soluzioni moderne e funzionali. Una scenografica vetrata separa la camera da letto, impreziosita da armadiature su misura, e da un’ampia finestra che garantisce luce naturale e un’atmosfera accogliente.

La zona giorno con angolo cottura, curata in ogni particolare, offre tutti i comfort contemporanei e ulteriori spazi di contenimento. Un ulteriore vano dotato di armadio su misura si collega al bagno finemente ristrutturato, caratterizzato da due accessi indipendenti e da materiali di pregio.


Un contesto residenziale esclusivo, perfettamente servito e a breve distanza dai principali luoghi simbolo della città, con boutique, ristoranti e servizi raggiungibili comodamente a piedi.

LEGGI TUTTO

CONDIVIDI SUI SOCIAL

DATI PRINCIPALI

Riferimento
641862
Contratto
Vendita
Tipologia
Appartamento
Superficie
69 mq
Locali
2
Camere da letto
1
Cucina
Angolo cottura
Bagni
1
Piano
Seminterrato
Totale piani
7

CARATTERISTICHE

Ascensore

COSTI

Prezzo
€ 480.000,00
Spese condominiali
€ 75,00 / mese

EFFICIENZA ENERGETICA

Stato
Ristrutturato
Anno costruzione
1900
Riscaldamento
Centralizzato
Climatizzazione
Si
Classe energetica
G
IPE
175,00 kWh/m²a

A+

A

B

C

D

E

F

175,00 kWh/m²a | Classe energetica G

G

MAPPA

ANNUNCI SIMILI

VENDITA 15
Trattativa Riservata
Appartamento in Vendita a Roma, Zona Borgo
  • Più di 5 locali
  • 214 mq
  • 2 bagni
VENDITA 9
€ 950.000
Appartamento in Vendita a Roma, Zona Borgo
  • Più di 5 locali
  • 145 mq
  • 2 bagni
VENDITA 4
€ 1.320.000
Appartamento in Vendita a Roma, Zona Borgo
  • Più di 5 locali
  • 188 mq
  • 3 bagni
VENDITA 20
€ 1.750.000
Appartamento in Vendita a Roma, Zona Prati
  • Più di 5 locali
  • 326 mq
  • 2 bagni
VENDITA 12
€ 685.000
Appartamento in Vendita a Roma, Zona Borgo
  • Quadrilocale
  • 130 mq
  • 2 bagni
VENDITA 17
€ 590.000
Appartamento in Vendita a Roma, Zona Borgo
  • Trilocale
  • 97 mq
  • 1 bagno
VENDITA 20
€ 545.000
Appartamento in Vendita a Roma, Zona Prati
  • Bilocale
  • 75 mq
  • 1 bagno
VENDITA 20
€ 1.470.000
Appartamento in Vendita a Roma, Zona Borgo
  • Più di 5 locali
  • 192 mq
  • 2 bagni
VENDITA 13
€ 1.700.000
Appartamento in Vendita a Roma, Zona Borgo
  • Quadrilocale
  • 210 mq
  • 3 bagni