Appartamento buono stato, nono piano, Bologna, Roma VENDITA

Roma, Zona Bologna
€ 615.000
  • Più di 5 locali
  • 102 mq
  • 2 bagni

Appartamento in Vendita a Roma

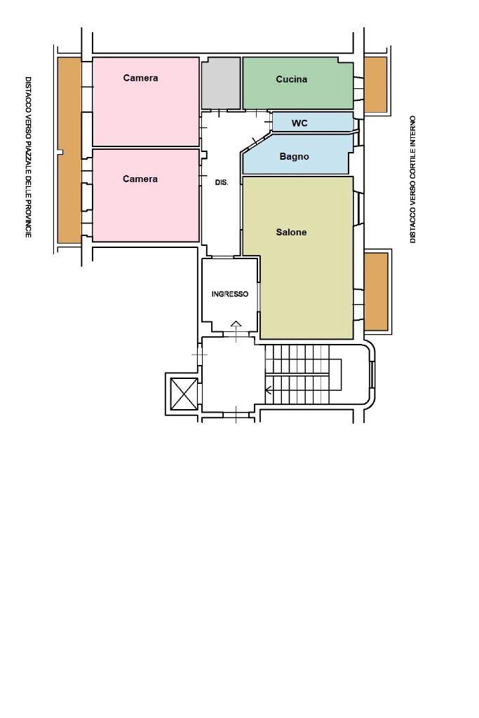
A pochi passi dalla nota Piazza Bologna, in uno dei condomini ambiti di piazzale delle province, proponiamo una imperdibile soluzione posta ad un piano alto con un doppio affaccio che ne garantisce un importante ariosità e luminosità per gli spazi presenti.
L' unità si compone di un ampio ingresso che introduce al salone doppio con balcone, due camere da letto entrambe con accesso al secondo balcone, due servizi finestrati, cucina abitabile con un ulteriore balcone e un comodo ripostiglio soppalcato.
L’immobile si presenta in buono stato di conservazione, dotato di impianto di condizionamento, le finestre in pvc con doppio vetro e porta blindata.
Questa opportunità si presta ad essere una valida soluzione abitativa per chi necessita di un appartamento in una zona centralissima del quartiere o per l'investitore che desidera ottimizzare un sicuro e allettante reddito investendo il proprio capitale essendo la zona perno di tutte le attività universitarie della Sapienza e del Policlinico Umberto Primo che garantiscono un indotto continuo e costante.

LEGGI TUTTO

CONDIVIDI SUI SOCIAL

DATI PRINCIPALI

Riferimento
635972
Contratto
Vendita
Tipologia
Appartamento
Superficie
102 mq
Locali
5
Camere da letto
2
Cucina
Abitabile
Bagni
2
Piano
Più di 7 piani
Totale piani
9

CARATTERISTICHE

Ascensore

COSTI

Prezzo
€ 615.000,00

EFFICIENZA ENERGETICA

Stato
Abitabile
Anno costruzione
1930
Riscaldamento
Centralizzato
Climatizzazione
Si
Classe energetica
G
IPE
175,00 kWh/m²a

A+

A

B

C

D

E

F

175,00 kWh/m²a | Classe energetica G

G

MAPPA

ANNUNCI SIMILI

VENDITA 20
€ 650.000
Appartamento in Vendita a Roma, Zona Bologna
  • Più di 5 locali
  • 134 mq
  • 1 bagno
VENDITA 15
Trattativa Riservata
Appartamento in Vendita a Roma, Zona Bologna
  • Più di 5 locali
  • 172 mq
  • 2 bagni
VENDITA 20
€ 749.000
Appartamento in Vendita a Roma, Zona Bologna
  • Più di 5 locali
  • 163 mq
  • 3 bagni
VENDITA 20
€ 999.000
Appartamento in Vendita a Roma, Zona Bologna
  • Più di 5 locali
  • 201 mq
  • 3 bagni
VENDITA 20
Trattativa Riservata
Appartamento in Vendita a Roma, Zona Bologna
  • Più di 5 locali
  • 260 mq
  • 2 bagni
VENDITA 20
€ 489.000
Appartamento in Vendita a Roma (Roma)
  • Più di 5 locali
  • 92 mq
  • 1 bagno
VENDITA 20
€ 1.100.000
Appartamento in Vendita a Roma, Zona Bologna
  • Più di 5 locali
  • 176 mq
  • 2 bagni