APPARTAMENTO BILIVELLO RECENTE COSTRUZIONE CON POSTO AUTO VENDITA

Via Tiburtina 1459 - Roma, Zona Settecamini
€ 185.000
  • Trilocale
  • 75 mq
  • 2 bagni

Appartamento in Vendita a Roma

APPARTAMENTO BILIVELLO RECENTE COSTRUZIONE CON POSTO AUTO
**Appartamento su Due Piani in Vendita a Settecamini**
Benvenuti in questo splendido appartamento su due piani situato in Via Tiburtina, nella tranquilla zona residenziale di Settecamini. A pochi passi dal G. R. A. e dall'Università UniCamillus questa proprietà è perfetta per chi cerca un ambiente sereno senza rinunciare alla comodità della città.
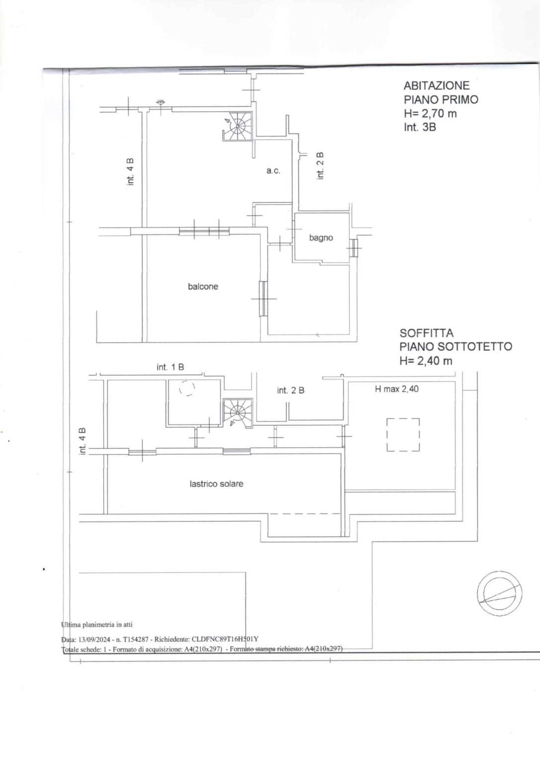
L'appartamento, parte di un complesso di tre unità di recente costruzione, è stato completato nel 2013 e offre un design moderno e funzionale. Al primo piano troverai un soggiorno con angolo cottura, una camera da letto, un bagno con finestra e un terrazzo ideale per rilassarsi.
Salendo la scala interna a chiocciola, si accede alle due camere, un locale ripostiglio predisposto per un secondo bagno e un altro terrazzo. Gli infissi in LEGNO con doppio vetro e il tetto ad isolamento termico e relativo cappotto garantiscono comfort e risparmio energetico. Il tutto è con pompe di calore che rendono l'immobile caldo d'inverno e fresco d'estate.
La proprietà include anche un posto auto di proprietà all'interno del residence, accessibile tramite cancello automatico. La porta d'ingresso blindata. L'immobile ha un'alta prestazione energetica.
Questa è un'opportunità imperdibile per chi desidera una casa nuova e completamente ristrutturata. Non perdere l'occasione di vivere in un contesto esclusivo e ben collegato!
Contattaci per maggiori informazioni e per prenotare una visita!

LEGGI TUTTO

CONDIVIDI SUI SOCIAL

DATI PRINCIPALI

Riferimento
630192
Contratto
Vendita
Tipologia
Appartamento
Superficie
75 mq
Locali
3
Camere da letto
2
Cucina
Angolo cottura
Bagni
2
Piano
1 °
Totale piani
2
Box/Posto auto
Singolo

CARATTERISTICHE

Ascensore

COSTI

Prezzo
€ 185.000,00
Spese condominiali
€ 90,00 / mese

EFFICIENZA ENERGETICA

Stato
Ristrutturato
Anno costruzione
2013
Climatizzazione
Si
Classe energetica
A+
IPE
175,00 kWh/m²a
175,00 kWh/m²a | Classe energetica A+

A+

A

B

C

D

E

F

G

MAPPA

ANNUNCI SIMILI

VENDITA 20
€ 189.000
Appartamento in Vendita a Roma, Zona Settecamini
  • Trilocale
  • 70 mq
  • 2 bagni
VENDITA 20
€ 219.000
Appartamento in Vendita a Roma, Zona Settecamini
  • Più di 5 locali
  • 118 mq
  • 2 bagni
VENDITA 20
€ 209.000
Appartamento in Vendita a Roma, Zona Settecamini
  • Quadrilocale
  • 80 mq
  • 2 bagni
VENDITA 20
€ 255.000
Appartamento in Vendita a Roma, Zona Settecamini
  • Trilocale
  • 95 mq
  • 2 bagni