Appartamento 2 NO ascensore, 2 balconi, P auto, cantina VENDITA

Via Riccardo Zandonai - Rignano Flaminio (Roma)
€ 95.000
  • Trilocale
  • 80 mq
  • 2 bagni

Appartamento in Vendita a Rignano Flaminio

ACCONTO DI € 55.000,00 RIMANENZA A RATE SENZA INTERESSI E SENZA BANCA!!! DETTAGLI IN SEDE CELL.: 3404719293 Cristina
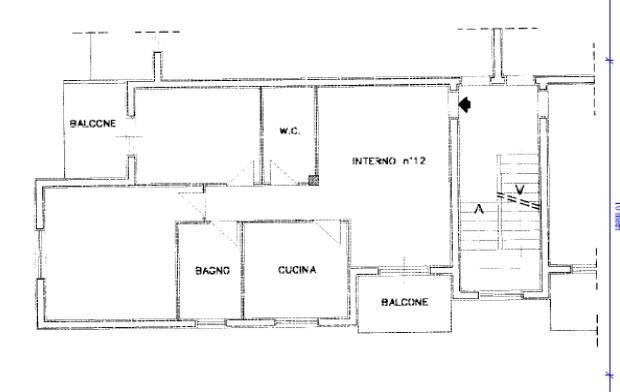
Bellissimo appartamento in vendita, situato vicino alla stazione ed ai servizi principali facilmente raggiungibili. Si trova al secondo ed ultimo piano senza ascensore di una palazzina ristrutturata, in ottimo stato. L'ampio soggiorno e il comodo balcone offrono il massimo comfort per godersi i momenti di relax. La cucina abitabile spaziosa e funzionale è ideale per cucinare. La camera matrimoniale ampia e luminosa e la cameretta con uscita sul secondo balcone garantiscono il massimo della privacy. La sicurezza è garantita dal nuovo portone blindato e gli infissi in PVC nuovi assicurano il massimo isolamento termico. La caldaia NUOVA a condensazione, garantisce un'efficienza energetica ottimale. La cantina inclusa è ideale per riporre gli oggetti inutilizzati. Non perdere l'occasione di acquistare questo appartamento di 85 m² commerciali e 80 m² calpestabili, composto da SOGGIORNO, CUCINA ABITABILE, 2 CAMERE, 2 SERVIZI, 2 BALCONI E CANTINA. Si trova al secondo piano, ma l'esposizione a Sud, Ovest e nord, garantisce una splendida luminosità. Il gas è diretto di città ed è un ulteriore vantaggio. Possibilità di ricavare la terza camera in cucina e l'angolo cottura si può spostare nel soggiorno con attacchi sulla parete confinante con il secondo servizio.
ACCONTO DI € 55.000,00 RIMANENZA A RATE SENZA INTERESSI E SENZA BANCA!!! DETTAGLI IN SEDE CELL.: 3404719293 Cristina

LEGGI TUTTO

CONDIVIDI SUI SOCIAL

DATI PRINCIPALI

Riferimento
642710
Contratto
Vendita
Tipologia
Appartamento
Superficie
80 mq
Locali
3
Camere da letto
2
Cucina
Abitabile
Bagni
2
Piano
2 °
Totale piani
3
Box/Posto auto
Singolo

CARATTERISTICHE

Ascensore

COSTI

Prezzo
€ 95.000,00
Spese condominiali
€ 25,00 / mese

EFFICIENZA ENERGETICA

Stato
Ristrutturato
Riscaldamento
Autonomo
Climatizzazione
Si
Classe energetica
E
IPE
175,00 kWh/m²a

A+

A

B

C

D

175,00 kWh/m²a | Classe energetica E

E

F

G

MAPPA

ANNUNCI SIMILI

VENDITA 20
€ 129.000
Appartamento in Vendita a Rignano Flaminio (Roma)
  • Quadrilocale
  • 140 mq
  • 3 bagni
VENDITA 12
€ 51.216
Appartamento in Vendita a Rignano Flaminio (Roma)
  • Più di 5 locali
  • 141 mq
  • 1 bagno
VENDITA 12
€ 41.428
Appartamento in Vendita a Rignano Flaminio (Roma)
  • Più di 5 locali
  • 118 mq
  • 1 bagno