ANZIO VIALE MENCACCI VENDITA

Viale Mencacci 6 - Anzio (Roma)
€ 220.000
  • Più di 5 locali
  • 134 mq
  • 2 bagni

Appartamento in Vendita a Anzio

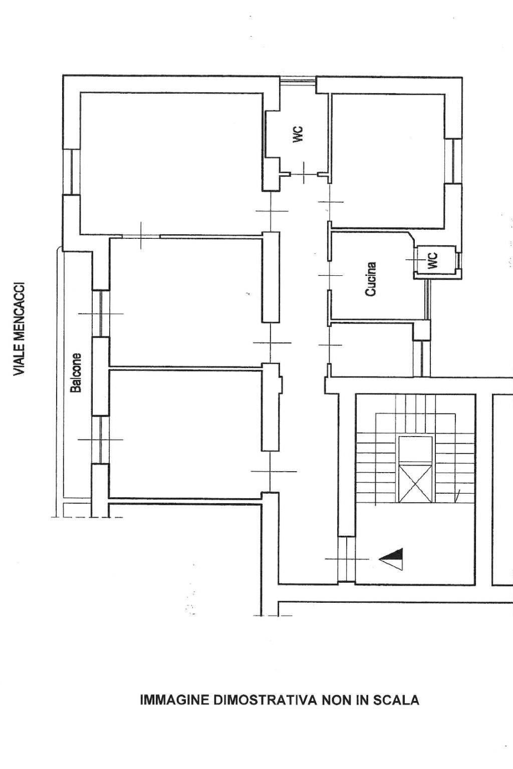
A pochi minuti dal centro e dal mare, proponiamo la vendita di un appartamento di ampia metratura (mq. 134 catastali) al secondo piano con ascensore. L'immobile è così composto: ampio ingresso, soggiorno con balcone, 3 comode camere da letto, cucina, cameretta, due bagni. L'appartamento si presenta in buone condizioni di manutenzione, pur conservando i materiali originali; il riscaldamento è autonomo; gli impianti da rifare. L'ottima posizione è di grande comodità, vicino alla stazione centrale di Anzio e alla bella piazza cittadina. L'appartamento è completamente vuoto, quindi con disponibilità immediata.



La nostra attività immobiliare nasce nel 1979.
Garantiamo, gratuitamente, un’obiettiva e reale individuazione del valore immobiliare, in una cornice di serietà e cortesia.
Forniamo un’assistenza completa a chi deve vendere o locare, dalla valutazione alla stipula del contratto definitivo.
Siamo a Vostra completa disposizione, sia che vogliate vendere, locare, acquistare; contattateci o venite a trovarci presso la nostra agenzia in Via Po 150.

LEGGI TUTTO

CONDIVIDI SUI SOCIAL

DATI PRINCIPALI

Riferimento
630386
Contratto
Vendita
Tipologia
Appartamento
Superficie
134 mq
Locali
5
Camere da letto
4
Cucina
Abitabile
Bagni
2
Piano
2 °
Totale piani
3

CARATTERISTICHE

Ascensore

COSTI

Prezzo
€ 220.000,00
Spese condominiali
€ 130,00 / mese

EFFICIENZA ENERGETICA

Stato
Abitabile
Anno costruzione
1939
Riscaldamento
Autonomo
Classe energetica
F
IPE
175,00 kWh/m²a

A+

A

B

C

D

E

175,00 kWh/m²a | Classe energetica F

F

G

MAPPA

ANNUNCI SIMILI

VENDITA 20
€ 350.000
Appartamento in Vendita a Anzio (Roma)
  • Più di 5 locali
  • 164 mq
  • 2 bagni
VENDITA 13
€ 550.000
Appartamento in Vendita a Anzio (Roma)
  • Più di 5 locali
  • 164 mq
  • 2 bagni
VENDITA 20
€ 365.625
Appartamento in Vendita a Anzio (Roma)
  • Più di 5 locali
  • 297 mq
  • 4 bagni
VENDITA 20
€ 748.000
Appartamento in Vendita a Anzio (Roma)
  • Più di 5 locali
  • 155 mq
  • 3 bagni
VENDITA 20
€ 330.000
Appartamento in Vendita a Anzio (Roma)
  • Più di 5 locali
  • 126 mq
  • 2 bagni
VENDITA 20
€ 430.000
Appartamento in Vendita a Anzio (Roma)
  • Più di 5 locali
  • 179 mq
  • 3 bagni
VENDITA 20
€ 550.000
Appartamento in Vendita a Anzio (Roma)
  • Più di 5 locali
  • 168 mq
  • 4 bagni
VENDITA 20
€ 155.000
Appartamento in Vendita a Anzio (Roma)
  • Più di 5 locali
  • 83 mq
  • 1 bagno
VENDITA 12
€ 69.000
Appartamento in Vendita a Anzio (Roma)
  • Più di 5 locali
  • 223 mq
VENDITA 20
€ 150.000
Appartamento in Vendita a Anzio (Roma)
  • Più di 5 locali
  • 106 mq
  • 2 bagni