Anzio, Trilocale con giardino a 1,5 km da mare VENDITA

Via Adda - Anzio (Roma)
€ 215.000
  • Trilocale
  • 120 mq
  • 2 bagni

Appartamento in Vendita a Anzio

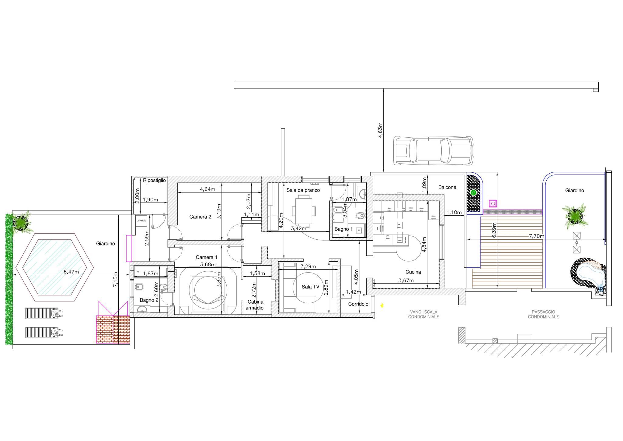
Anzio, zona Villa Claudia in un quartiere residenziale e a 1,5 km dal mare, proponiamo in vendita bellissimo appartamento di mq 120 posto al piano terra di una palazzina quadrifamiliare (senza condominio).

Questa abitazione accoglie con spazi ben distribuiti e gode di un ottima esposizione che garantisce luce naturale durante tutto il giorno (sud-est-ovest), internamente si compone da: ingresso, cucina abitabile con porta finestra che conduce sul giardino di proprietà, salone doppio con sala cinema, camera matrimoniale con cabina armadio e bagno en suite, ampia cameretta, servizio con finestra e doccia. Completano la proprietà due giardini posti fronte e retro casa con: portico, ripostiglio con zona lavanderia e tre posti auto scoperti e custoditi.

L'appartamento è completamente ristrutturato e con impianti certificati, rifinito con impianto di domotica per il controllo remoto di luci e dispositivi elettrici, portone blindato, finestre in PVC con vetro camera 4+4 temperato, avvolgibili in acciaio coibentate e blindate, impianto di allarme, climatizzato e termoautonomo.

L'immobile è inserito in un contesto residenziale molto tranquillo e ricco di servizi e aree verdi.

Nelle immediate vicinanze troviamo asilo comunale, scuola elementare, bar, pescheria, macelleria, alimentari, forno, ferramenta, una chiesa, un campo sportivo, piscina, para farmacia.

Il servizio di pullman locale ha la fermata in prossimità dell’appartamento mentre la stazione ferroviaria dista circa 8 minuti a piedi.

La richiesta è di euro 215.000, 00.

LEGGI TUTTO

CONDIVIDI SUI SOCIAL

DATI PRINCIPALI

Riferimento
632544
Contratto
Vendita
Tipologia
Appartamento
Superficie
120 mq
Locali
3
Camere da letto
2
Cucina
Abitabile
Bagni
2
Piano
Piano terra
Totale piani
2
Box/Posto auto
Doppio

CARATTERISTICHE

Ascensore

COSTI

Prezzo
€ 215.000,00

EFFICIENZA ENERGETICA

Stato
Ristrutturato
Anno costruzione
1966
Riscaldamento
Autonomo
Climatizzazione
Si
Classe energetica
F
IPE
175,00 kWh/m²a

A+

A

B

C

D

E

175,00 kWh/m²a | Classe energetica F

F

G

MAPPA

ANNUNCI SIMILI

VENDITA 11
€ 75.375
Appartamento in Vendita a Anzio (Roma)
  • Più di 5 locali
  • 95 mq
  • 2 bagni
VENDITA 20
€ 115.000
Appartamento in Vendita a Anzio (Roma)
  • Trilocale
  • 80 mq
  • 1 bagno
VENDITA 20
€ 270.000
Appartamento in Vendita a Anzio (Roma)
  • Più di 5 locali
  • 155 mq
  • 2 bagni
VENDITA 11
€ 130.011
Appartamento in Vendita a Anzio (Roma)
  • Più di 5 locali
  • 95 mq
  • 1 bagno
VENDITA 14
€ 92.985
Appartamento in Vendita a Anzio (Roma)
  • Più di 5 locali
  • 41 mq
  • 1 bagno
VENDITA 11
€ 73.784
Appartamento in Vendita a Anzio (Roma)
  • Quadrilocale
  • 41 mq
  • 1 bagno
VENDITA 12
€ 128.864
Appartamento in Vendita a Anzio (Roma)
  • Più di 5 locali
  • 95 mq
  • 1 bagno
VENDITA 11
€ 51.000
Appartamento in Vendita a Anzio (Roma)
  • Più di 5 locali
  • 59 mq
  • 1 bagno