ANZIO FALASCHE TRILOCALE VIA MARINO VENDITA

Via Marino 5 - Anzio (Roma)
€ 135.000
  • Trilocale
  • 70 mq
  • 1 bagno

Appartamento in Vendita a Anzio

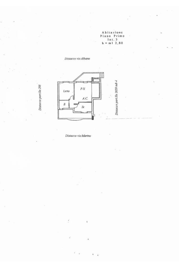
Anzio Falasche, Via Marino Immobiliare Giacoponi propone in vendita appartamento posto al primo piano con entrata indipendente in piccolo condominio di recente costruzione.
Situato in ottima posizione a pochi minuti dal centro di Anzio la zona è prossima ai servizi, mezzi di trasporto e attività commerciali, gode di un contesto riservato con affaccio gradevole e vista ampia e aperta
L’immobile, disposto su due piani, presenta al primo livello l’ambiente abitativo, composto da luminoso salone con angolo cottura, camera matrimoniale, cameretta, bagno con doccia e un balcone con ripostiglio esterno; tramite elegante scala in legno si accede dall'interno al livello superiore, dove un comodo disimpegno (pluriuso) introduce alla terrazza di proprietà di circa 100 mq, che rappresenta un importante valore aggiunto per situazioni conviviali e momenti privati di relax.
L'appartamento, in ottimo stato, è dotato di rifiniture e materiali di prima scelta: infissi nuovi in pvc rivestito a legno e doppi vetri, inferriate, persiane in ferro, portone d'ingresso blindato.
Termoautonomo e con predisposizione per condizionatori.
Completa la proprietà un posto auto coperto in area condominiale e piccola corte di proprietà al piano terra
La nostra agenzia garantisce piena assistenza fino alle fasi finali dell'atto di compravendita, offre consulenza finanziaria per accedere al mutuo assolutamente gratuita, consulenza tecnica e notarile per la risoluzione di qualunque problema inerente alla vendita o all'acquisto
IMMOBILIARE GIACOPONI
069820873
3460892854
immobiliaregiacoponi@gmail.com

LEGGI TUTTO

CONDIVIDI SUI SOCIAL

DATI PRINCIPALI

Riferimento
644312
Contratto
Vendita
Tipologia
Appartamento
Superficie
70 mq
Locali
3
Camere da letto
2
Cucina
Angolo cottura
Bagni
1
Piano
1 °
Totale piani
2
Box/Posto auto
Singolo

CARATTERISTICHE

Ascensore

COSTI

Prezzo
€ 135.000,00
Spese condominiali
€ 8,00 / mese

EFFICIENZA ENERGETICA

Stato
Ristrutturato
Anno costruzione
2011
Riscaldamento
Autonomo
Climatizzazione
Predisposizione
Classe energetica
F
IPE
175,00 kWh/m²a

A+

A

B

C

D

E

175,00 kWh/m²a | Classe energetica F

F

G

MAPPA

ANNUNCI SIMILI

VENDITA 20
€ 119.250
Appartamento in Vendita a Anzio (Roma)
  • Più di 5 locali
  • 135 mq
  • 1 bagno
VENDITA 20
€ 159.000
Appartamento in Vendita a Anzio (Roma)
  • Trilocale
  • 95 mq
  • 1 bagno
VENDITA 19
€ 165.000
Appartamento in Vendita a Anzio (Roma)
  • Quadrilocale
  • 115 mq
  • 2 bagni
VENDITA 20
€ 59.000
Appartamento in Vendita a Anzio (Roma)
  • Trilocale
  • 45 mq
  • 1 bagno
VENDITA 11
€ 51.000
Appartamento in Vendita a Anzio (Roma)
  • Più di 5 locali
  • 59 mq
  • 1 bagno
VENDITA 19
€ 129.000
Appartamento in Vendita a Anzio (Roma)
  • Trilocale
  • 70 mq
  • 2 bagni
VENDITA 12
€ 128.864
Appartamento in Vendita a Anzio (Roma)
  • Più di 5 locali
  • 95 mq
  • 1 bagno