AMPIO TRILOCALE RISTRUTTURATO CON TERRAZZO E DOPPI SERVIZI! VENDITA

Via Palo Laziale - Ladispoli (Roma)
€ 240.000
  • Trilocale
  • 100 mq
  • 2 bagni

Appartamento in Vendita a Ladispoli

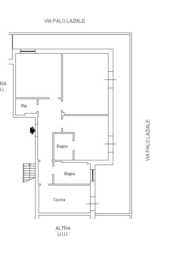
Rif: VI063 - La Tempocasa Ladispoli propone in vendita un AMPIO PRIMO PIANO Ristrutturato in una palazzina COMPLETAMENTE RISTRUTTURATA A DUE PASSI DALLA STAZIONE E DAL CENTRO DI LADISPOLI, CON ASCENSORE! Entrando nella soluzione troviamo un disimpegno che suddivide le varie stanze con Ampio soggiorno, due camere matrimoniali due bagni e cucina abitabile. Completa la proprietà un comodo e ampio terrazzo perimetrale.
L'appartamento è dotato di ascensore e l'orientamento Sud-Ovest lo rende molto luminoso e arieggiato. L'anno di costruzione è il 1978 e stanno ultimando i lavori alla palazzina con il Bonus 110%, ma l'immobile è stato completamente ristrutturato e modernizzato per soddisfare le esigenze di chi cerca un'abitazione confortevole e accogliente.
Non perdere l'opportunità di visitare questo splendido appartamento! Contattaci al numero di telefono dell'agenzia, sita in Via Cagliari, 25 - Ladispoli 00055, per fissare un appuntamento di visita o per ricevere maggiori informazioni sull'immobile. Inoltre, la Tempocasa di Ladispoli è a tua disposizione per aiutarti nella ricerca della casa dei tuoi sogni e per offrirti una valutazione gratuita e senza impegno del tuo immobile.

LEGGI TUTTO

CONDIVIDI SUI SOCIAL

DATI PRINCIPALI

Riferimento
641727
Contratto
Vendita
Tipologia
Appartamento
Superficie
100 mq
Locali
3
Camere da letto
2
Cucina
Abitabile
Bagni
2
Piano
1 °
Totale piani
8

CARATTERISTICHE

Ascensore

COSTI

Prezzo
€ 240.000,00
Spese condominiali
€ 40,00 / mese

EFFICIENZA ENERGETICA

Stato
Ristrutturato
Anno costruzione
1978
Riscaldamento
Autonomo
Classe energetica
G
IPE
1,00 kWh/m²a

A+

A

B

C

D

E

F

1,00 kWh/m²a | Classe energetica G

G

MAPPA

ANNUNCI SIMILI

VENDITA 20
€ 195.000
Appartamento in Vendita a Ladispoli (Roma)
  • Trilocale
  • 70 mq
  • 1 bagno
VENDITA 20
€ 269.000
Appartamento in Vendita a Ladispoli (Roma)
  • Quadrilocale
  • 100 mq
  • 1 bagno
VENDITA 13
€ 219.000
Appartamento in Vendita a Ladispoli (Roma)
  • Trilocale
  • 100 mq
  • 1 bagno
VENDITA 16
€ 280.000
Appartamento in Vendita a Ladispoli (Roma)
  • Trilocale
  • 133 mq
  • 2 bagni
VENDITA 20
€ 305.000
Appartamento in Vendita a Ladispoli (Roma)
  • Quadrilocale
  • 100 mq
  • 1 bagno
VENDITA 14
€ 165.000
Appartamento in Vendita a Ladispoli (Roma)
  • Trilocale
  • 90 mq
  • 1 bagno