AMPIO APPARTAMENTO AL PIANO TERRA CON GIARDINO E GARAGE VENDITA

Via della Liberazione 15 - Nettuno (Roma)
€ 199.000
  • Più di 5 locali
  • 98 mq
  • 2 bagni

Appartamento in Vendita a Nettuno

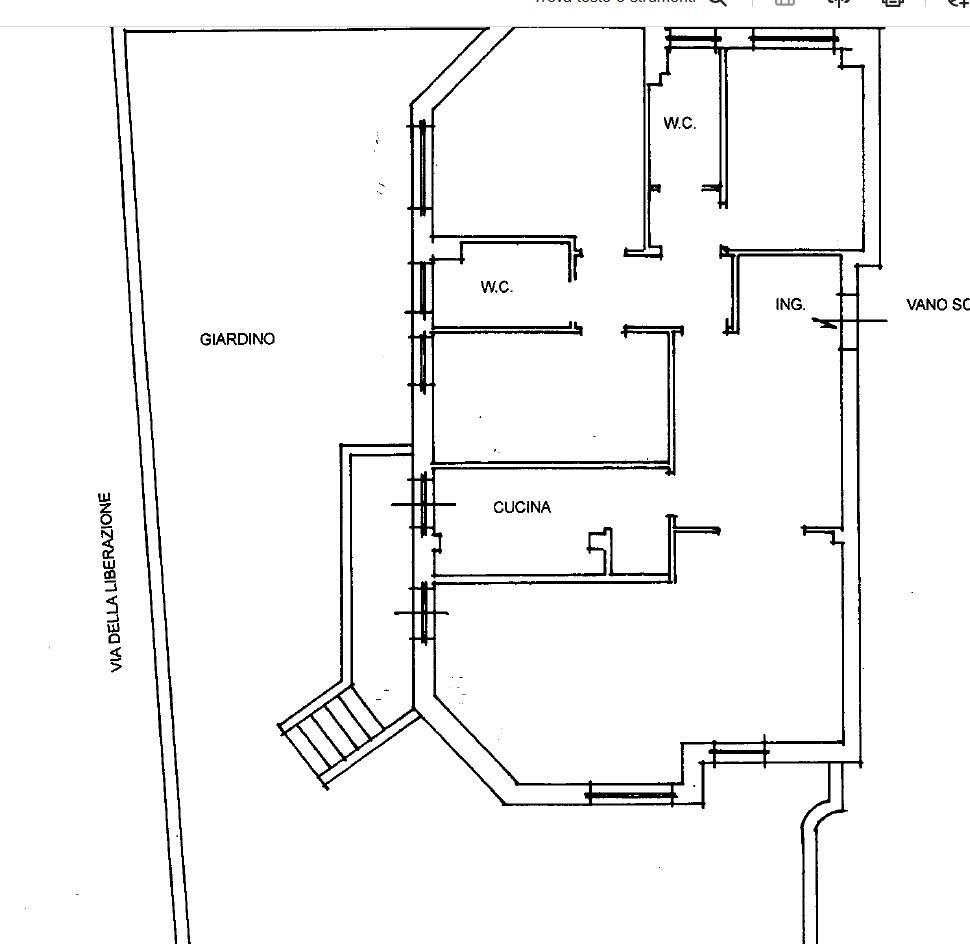
NETTUNO – Via della Liberazione: in posizione strategica tra mare, centro e servizi, adiacente a tutte le attività commerciali, trasporti e a due passi dal mare (FERMATE COTRAL 300MT-STAZIONE FERROVIARIA 700MT - SCUOLA ELEMENTARE A 150 METRI-SPIAGGIA LIBERA E STABILIMENTI BALNEARI A 300 MT – 500 MT PALESTRA – 600 METRI DAL CENTRO) , All' interno di palazzina in buono stato di manutenzione con gradevole affaccio aperto verso il mare, proponiamo la vendita di un ampio appartamento posto al PIANO TERRA rialzato, con giardino e garage. L’ immobile è internamente composto da: grande ingresso, luminoso salone, cucina separata, TRE spaziose camere da letto matrimoniali, disimpegno e doppi servizi entrambe con doccia. Dal salone e dalla cucina si ha accesso al giardino. L’immobile, che si presenta in stato originario, è accessoriato da grate ad ogni finestra ed è dotato di riscaldamento autonomo con elementi in ogni ambiente. Il giardino, pavimentato che si sviluppa su due lati, dona all’immobile un prezioso angolo di relax e di grande bellezza. L'appartamento si presenta luminoso, fresco ed arioso grazie alla tripla esposizione, mentre la distanza dalle proprietà limitrofe, gli affacci liberi, gli conferiscono indipendenza e riservatezza. L' ottimo metodo costruttivo con spazi ampi, tipici degli anni '70, la signorilità del contesto, la vicinanza al mare, ai servizi e ai trasporti nonché al centro di nettuno, la comodità del piano terra e dell'ampio ambiente esterno, rappresenta la soluzione ideale per tutte le famiglie che desiderino trascorrervi le vacanze, i week end invernali o per essere vissuta tutto l’ anno. E' possibile visionare l' immobile previo appuntamento telefonico. Le immagini presenti nell'annuncio sono a scopo illustrativo. Il mobilio e arredo interno ed esterno non sono da considerarsi compresi nel prezzo di vendita. La Società Case Elite offre un servizio completo ed all'avanguardia per tutto ciò che riguarda la compravendita, la locazione ed investimenti immobiliari. Valutazioni gratuite su tutto il territorio di Roma e Provincia. Consulenze tecnico - legali, assistenza sino al rogito notarile, consulenze gratuite per mutui e prestiti personali con staff di esperienza ventennale nel settore Competenza, professionalità e passione al vostro servizio. Rivolgersi a "CASE ELITE" tel: 3247770265 - mail: info@caseelite.it visita il nostro sito www.caseelite.com

LEGGI TUTTO

CONDIVIDI SUI SOCIAL

DATI PRINCIPALI

Riferimento
632780
Contratto
Vendita
Tipologia
Appartamento
Superficie
98 mq
Locali
5
Camere da letto
3
Cucina
Cucinotto
Bagni
2
Piano
Piano terra
Totale piani
1
Box/Posto auto
Singolo

CARATTERISTICHE

Ascensore

COSTI

Prezzo
€ 199.000,00
Spese condominiali
€ 100,00 / mese

EFFICIENZA ENERGETICA

Stato
Abitabile
Anno costruzione
1967
Riscaldamento
Autonomo
Classe energetica
G
IPE
175,00 kWh/m²a

A+

A

B

C

D

E

F

175,00 kWh/m²a | Classe energetica G

G

MAPPA

ANNUNCI SIMILI

VENDITA 20
€ 189.000
Appartamento in Vendita a Nettuno (Roma)
  • Più di 5 locali
  • 109 mq
  • 2 bagni
VENDITA 20
€ 659.000
Appartamento in Vendita a Nettuno (Roma)
  • Più di 5 locali
  • 210 mq
  • 3 bagni
VENDITA 12
€ 82.500
Appartamento in Vendita a Nettuno (Roma)
  • Più di 5 locali
  • 66 mq
  • 1 bagno
VENDITA 20
€ 159.000
Appartamento in Vendita a Nettuno (Roma)
  • Più di 5 locali
  • 95 mq
  • 2 bagni
VENDITA 20
€ 249.000
Appartamento in Vendita a Nettuno (Roma)
  • Più di 5 locali
  • 98 mq
  • 1 bagno
VENDITA 20
€ 180.000
Appartamento in Vendita a Nettuno (Roma)
  • Più di 5 locali
  • 130 mq
  • 2 bagni
VENDITA 11
€ 160.000
Appartamento in Vendita a Nettuno (Roma)
  • Più di 5 locali
  • 283 mq
  • 1 bagno
VENDITA 20
€ 165.000
Appartamento in Vendita a Nettuno (Roma)
  • Più di 5 locali
  • 90 mq
  • 2 bagni
VENDITA 20
€ 180.000
Appartamento in Vendita a Nettuno (Roma)
  • Più di 5 locali
  • 98 mq
  • 2 bagni
VENDITA 20
€ 260.000
Appartamento in Vendita a Nettuno (Roma)
  • Più di 5 locali
  • 87 mq
  • 2 bagni