Ampia metratura in buono stato VENDITA

Via Giovanni Stefano Roccatagliata, 14 - Roma (Roma)
€ 309.000
  • Trilocale
  • 100 mq
  • 1 bagno

Appartamento in Vendita a Roma

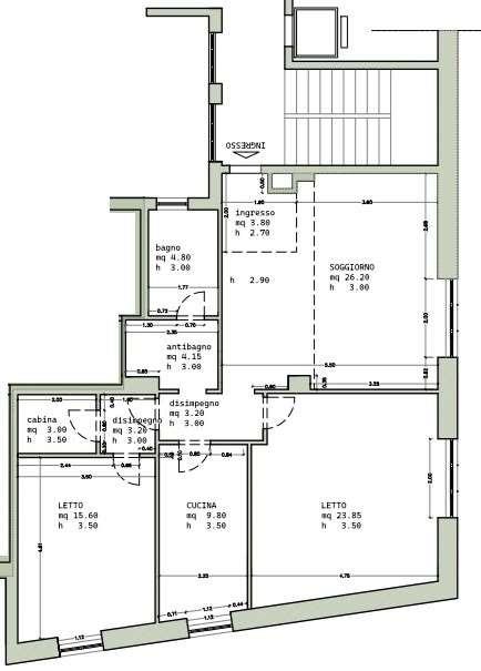
BUILDINGCASE Colli Portuensi Immobiliare propone in vendita immobile in zona monteverde nuovo e precisamente in via Giovanni Stefano Roccatagliata, traversa di via Paola Falconieri a pochi passi da piazza San Giovanni di Dio e dalla circonvallazione Gianicolense, in una palazzina in buono stato manutentivo di cinque piani complessivi, suddivisa in due scale con ascensore, rivestita esternamente in travertino.
Posto al piano terra (senza alcuna barriera architettonica) internamente è composto da ingresso in salone, cucina abitabile, due ampie camere matrimoniali, bagno con mezza vasca e doccia, comodi ripostiglio e soppalco.
Si specifica che non ci sono spazi esterni.
Si presenta in buono stato, gli infissi sono in alluminio con doppio vetro, la porta è blindata, e inoltre troviamo installate anche le grate.
Doppia esposizione SUD EST, rimane ben riparato dai rumori urbani; il riscaldamento è centralizzato con contabilizzatori.
Visti gli ampi spazi degli ambienti è di facile realizzazione un'ulteriore camera facendo un'angolo cottura nel salone.
Completa la proprietà una comoda e asciutta cantina sottostante lo stabile.
Classe energetica: “F” - indice di prestazione 234,19 Kwh/mq annuo

Informazioni puramente indicative e non costituenti elemento contrattuale ne presupposto contrattuale
I NOSTRI UFFICI SONO APERTI DAL LUNEDI' AL VENERDI' DALLE 9:00 ALLE 13:00 E DALLE 15:30 ALLE 19:30 ED IL SABATO DALLE 9:30 ALLE 13:00
BUILDINGCASE offre ai propri clienti un servizio veloce ed efficiente, mirato a soddisfare al meglio esigenze e aspettative di chi si affida al nostro gruppo immobiliare.
Cortesia e discrezione, valutazione completamente gratuita e non impegnativa, un vasto database di clienti selezionati e un’ampia rete di comunicazione, volta a promuovere al meglio il vostro immobile, sono solo alcuni dei molteplici vantaggi a disposizione dei clienti BUILDINGCASE. Inoltre contatti diretti con: Tecnici, Periti, Notai, Consulenti Finanziari, Ristrutturatori e Traslocatori per offrirvi ogni tipo di risposte.

LEGGI TUTTO

CONDIVIDI SUI SOCIAL

DATI PRINCIPALI

Riferimento
632898
Contratto
Vendita
Tipologia
Appartamento
Superficie
100 mq
Locali
3
Camere da letto
2
Cucina
Abitabile
Bagni
1
Piano
Piano terra
Totale piani
5

CARATTERISTICHE

Ascensore

COSTI

Prezzo
€ 309.000,00
Spese condominiali
€ 65,00 / mese

EFFICIENZA ENERGETICA

Stato
Abitabile
Anno costruzione
1950
Riscaldamento
Centralizzato
Classe energetica
F
IPE
234,19 kWh/m²a

A+

A

B

C

D

E

234,19 kWh/m²a | Classe energetica F

F

G

MAPPA

ANNUNCI SIMILI

VENDITA 20
€ 250.000
Appartamento in Vendita a Roma (Roma)
  • Trilocale
  • 105 mq
  • 1 bagno
VENDITA 13
€ 290.000
Appartamento in Vendita a Roma (Roma)
  • Trilocale
  • 93 mq
  • 1 bagno
VENDITA 20
€ 585.000
Appartamento in Vendita a Roma (Roma)
  • Più di 5 locali
  • 180 mq
  • 2 bagni
VENDITA 5
€ 395.000
Appartamento in Vendita a Roma (Roma)
  • Trilocale
  • 80 mq
  • 1 bagno
VENDITA 20
€ 295.000
Appartamento in Vendita a Roma (Roma)
  • Trilocale
  • 70 mq
  • 1 bagno