AMPIA METRATURA CON TERRAZZO VENDITA

Viale Libia - Roma (Roma)
€ 850.000
  • Più di 5 locali
  • 220 mq
  • 2 bagni

Appartamento in Vendita a Roma

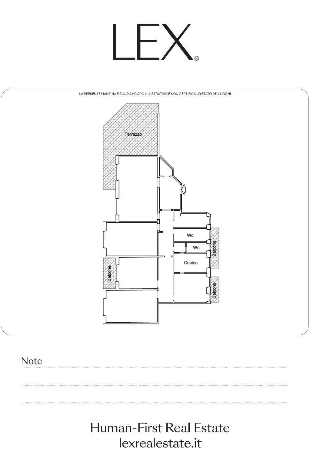
Rif. LZ/506 (Villa Chigi) Luminoso,ingresso,salone doppio,quattro camere,cameretta,cucina ,doppi servizi,quattro balconi,TERRAZZO,soffitta € 850.000,00 Tel.06.69339108 www.lexrealestate.it

Nel punto strategico del quartiere Africano , in Viale Libia, ottimamente servita da negozi di ogni genere, dai mezzi di trasporto (Metro B Libia) e alle spalle di Villa Chigi, proponiamo uno splendido appartamento di ampia metratura posto al terzo piano.
L’immobile è situato in un palazzo degli anni ’50, recentemente restaurato e dotato di servizio di portineria. L’ingresso, ampio e accogliente, conduce al salone doppio, dal quale si accede a un grande terrazzo con vista aperta sul distacco laterale e su Viale Libia. Un corridoio introduce alla zona notte, composta da spaziose camere matrimoniali, due delle quali con affaccio su Viale Libia. Le restanti camere, così come la cucina e i servizi, godono invece di un tranquillo affaccio sulla corte interna.
Completa la proprietà una comoda soffitta.
Il piano alto e la tripla esposizione donano una luminosità naturale durante tutto l'arco della giornata mentre le varie tramezzature consentono differenti ipotesi di progetto in fase di ristrutturazione.
La posizione, gli ampi ambienti e il terrazzo rendono questa proposta molto interessante come abitazione per famiglie numerose o come investimento.
“Le presenti informazioni e planimetrie sono meramente indicative e non costituiscono elementi contrattuali.“

LEGGI TUTTO

CONDIVIDI SUI SOCIAL

DATI PRINCIPALI

Riferimento
640953
Contratto
Vendita
Tipologia
Appartamento
Superficie
220 mq
Locali
Più di 5
Camere da letto
5
Cucina
Abitabile
Bagni
2
Piano
3 °
Totale piani
5

CARATTERISTICHE

Ascensore

COSTI

Prezzo
€ 850.000,00
Spese condominiali
€ 200,00 / mese

EFFICIENZA ENERGETICA

Stato
Da ristrutturare
Anno costruzione
1950
Riscaldamento
Centralizzato
Classe energetica
E
IPE
175,00 kWh/m²a

A+

A

B

C

D

175,00 kWh/m²a | Classe energetica E

E

F

G

MAPPA

ANNUNCI SIMILI

VENDITA 19
€ 850.000
Appartamento in Vendita a Roma (Roma)
  • Più di 5 locali
  • 150 mq
  • 2 bagni
VENDITA 20
€ 783.000
Appartamento in Vendita a Roma (Roma)
  • Più di 5 locali
  • 169 mq
  • 2 bagni
VENDITA 20
€ 860.000
Appartamento in Vendita a Roma (Roma)
  • Più di 5 locali
  • 218 mq
  • 3 bagni
VENDITA 20
€ 1.500.000
Appartamento in Vendita a Roma (Roma)
  • Più di 5 locali
  • 330 mq
  • 3 bagni
VENDITA 20
€ 900.000
Appartamento in Vendita a Roma (Roma)
  • Più di 5 locali
  • 180 mq
  • 2 bagni
VENDITA 20
€ 980.000
Appartamento in Vendita a Roma (Roma)
  • Più di 5 locali
  • 230 mq
  • 2 bagni
VENDITA 20
€ 1.250.000
Appartamento in Vendita a Roma (Roma)
  • Più di 5 locali
  • 210 mq
  • 3 bagni
VENDITA 20
€ 1.190.000
Appartamento in Vendita a Roma, Zona Bologna
  • Più di 5 locali
  • 210 mq
  • 3 bagni