Ampia metratura con terrazzo panoramico VENDITA

Via di Villa Chigi, 94 - Roma (Roma)
€ 595.000
  • Più di 5 locali
  • 156 mq
  • 2 bagni

Appartamento in Vendita a Roma

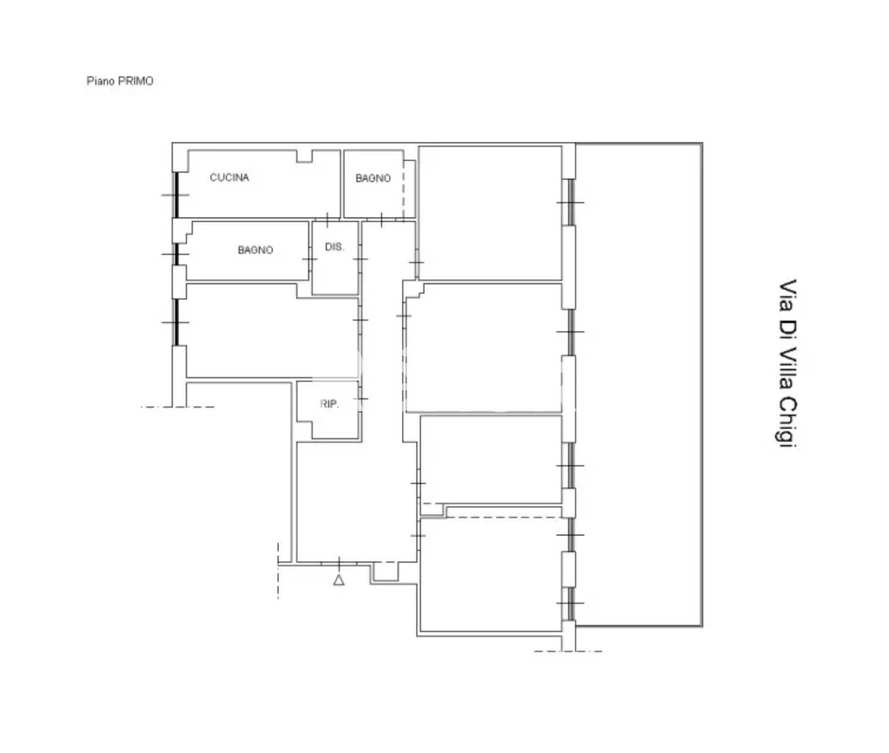
RIF. 385846 - Dati di contatto Agente: Gianluigi Prioli 0620199555 - Nel cuore pulsante del quartiere Africano, a pochi passi dal Parco di Villa Chigi e da Viale Somalia, proponiamo la vendita di un prestigioso appartamento di 156 mq catastali, situato al primo piano di uno stabile in tinta degli anni ’60 con servizio di portineria.
La soluzione, ideale per chi cerca ampi spazi da personalizzare, si distingue per un meraviglioso terrazzo abitabile di circa 70 mq con affaccio panoramico, una vera rarità urbana perfetta per momenti di relax o cene all’aperto.
L’immobile è composto da un ingresso accogliente, salone e sala da pranzo, cucina abitabile, due camere da letto e una cameretta doppia, doppi servizi (di cui uno dotato di impianto di aerazione), comodo ripostiglio e corridoio soppalcato, che offre ulteriore spazio funzionale.
Il fascino della casa è esaltato da un parquet in rovere che veste uniformemente tutti gli ambienti, ad eccezione dei servizi. Completano la proprietà infissi in legno con doppio vetro e porta blindata.
Una vera tela bianca immersa nel verde di Villa Chigi, pronta a trasformarsi nella casa dei tuoi sogni.

LEGGI TUTTO

CONDIVIDI SUI SOCIAL

DATI PRINCIPALI

Riferimento
626230
Contratto
Vendita
Tipologia
Appartamento
Superficie
156 mq
Locali
5
Camere da letto
3
Cucina
Abitabile
Bagni
2
Piano
1 °
Totale piani
7

CARATTERISTICHE

Ascensore

COSTI

Prezzo
€ 595.000,00
Spese condominiali
€ 137,00 / mese

EFFICIENZA ENERGETICA

Stato
Da ristrutturare
Riscaldamento
Centralizzato
Climatizzazione
Si
Classe energetica
G
IPE
164,10 kWh/m²a

A+

A

B

C

D

E

F

164,10 kWh/m²a | Classe energetica G

G

MAPPA

ANNUNCI SIMILI

VENDITA 20
€ 780.000
Appartamento in Vendita a Roma (Roma)
  • Più di 5 locali
  • 196 mq
  • 2 bagni
VENDITA 20
€ 980.000
Appartamento in Vendita a Roma (Roma)
  • Più di 5 locali
  • 230 mq
  • 2 bagni
VENDITA 20
€ 620.000
Appartamento in Vendita a Roma (Roma)
  • Più di 5 locali
  • 117 mq
  • 2 bagni
VENDITA 20
€ 1.100.000
Appartamento in Vendita a Roma (Roma)
  • Più di 5 locali
  • 140 mq
  • 2 bagni
VENDITA 20
€ 650.000
Appartamento in Vendita a Roma (Roma)
  • Più di 5 locali
  • 154 mq
  • 2 bagni
VENDITA 20
€ 650.000
Appartamento in Vendita a Roma (Roma)
  • Più di 5 locali
  • 154 mq
  • 2 bagni
VENDITA 20
€ 650.000
Appartamento in Vendita a Roma (Roma)
  • Più di 5 locali
  • 154 mq
  • 2 bagni
VENDITA 20
€ 1.250.000
Appartamento in Vendita a Roma (Roma)
  • Più di 5 locali
  • 210 mq
  • 3 bagni
VENDITA 19
€ 850.000
Appartamento in Vendita a Roma (Roma)
  • Più di 5 locali
  • 150 mq
  • 2 bagni