Affitto Estivo un Piano Terra a Cerenova in Via Cetona n° 15 AFFITTO

Via Cetona 15 - Cerveteri (Roma)
€ 1.800 mensili
  • Trilocale
  • 50 mq
  • 1 bagno

Appartamento in Affitto a Cerveteri

Magda Immobiliare propone in Affitto Estivo un Piano Terra a Cerenova in Via Cetona n° 15.
PERIODO -> Giugno - Luglio - Settembre (NO AGOSTO)

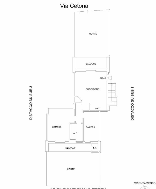
50 mq - Doppio Giardino - Letto Matrimoniale + Letto una piazza e mezza
Solo Animali Piccola Taglia
Eccellenti Condizioni e Doppia Esposizione
Posto Auto di fronte al Cancello d'ingresso

Composta da:
Soggiorno con Cucina, Camera, Cameretta, Bagno con Finestra, Doppio Giardino.
Zona Centrale e Ben Servita

Prezzi:
Giugno > 1.400, 00 euro
Luglio > 1.800, 00 euro
Settembre > 1.400, 00 euro

Cell. 348/5936862.

LEGGI TUTTO

CONDIVIDI SUI SOCIAL

DATI PRINCIPALI

Riferimento
631061
Contratto
Affitto
Tipologia
Appartamento
Superficie
50 mq
Locali
3
Camere da letto
2
Cucina
A vista
Bagni
1
Piano
Piano terra
Totale piani
2
Box/Posto auto
Singolo

CARATTERISTICHE

Ascensore

COSTI

Canone
Affitto € 1.800,00 al mese
Tipo locazione
Libero

EFFICIENZA ENERGETICA

Stato
Ristrutturato
Riscaldamento
Autonomo
Classe energetica
G
IPE
351,00 kWh/m²a

A+

A

B

C

D

E

F

351,00 kWh/m²a | Classe energetica G

G

MAPPA

ANNUNCI SIMILI

AFFITTO 20
€ 550 mensili
Appartamento in Affitto a Cerveteri (Roma)
  • Trilocale
  • 60 mq
  • 1 bagno
AFFITTO 20
€ 1.850 mensili
Appartamento in Affitto a Cerveteri (Roma)
  • Più di 5 locali
  • 200 mq
  • 3 bagni