AFFACCIO ALTO - OTTIMA ESPOSIZIONE VENDITA

Via Padre Giovanni Antonio Filippini - Roma, Zona Mostacciano
€ 295.000
  • Trilocale
  • 97 mq
  • 1 bagno

Appartamento in Vendita a Roma

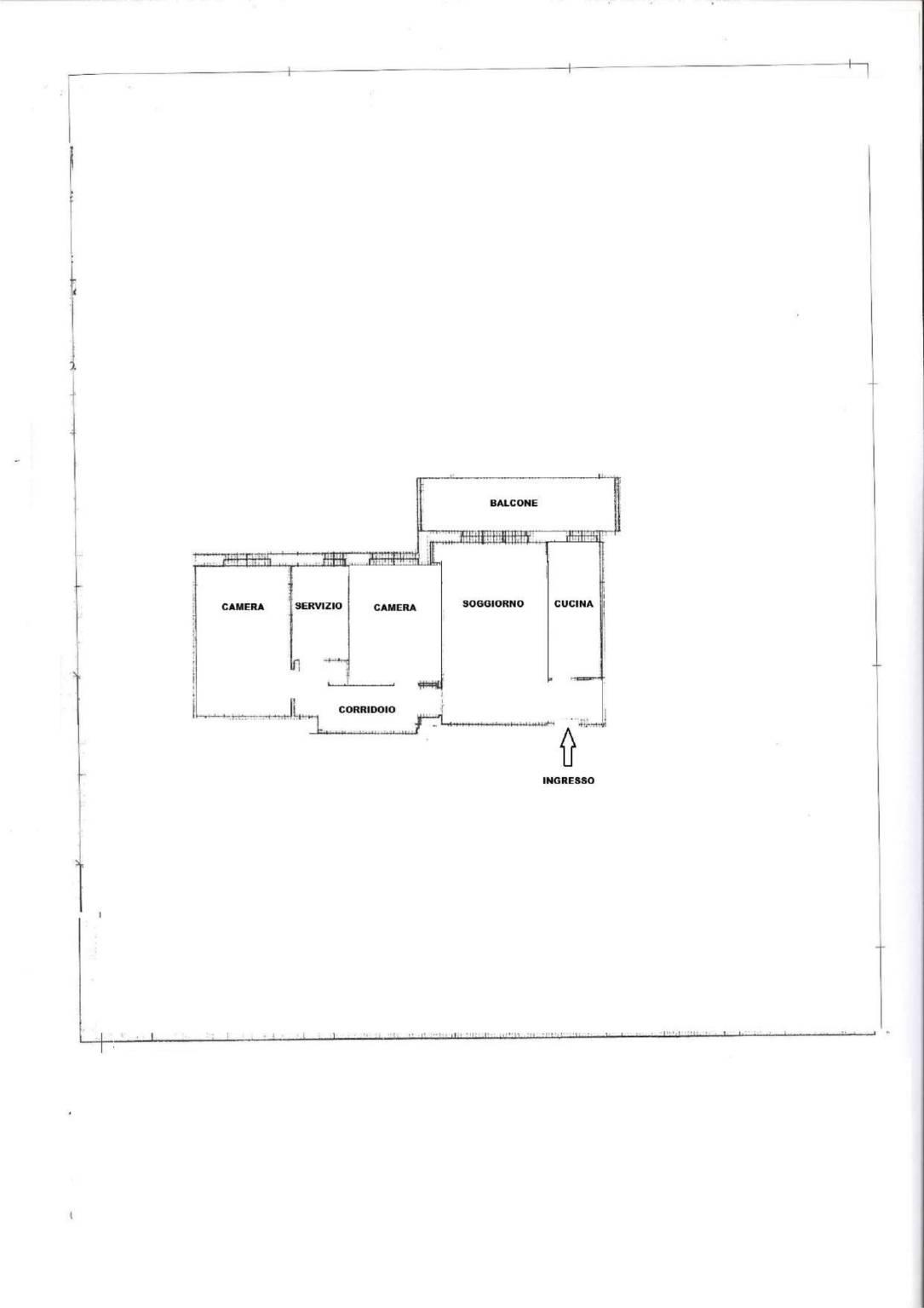
MOSTACCIANO - Adiac. Via Padre Giovanni Antonio Filippini e precisamente in Via Padre Alberto Grammatico - In palazzina in cortina di 4 piani con servizio di portineria, proponiamo un appartamento al 2° piano con affaccio alto e luminoso, composto da: ingresso, soggiorno, cucina abitabile, corridoio, 2 camere, servizio, balcone; completa la proprietà un posto auto coperto e cantina. L'affaccio è interno, silenzioso, con ampi spazi verdi e un ottima luminosità con esposizione a sud.

La nostra agenzia di viale Beata Vergine del Carmelo è presente in zona da oltre 25 anni e grazie alle numerose compravendite e locazioni effettuate nel corso degli anni rappresenta nel quartiere un punto di riferimento importante per chi intende acquistare, vendere o affittare casa. Per conoscere il valore del vostro immobile, richiedeteci una valutazione gratuita!
Grazie alla profonda conoscenza del mercato locale, siamo in grado di effettuare una valutazione di mercato in termini precisi e tempestivi.

LEGGI TUTTO

CONDIVIDI SUI SOCIAL

DATI PRINCIPALI

Riferimento
630746
Contratto
Vendita
Tipologia
Appartamento
Superficie
97 mq
Locali
3
Camere da letto
2
Cucina
Abitabile
Bagni
1
Piano
2 °
Totale piani
4
Box/Posto auto
Singolo

CARATTERISTICHE

Ascensore

COSTI

Prezzo
€ 295.000,00
Spese condominiali
€ 75,00 / mese

EFFICIENZA ENERGETICA

Stato
Abitabile
Anno costruzione
1978
Riscaldamento
Centralizzato
Classe energetica
G
IPE
175,00 kWh/m²a

A+

A

B

C

D

E

F

175,00 kWh/m²a | Classe energetica G

G

MAPPA

ANNUNCI SIMILI

VENDITA 20
€ 529.000
Appartamento in Vendita a Roma, Zona Mostacciano
  • Più di 5 locali
  • 150 mq
  • 2 bagni
VENDITA 20
€ 495.000
Appartamento in Vendita a Roma, Zona Mostacciano
  • Quadrilocale
  • 160 mq
  • 2 bagni
VENDITA 13
€ 460.000
Appartamento in Vendita a Roma, Zona Mostacciano
  • Quadrilocale
  • 120 mq
  • 2 bagni
VENDITA 20
€ 620.000
Appartamento in Vendita a Roma, Zona Mostacciano
  • Più di 5 locali
  • 187 mq
VENDITA 20
€ 570.000
Appartamento in Vendita a Roma, Zona Mostacciano
  • Quadrilocale
  • 161 mq
  • 3 bagni