ACILIA - TRILOCALE SU 2 LIVELLI CON TERRAZZO VENDITA

Via Don Ariodante Brandi 34 - Roma, Zona Acilia
€ 199.000
  • Trilocale
  • 113 mq
  • 2 bagni

Appartamento in Vendita a Roma

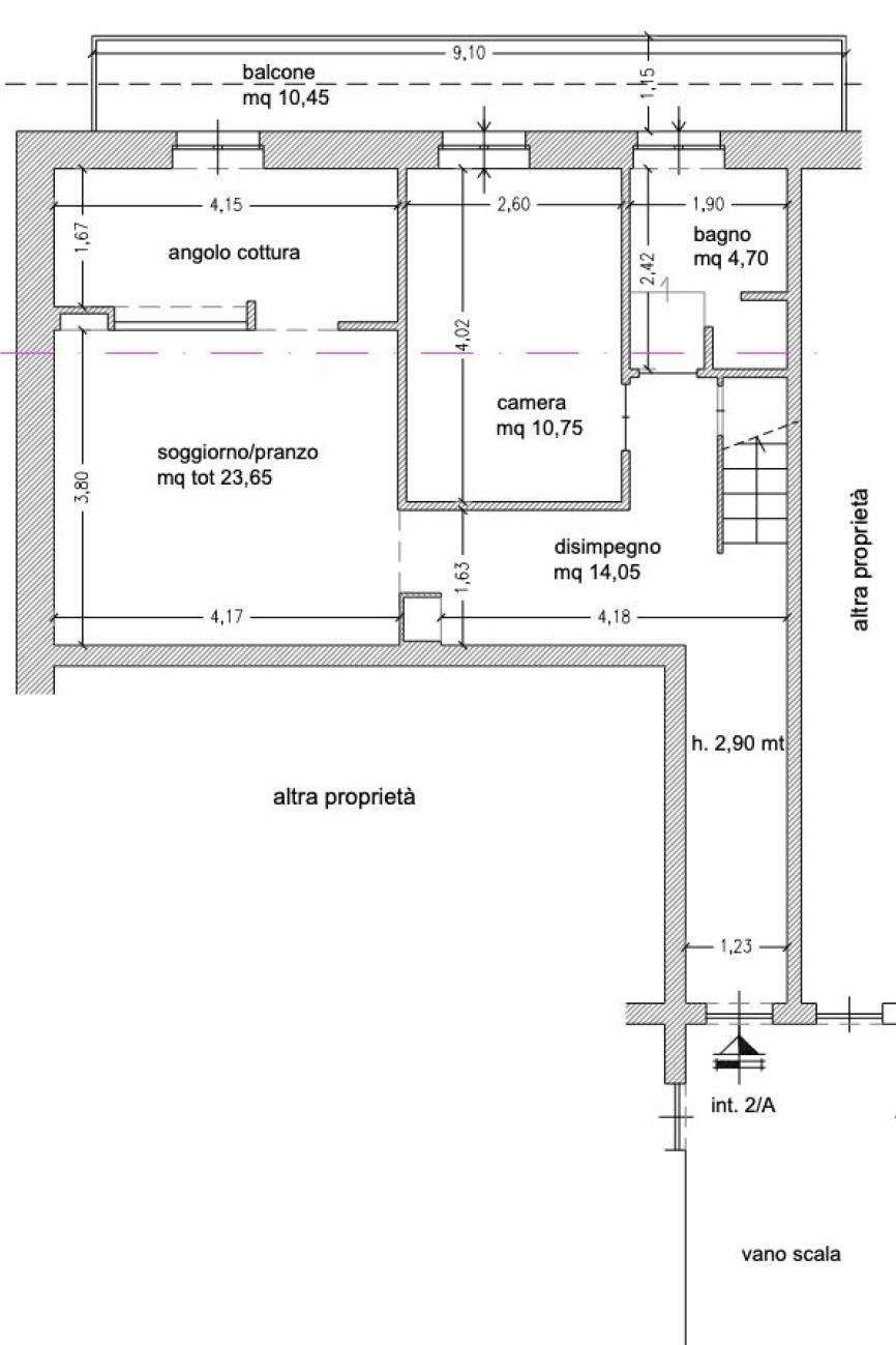
Nel cuore di Acilia, proponiamo in vendita un elegante trilocale posto su due livelli, situato al primo piano di una piccola palazzina e caratterizzato da uno stile moderno, luminoso e accogliente.

Composizione interna:

Primo livello:
• Soggiorno con angolo cottura
• Camera matrimoniale
• Bagno con finestra
• Balcone vivibile con affaccio libero sul verde

Secondo livello:

• disimpegno
• cameretta
• secondo bagno finestrato
• terrazzo di 32 mq

L'immobile è curato in ogni dettaglio.

Completa la proprietà:
• Cantina di 9 mq
• Corte di proprietà posta al piano terra di circa 7 mq

La zona è tranquilla e ben servita, comoda per raggiungere Roma e il litorale.

Una soluzione pronta da abitare, perfetta per chi desidera una casa moderna, luminosa e con spazi esterni vivibili e autentici.

LEGGI TUTTO

CONDIVIDI SUI SOCIAL

DATI PRINCIPALI

Riferimento
633887
Contratto
Vendita
Tipologia
Appartamento
Superficie
113 mq
Locali
3
Camere da letto
2
Cucina
Angolo cottura
Bagni
2
Piano
1 °
Totale piani
2

CARATTERISTICHE

Ascensore

COSTI

Prezzo
€ 199.000,00
Spese condominiali
€ 55,00 / mese

EFFICIENZA ENERGETICA

Stato
Abitabile
Riscaldamento
Autonomo
Climatizzazione
Si
Classe energetica
G
IPE
175,00 kWh/m²a

A+

A

B

C

D

E

F

175,00 kWh/m²a | Classe energetica G

G

MAPPA

ANNUNCI SIMILI

VENDITA 11
€ 135.000
Appartamento in Vendita a Roma, Zona Acilia
  • Più di 5 locali
  • 117 mq
  • 2 bagni
VENDITA 20
€ 249.000
Appartamento in Vendita a Roma, Zona Acilia
  • Quadrilocale
  • 115 mq
  • 2 bagni
VENDITA 20
€ 319.000
Appartamento in Vendita a Roma, Zona Acilia
  • Quadrilocale
  • 130 mq
  • 2 bagni
VENDITA 20
€ 230.000
Appartamento in Vendita a Roma, Frazione Casal Palocco
  • Trilocale
  • 72 mq
  • 1 bagno