3 locali in vendita a Roma, Ponte Mammolo VENDITA

Via Rivisondoli 47 - Roma (Roma)
€ 165.000
  • Trilocale
  • 84 mq
  • 1 bagno

Appartamento in Vendita a Roma

NUDA PROPRIETA' Ampio trilocale con balconi in zona Tor Cervara. OTTIMO INVESTIMENTO.

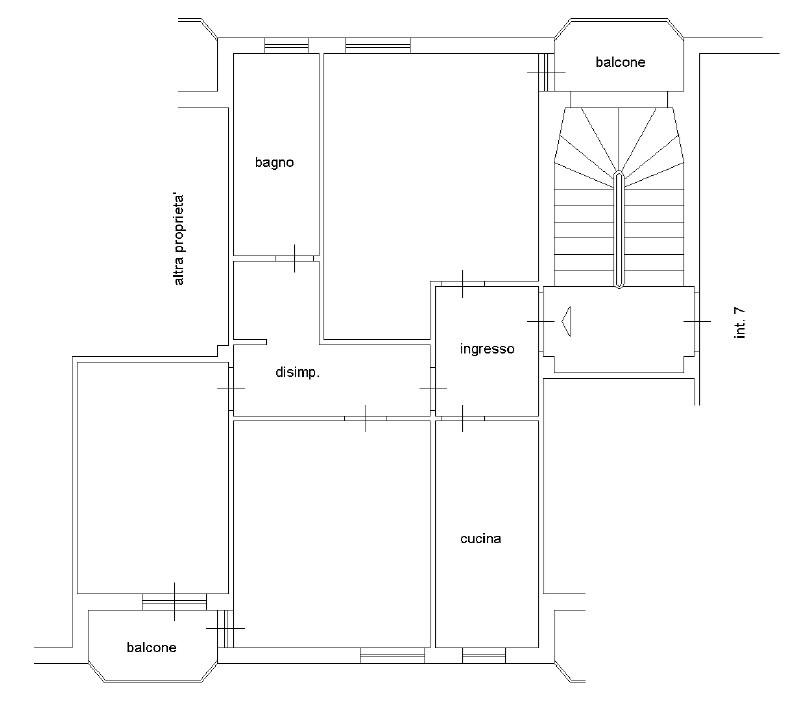
In zona Tor Cervara, tra Ponte Mammolo e Rebibbia, proponiamo in vendita un luminoso e spazioso trilocale di 84 metri quadrati catastali, posto al secondo piano di una palazzina di tre piani, in buono stato di manutenzione, senza ascensore, con posto auto condominiale.

L'immobile è composto da tre locali, tra cui un ampio soggiorno con cucina abitabile, due camere da letto, un disimpegno, un ampio bagno, due balconi e una comodissima soffitta.

La sua disposizione interna lo rende ideale sia per giovani coppie che per famiglie che cercano uno spazio confortevole e funzionale.

L'età dell'usufruttuaria è di 82 anni.

Non perdere l'opportunità di acquistare un 3 locali di qualità in una delle zone residenziali più ricercate di Roma.

L'immobile si trova in una posizione strategica vicino alle stazioni metro (B) di Rebibbia e Ponte Mammolo, quindi perfetta per chi ha necessità di spostarsi con i mezzi pubblici ma senza rinunciare alla tranquillità e al silenzio poiché è all'interno di un comprensorio residenziale, immerso nel verde, con parcheggio condominiale.
La zona è ricca di tutti i servizi di prima necessità.

Le presenti informazioni e planimetrie sono meramente indicative e non costituiscono elementi contrattuali.

LEGGI TUTTO

CONDIVIDI SUI SOCIAL

DATI PRINCIPALI

Riferimento
638425
Contratto
Vendita
Tipologia
Appartamento
Superficie
84 mq
Locali
3
Camere da letto
2
Cucina
Abitabile
Bagni
1
Piano
2 °
Totale piani
3

CARATTERISTICHE

Ascensore

COSTI

Prezzo
€ 165.000,00
Spese condominiali
€ 70,00 / mese

EFFICIENZA ENERGETICA

Stato
Abitabile
Riscaldamento
Centralizzato
Classe energetica
G
IPE
175,00 kWh/m²a

A+

A

B

C

D

E

F

175,00 kWh/m²a | Classe energetica G

G

MAPPA

ANNUNCI SIMILI

VENDITA 20
€ 229.000
Appartamento in Vendita a Roma (Roma)
  • Trilocale
  • 86 mq
  • 1 bagno
VENDITA 20
€ 189.000
Appartamento in Vendita a Roma (Roma)
  • Quadrilocale
  • 115 mq
  • 1 bagno
VENDITA 20
€ 229.000
Appartamento in Vendita a Roma (Roma)
  • Trilocale
  • 90 mq
  • 1 bagno
VENDITA 20
€ 229.000
Appartamento in Vendita a Roma, Zona Ponte Mammolo
  • Trilocale
  • 87 mq
  • 1 bagno
VENDITA 9
€ 310.000
Appartamento in Vendita a Roma (Roma)
  • Trilocale
  • 107 mq
  • 2 bagni
VENDITA 20
€ 389.000
Appartamento in Vendita a Roma (Roma)
  • Trilocale
  • 110 mq
  • 2 bagni
VENDITA 19
€ 169.000
Appartamento in Vendita a Roma, Zona Ponte Mammolo
  • Quadrilocale
  • 110 mq
  • 2 bagni
VENDITA 20
€ 329.000
Appartamento in Vendita a Roma, Zona Ponte Mammolo
  • Quadrilocale
  • 149 mq
  • 2 bagni
VENDITA 20
€ 229.000
Appartamento in Vendita a Roma, Zona Ponte Mammolo
  • Trilocale
  • 80 mq
  • 1 bagno