MONTAGNOLA - 7 locali € 555000 T703 VENDITA

Via Mario Musco, - Roma (Roma)
€ 555.000
  • Più di 5 locali
  • 158 mq
  • 2 bagni

Appartamento in Vendita a Roma

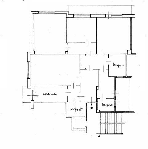
MONTAGNOLA precisamente Via Mario Musco. Nella parte più commerciale del quartiere Montagnola, siamo lieti di proporre in vendita un elegante appartamento di circa 160 mq situato al primo piano di un elegante edificio di sei piani in cortina con servizio di portineria.
L'appartamento internamente è composto da: Ingresso con armadiature a misura, ampio Salone, Cucina vivibile con accesso ad uno dei tre balconi, Ripostiglio, Disimpegno, tre grandi Camere da letto, una Cameretta di servizio (Studio) doppi Servizi finestrati e altre due balconate accessibili sia dalla zona giorno che da dalla zona notte. Completa la proprietà un Box auto soppalcato, con serranda elettrica direttamente nel garage sotto lo stabile, sempre molto richiesto in questa zona dove la comodità della mobilità privata fa la differenza. L'ubicazione di questa proprietà consente un facile accesso ai mezzi di trasporto pubblici e a moltissimi servizi quali negozi, uffici, banche, scuole, palestre, giardini attrezzati e molteplici altre attività commerciali. La vicinanza alle principali arterie stradali come la Cristoforo Colombo, la Laurentina e la A91, permettono di raggiungere facilmente il centro città e l'aeroporto di Fiumicino.
Questo appartamento rappresenta un'ottima soluzione sia per famiglie che vogliono adibirlo ad abitazione principale, sia per chi volesse investire in una zona con una notevole richiesta di locazioni. Sistemacasa S.Paolo www.sistemacasare.it sistemacasasanpaolo@gmail.com

LEGGI TUTTO

CONDIVIDI SUI SOCIAL

DATI PRINCIPALI

Riferimento
638155
Contratto
Vendita
Tipologia
Appartamento
Superficie
158 mq
Locali
Più di 5
Camere da letto
4
Cucina
Abitabile
Bagni
2
Piano
1 °
Totale piani
5
Box/Posto auto
Singolo

CARATTERISTICHE

Ascensore

COSTI

Prezzo
€ 555.000,00
Spese condominiali
€ 156,00 / mese

EFFICIENZA ENERGETICA

Anno costruzione
1966
Riscaldamento
Centralizzato
Classe energetica
G
IPE
180,00 kWh/m²a

A+

A

B

C

D

E

F

180,00 kWh/m²a | Classe energetica G

G

MAPPA

ANNUNCI SIMILI

VENDITA 12
€ 670.000
Appartamento in Vendita a Roma (Roma)
  • Più di 5 locali
  • 215 mq
  • 3 bagni
VENDITA 6
€ 550.000
Appartamento in Vendita a Roma, Zona Garbatella
  • Più di 5 locali
  • 130 mq
  • 1 bagno
VENDITA 20
€ 1.000.000
Appartamento in Vendita a Roma (Roma)
  • Più di 5 locali
  • 220 mq
  • 2 bagni
VENDITA 10
€ 810.000
Appartamento in Vendita a Roma (Roma)
  • Più di 5 locali
  • 267 mq
  • 3 bagni
VENDITA 20
€ 870.000
Appartamento in Vendita a Roma (Roma)
  • Più di 5 locali
  • 195 mq
  • 4 bagni
VENDITA 20
€ 615.000
Appartamento in Vendita a Roma (Roma)
  • Più di 5 locali
  • 200 mq
  • 2 bagni
VENDITA 18
€ 702.000
Appartamento in Vendita a Roma (Roma)
  • Più di 5 locali
  • 210 mq
  • 3 bagni