Chi siamo
IVANA BARBA, titolare dell’agenzia, opera nel settore immobiliare dal 1989 come imprenditore edile e dal 1995 come agente immobiliare.

E’ associata alla FIAIP (Federazione Italiana Agenti Immobiliari Professionisti) una della maggiori associazioni italiane del settore immobiliare che conta più di diecimila iscritti in tutta Italia.
I nostri servizi
L'agenzia BARBA IMMOBILIARE garantisce una considerevole varietà di servizi, offrendo ai propri clienti la possibilità di risolvere ogni problematica relativa all’immobile all’interno dell’agenzia stessa.
I servizi offerti riguardano: l'aspetto commerciale (valutazione, compravendita, locazione, permuta) in ambito locale e nazionale; l'assistenza nel momento della richiesta di un mutuo, nella preparazione del rogito notarile fino al momento della stipula stessa, la collaborazione con tecnici dalla consolidata professionalità nell'esamina di tutte le problematiche urbanistiche e catastali.

LEGGI TUTTO

25 annunci

VENDITA 20
€ 495.000
Villa in Vendita a Mentana (Roma)
VIA DELLA MEZZALUNA 3 – Elegante villa unifamiliare di circa 400 mq residenziali disposta su tre liv ...
  • Più di 5 locali
  • 547 mq
  • 4 bagni
VENDITA 20
€ 175.000
Appartamento in Vendita a Mentana (Roma)
VIA DEL CONVENTINO – Bilocale (A) di circa 60 mq calpestabili integralmente ristrutturato al piano r ...
  • Bilocale
  • 83 mq
  • 1 bagno
VENDITA 11
€ 95.000
Magazzino in Vendita a Mentana (Roma)
VIA G. AMENDOLA 105 – Interessante magazzino industriale di circa 116 mq alle porte di Mentana, di f ...
  • 1 locale
  • 116 mq
  • 1 bagno
VENDITA 20
€ 119.000
Casa indipendente in Vendita a Montelibretti (Roma)
VIA DI COLLE PIZZUTO – Casa indipendente composta da 2 livelli residenziali e due livelli adibiti a ...
  • Quadrilocale
  • 149 mq
  • 2 bagni
AFFITTO 16
€ 450 mensili
Negozio in Affitto a Mentana (Roma)
VIA G. AMENDOLA 30 – Locale commerciale di circa 50 mq su strada di intenso passaggio e con parchegg ...
  • 1 locale
  • 49 mq
  • 1 bagno
VENDITA 20
€ 155.000
Appartamento in Vendita a Monterotondo (Roma)
VIA F.LLI ROSSELLI – Ampio appartamento di oltre 100 mq calpestabili al piano terra di piccolo stabi ...
  • Trilocale
  • 126 mq
  • 2 bagni
AFFITTO 15
€ 450 mensili
Ufficio in Affitto a Mentana (Roma)
Via Val Pusteria - Locale ad uso ufficio (A/10) composto da due vani di circa 20 mq ciascuno, entram ...
  • 2 locali
  • 50 mq
  • 1 bagno
VENDITA 20
€ 175.000
Appartamento in Vendita a Mentana (Roma)
VIA DEL CONVENTINO – Bilocale (B) di circa 60 mq calpestabili integralmente ristrutturato al piano r ...
  • Bilocale
  • 84 mq
  • 2 bagni
VENDITA 20
€ 310.000
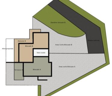
Appartamento in Vendita a Mentana (Roma)
VIA DEL CONVENTINO – Appartamento integralmente ristrutturato con rifiniture e materiali di alta qua ...
  • Quadrilocale
  • 206 mq
  • 2 bagni
VENDITA 10
€ 60.000
Negozio in Vendita a Mentana (Roma)
VIA REATINA 30 – Locale commerciale (C/1) in buone condizioni con possibilità di acquisto stigliatur ...
  • 2 locali
  • 60 mq
  • 1 bagno