Asso Asso Immobiliare Srls

Via di Villa Chigi 96 - Roma (Roma)

Siamo un gruppo di imprenditori e professionisti che nelle proprie attività si interfaccia spesso con le agenzie immobiliari, riscontrando molta approssimazione e scarsa preparazione su ogni aspetto.
Da qui nasce la "Asso Asso Immobiliare", dall'esigenza e necessità di vedere offerto un servizio di mediazione professionale e competente.
Per questo abbiamo selezionato soltanto agenti seri e competenti, che sono supervisionati costantemente e che possono usufruire per lo svolgimento del loro mandato, del supporto di tre studi associati a noi, legale, tributario e di architettura.
Così facendo siamo certi di offrirvi un servizio di eccellenza senza oneri aggiuntivi. 
Scegliendo noi non vi affidate ad un marchio, ma a persone che ci mettono la faccia.

LEGGI TUTTO

17 annunci

VENDITA 17
€ 110.000
Negozio in Vendita a Guidonia Montecelio (Roma)
IN VIA ANTICOLI CORRADO, più precisamente tra la Farmacia Vitillo ed il supermercato Crai, vendiamo ...
  • 1 locale
  • 30 mq
  • 1 bagno
VENDITA 12
€ 250.000
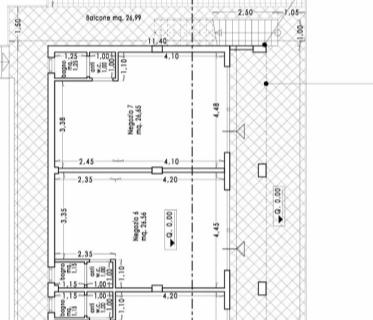
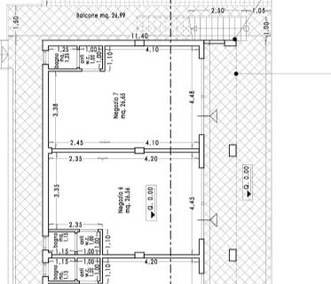
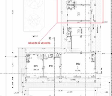
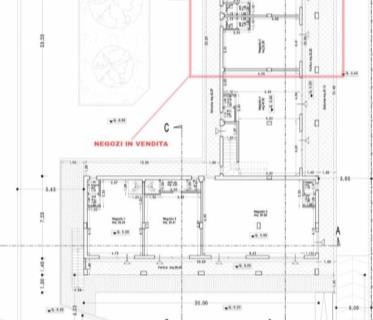
Negozio in Vendita a Roma (Roma)
Funzionale locale C1 di mq 75 catastali totali, ad angolo tra Via Marcantonio Bragadin e Via Ruggero ...
  • 1 locale
  • 67 mq
  • 1 bagno